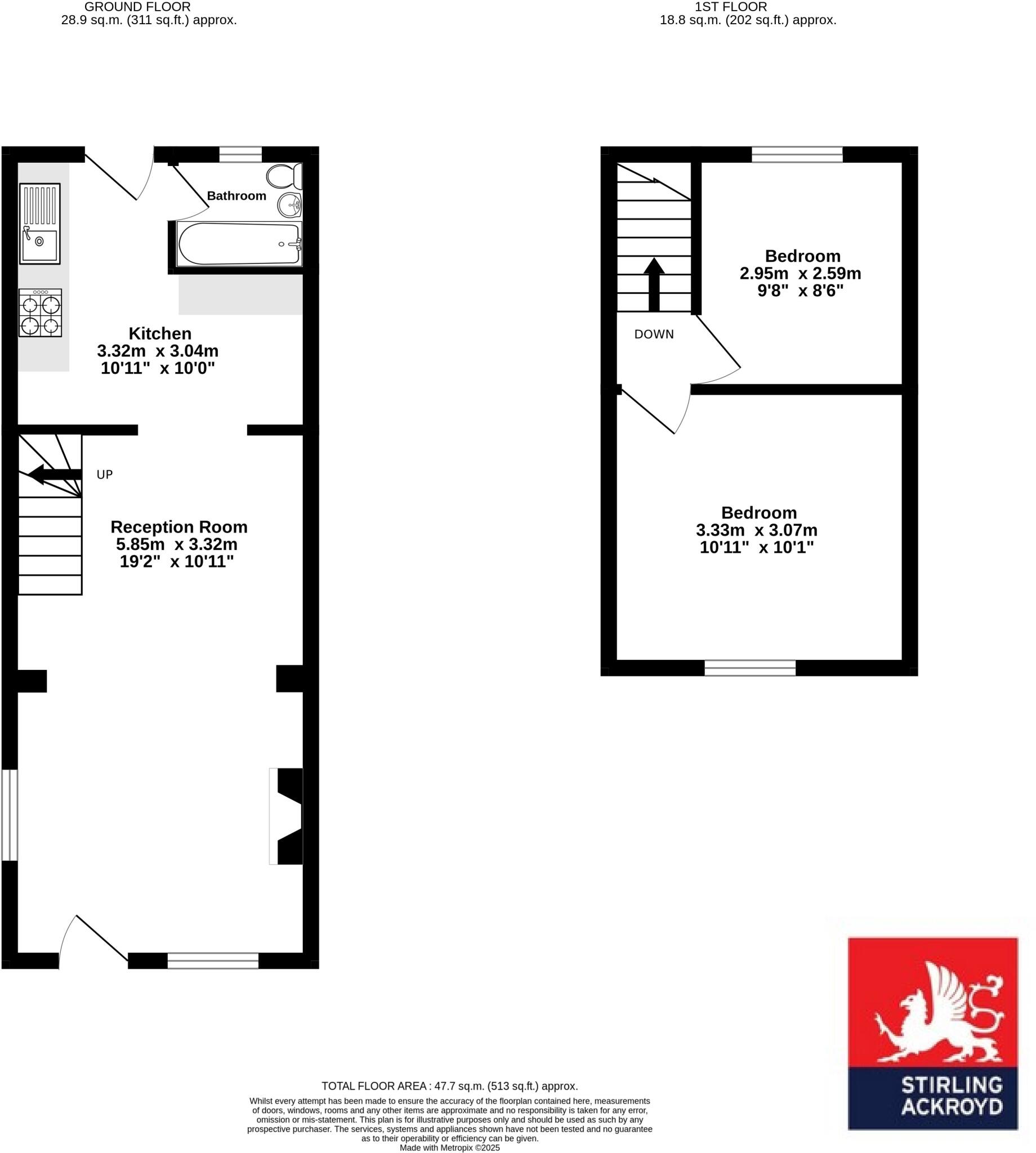
**Standout Features:**
- Two spacious double bedrooms
- Modern kitchen with access to a private garden
- Excellent transport links (Northolt Station & Northolt Park Station nearby)
- Freehold property
**Concerns:**
- Overall size is compact at 520 square feet
- Limited space for extensions or renovations
Discover this charming two-bedroom end-of-terrace home nestled in a vibrant suburb, ideal for first-time buyers or small families seeking comfort and convenience. Featuring a spacious double reception room and a modern kitchen with direct access to a neatly kept private garden, this property is perfect for relaxing or entertaining. The two generously sized bedrooms provide ample personal space, while the well-maintained bathroom adds to the home's appeal.
Located just moments from Northolt Station on the Central Line, commuting into Central London is a breeze. With local amenities including shops and schools nearby—highlighted by good ratings in primary and secondary education—this property is perfect for those wanting family-friendly surroundings. Although the property is compact, it offers a unique opportunity for cozy living in a popular community setting. With low crime rates and great broadband speeds, this home combines comfort and practicality. Don't miss out on the chance to make this delightful house your own!
3 bedroom terraced house for sale in Wood End Lane, Northolt, UB5 — £400,000 • 3 bed • 1 bath • 492 ft²
2 bedroom terraced house for sale in Blenheim Road, Northolt, UB5 — £440,000 • 2 bed • 1 bath • 837 ft²
2 bedroom end of terrace house for sale in Longhook Gardens, Northolt, UB5 — £350,000 • 2 bed • 1 bath • 344 ft²
3 bedroom end of terrace house for sale in Carr Road, Northolt, Middlesex, UB5 — £550,000 • 3 bed • 1 bath • 1092 ft²
2 bedroom end of terrace house for sale in Carr Road, Northolt, UB5 — £500,000 • 2 bed • 1 bath • 1042 ft²
3 bedroom semi-detached house for sale in Wood End Gardens Northolt, UB5 4QL, UB5 — £515,000 • 3 bed • 1 bath • 740 ft²


























































