Light-filled family home with garden and parking near Newark amenities.
Three double bedrooms including a whole-floor principal bedroom with en-suite
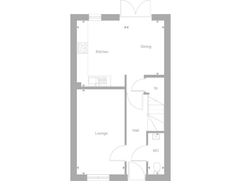
Open-plan kitchen/diner with French doors to a decent private garden
15ft lounge plus downstairs WC and under-stairs storage
Energy-efficient new build with solar panels and modern fittings
Off-street parking spaces included for convenience
Overall size c.900 sq ft; medium rooms and standard ceiling heights
Tenure/service charges TBC for some plots; check legal pack before exchange
Reservation fee £500; council tax band and some costs yet to be confirmed
A modern three-storey townhouse arranged for practical family living across 900 sq ft. The ground floor offers an open-plan kitchen/diner with French doors to the garden, a 15ft lounge and downstairs WC — useful for busy households and entertaining. Two double bedrooms and a family bathroom sit on the first floor, while the whole second floor is a principal bedroom with built-in wardrobe space and an en-suite shower room.
Built as a new home in the Middlebeck development, the property benefits from contemporary finishes, solar panels and energy-efficient construction. Outside there is a decent rear garden and off-street parking. The local area is described as rural workers and families, with good schools nearby and easy commuter access into Newark which has two train stations.
Practical positives include low local crime, fast broadband and excellent mobile signal, making the house well-suited to home working or family life. Buyers should note some transactional details remain to be confirmed for certain plots: tenure and several service-charge items are listed as TBC, and there is a reservation fee of £500. Council tax band is also to be confirmed.
3 bedroom town house for sale in Bluebell Drive,
Newark on Trent,
NG24 4FS, NG24 — £280,000 • 3 bed • 1 bath • 900 ft²
4 bedroom detached house for sale in Bluebell Drive,
Newark on Trent,
NG24 4FS, NG24 — £300,000 • 4 bed • 1 bath • 687 ft²
4 bedroom detached house for sale in Bluebell Drive,
Newark on Trent,
NG24 4FS, NG24 — £325,000 • 4 bed • 1 bath • 758 ft²
2 bedroom semi-detached house for sale in Bluebell Drive,
Newark on Trent,
NG24 4FS, NG24 — £220,000 • 2 bed • 1 bath • 622 ft²
3 bedroom detached house for sale in Bluebell Drive,
Newark on Trent,
NG24 4FS, NG24 — £295,000 • 3 bed • 1 bath • 948 ft²
3 bedroom detached house for sale in Bluebell Drive,
Newark on Trent,
NG24 4FS, NG24 — £300,000 • 3 bed • 1 bath • 701 ft²










































