Renovated seaside apartment with garage and allocated parking.
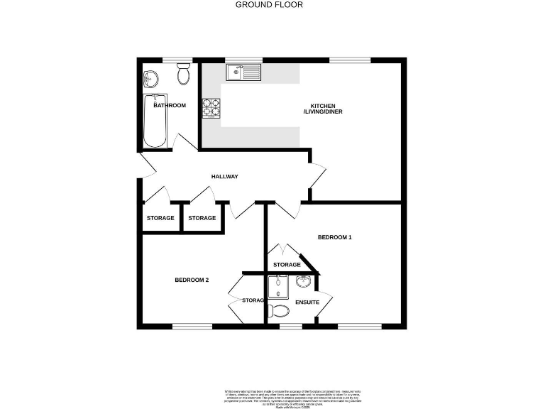
Ground-floor two-bedroom flat with ensuite to the master
Set on the ground floor of a modern development in peaceful Curlew Close, this recently renovated two-bedroom flat offers a bright, open-plan living/kitchen and well-presented accommodation throughout. The master bedroom includes an ensuite and both bedrooms have built-in storage, making the layout efficient for everyday living or short-term lets. Allocated parking plus a single garage provide uncommon convenience for a flat, and the communal grounds are low-maintenance.
The location is a strong selling point: Hunstanton’s coastline is a short distance away, with tranquil views and easy access to local walks and cycling routes. Fast broadband and average mobile signal support home working or streaming, and the property’s double glazing and gas central heating keep running costs sensible. A 125-year lease remains and the flat is presented in move-in condition.
Buyers should note this is a leasehold apartment with an annual service charge of approximately £1,050 and a ground rent of £130. The surrounding area is described as having higher deprivation levels and average crime rates, which may influence resale or rental profiles. The footprint is compact (about 699 sq ft) so those needing larger living space should consider this when viewing.
Overall, this apartment will suit first-time buyers seeking a ready-to-live-in coastal base or investors looking for a manageable rental property with parking and a garage. It combines modern finishes and sensible running costs with the practical limitations of a modest-sized, leasehold flat in a quieter seaside village.
2 bedroom apartment for sale in Manor Road, Hunstanton, PE36 — £225,000 • 2 bed • 2 bath • 688 ft²
2 bedroom apartment for sale in Chain Free in Hunstanton, PE36 — £175,000 • 2 bed • 2 bath • 678 ft²
2 bedroom apartment for sale in Buckingham Court, Hunstanton, Norfolk, PE36 — £195,000 • 2 bed • 1 bath • 680 ft²
2 bedroom flat for sale in High Street, Heacham, King's Lynn, PE31 — £190,000 • 2 bed • 1 bath • 689 ft²
2 bedroom apartment for sale in Westcliffe Court, Hunstanton, PE36 — £280,000 • 2 bed • 1 bath • 883 ft²
3 bedroom ground floor flat for sale in South Beach Road, Hunstanton, PE36 — £175,000 • 3 bed • 1 bath • 497 ft²


















































































































