KT8 1TN - 3 bedroom terraced house for sale in Buckingham Gardens, We…

View on Property Piper

3 bedroom terraced house for sale in Buckingham Gardens, West Molesey, KT8

Summary - 83 BUCKINGHAM GARDENS WEST MOLESEY KT8 1TN

3 bed 2 bath Terraced

### Standout Features:
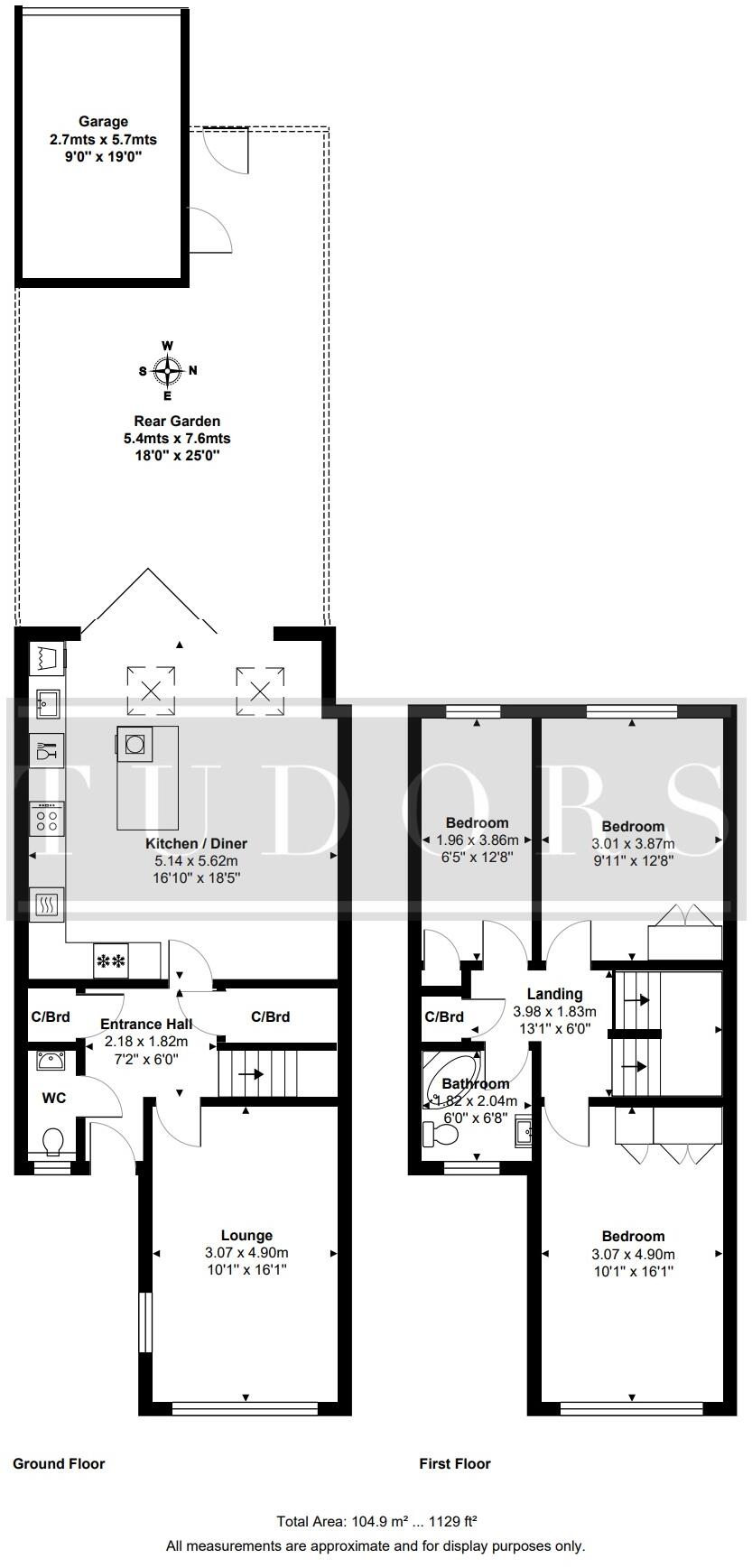
- **Staggered three-bedroom terraced house** in the desirable Hurst Park development.
- **Extended** open-plan kitchen and dining room with bi-fold doors to the garden.
- **Modern amenities** including a downstairs cloakroom and upstairs bathroom.
- **Westerly-facing garden** with low maintenance patio and direct garage access.
- **Garage and two parking spaces** included.
- **Excellent local amenities** with schools and recreational facilities nearby.
- **Low crime rate** and highly affluent area.

### Property Summary:
Step into this beautifully refurbished three-bedroom terraced home in the sought-after Hurst Park development, where modern elegance meets comfort. The centerpiece is the extended open-plan kitchen/dining room, featuring a contemporary kitchen equipped with a breakfast island and integrated appliances, which flows seamlessly into a bright entertaining space thanks to vaulted ceilings and bi-fold doors that lead to a private westerly garden. The separate living room offers picturesque views of the surrounding parks, perfect for relaxing evenings.

Upstairs, you’ll find three bedrooms with built-in wardrobes, complemented by a modern family bathroom. The property is set on a large plot and includes a garage with power—ideal for storing your vehicle or converting it for additional use—along with two parking spaces. Enjoy the benefits of gas central heating and double-glazed windows throughout. With local schools rated good, extensive recreational options nearby, and easy access to transport links for commuters, this charming property is perfect for families or investors looking for rental potential in a thriving community. Don’t miss your chance to make this remarkable home yours in a highly desirable area!

Property Details

Image Descriptions

Floorplan Description

Rooms

Textual Property Features

Detected Visual Features

Nearby Schools

Nearest Bars And Restaurants

,,,,}

Nearest General Shops

,,}

Nearest Grocery shops

,,}

Nearest Supermarkets

,,}

Nearest Religious buildings

,,}

Nearest Medical buildings

,,,}

Nearest Airports

,}

Nearest Leisure Facilities

,,,,}

Nearest Tourist attractions

,,}

Nearest Train stations

,,,,}

Nearest Bus stations and stops

,,,,}

Nearest Hotels

,,}

Tags

Local Market Stats

AirBnB Data

Similar Properties

Meta

High Res Images

Compatible Images

Low res Images

Thumbnails

Raw Images

High Res Floorplan Images

Compatible Floorplan Images

Low res Floorplan Images

FloorplanImages Thumbnail

Raw Floorplan Images