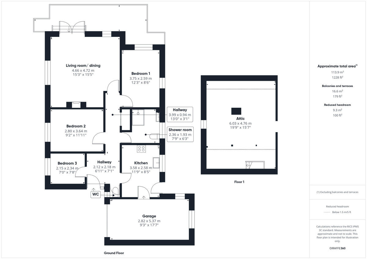
Single‑level living with parking, privacy and attic potential for conversion.
- Detached mid‑century bungalow on large wraparound garden
- Driveway for three cars plus integrated garage with power and light
- Two double bedrooms with fitted storage; versatile third room
- Boarded attic with natural light; potential conversion subject to planning
- Chain free freehold in a quiet, affluent village location
- Double glazing dated pre‑2002; windows may need replacement
- Cavity walls assumed uninsulated; insulation recommended for efficiency
- Heating details inconsistent; confirm gas central heating or electric system
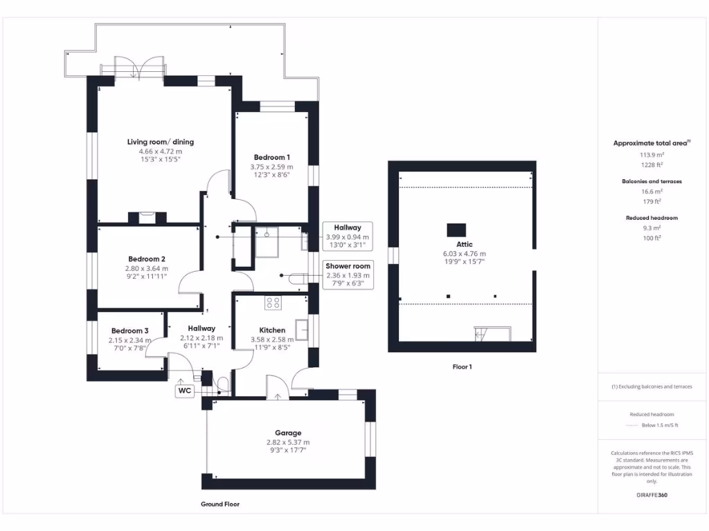
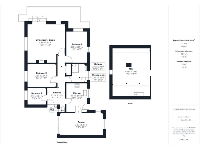
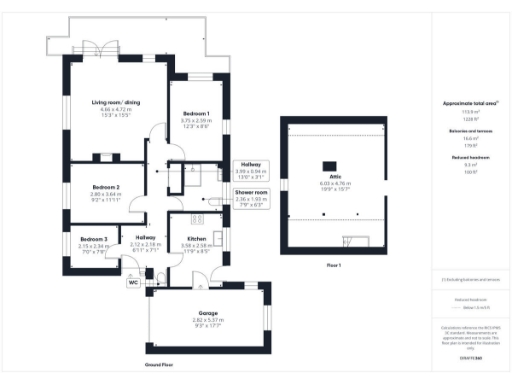
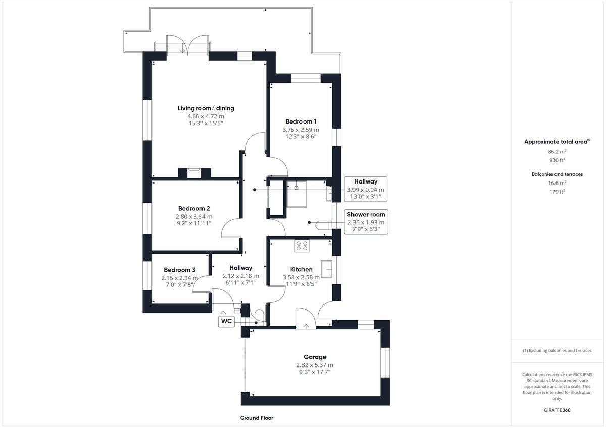
Set on a generous plot in the quiet village of Ackenthwaite, this detached mid‑century bungalow offers comfortable single‑level living with plenty of outdoor privacy. The bright dual‑aspect living room opens to a slightly elevated patio and well‑maintained wraparound gardens, ideal for relaxed outdoor time without extensive upkeep. Driveway parking for three cars and an integrated garage add everyday practicality.
Internally the layout is straightforward and adaptable: two double bedrooms with fitted storage, a versatile third room for a study or hobby, a modern shower room and a separate WC. A useful, boarded attic with natural light presents genuine potential for conversion (subject to planning) or generous storage. The kitchen links directly to the garage for easy unloading and utility space.
Practical details that matter to downsizers are clear: the property is offered chain free on freehold tenure, in an affluent, low‑crime village with fast broadband, excellent mobile signal and good local amenities within walking distance. The house was built in 1959 and retains many mid‑century features, giving scope for tasteful updating to suit personal needs.
Buyers should note some running‑cost and improvement considerations. Records show double glazing installed before 2002 and cavity walls assumed to be uninsulated; energy‑efficiency upgrades (wall insulation, window replacement, possible heating review) would improve comfort and running costs. Heating is noted as gas central heating in the details, though other records reference electric storage heating — prospective buyers should confirm the system and service history.
3 bedroom detached bungalow for sale in Ackenthwaite, Ackenthwaite, LA7 — £400,000 • 3 bed • 1 bath • 1115 ft²
3 bedroom semi-detached bungalow for sale in Dugg Hill, Heversham, Milnthorpe, LA7 7EF, LA7 — £350,000 • 3 bed • 2 bath • 1377 ft²
4 bedroom detached house for sale in Ackenthwaite, Milnthorpe, Cumbria, LA7 — £550,000 • 4 bed • 2 bath • 1449 ft²
3 bedroom detached bungalow for sale in Meadow Close, Bowston, Kendal, LA8 9HA, LA8 — £425,000 • 3 bed • 1 bath • 1045 ft²
2 bedroom detached bungalow for sale in Crooklands, Milnthorpe, LA7 — £365,000 • 2 bed • 1 bath • 893 ft²
2 bedroom semi-detached bungalow for sale in 4 Bridge Road, Nether Kellet, Carnforth, LA6 1HH, LA6 — £250,000 • 2 bed • 1 bath • 749 ft²






































































































