Minutes from Swanley station with a private, low-maintenance garden.
Allocated off-street parking space included
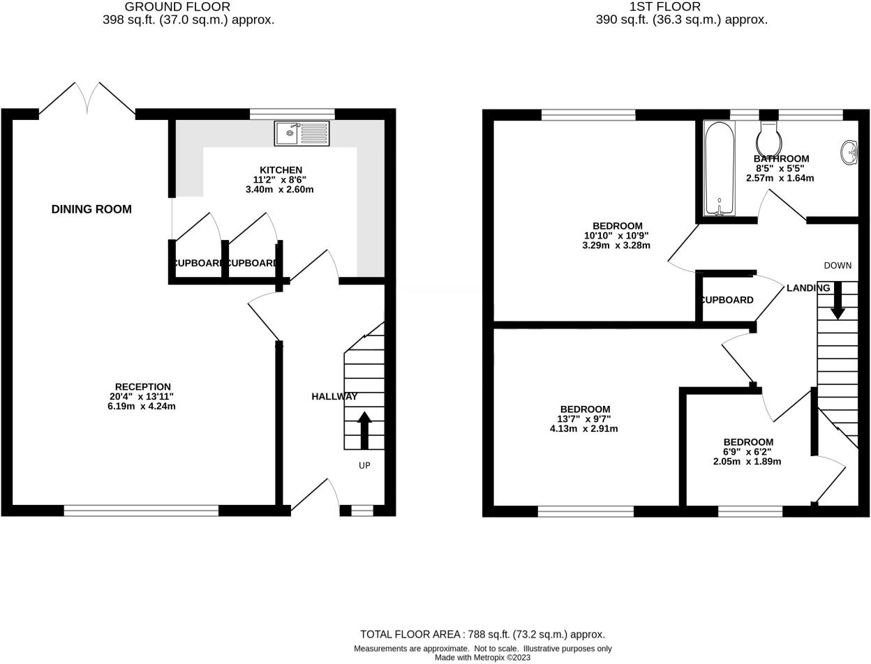
Set on a quiet cul-de-sac in Swanley, this newly renovated three-bedroom end-of-terrace offers a practical entry into home ownership or a straightforward rental prospect. The layout includes an entrance hall, kitchen, lounge/diner opening to a secluded rear garden, and three bedrooms with a single family bathroom. Recent updates include new loft insulation, a modern boiler (with warranty) and fresh internal decoration.
The property is compact (approx. 788 sq ft) and sits on a small plot, so it suits buyers prioritising location and low-maintenance living over large gardens or expansive rooms. The Energy Performance Rating is D and glazing details are unknown, so there is some scope to improve efficiency further if desired.
Transport and local amenities are strong selling points: Swanley mainline station is within easy reach and offers direct services into central London in around 30 minutes (Oyster zone). Nearby schools include several Good-rated primaries and secondaries, and local shops, leisure facilities and the Swanley boat park are all close by.
Practical considerations: the house has one bathroom and an allocated off-street parking space. The build dates from the mid-20th century with timber-frame elements and partial insulation, so prospective buyers should note the smaller plot, average room sizes and standard ceiling heights when viewing. Overall, this is a tidy, ready-to-move-in home that will appeal to first-time buyers and buy-to-let investors seeking a well-connected property with recent mechanical upgrades.
3 bedroom end of terrace house for sale in Braeburn Close, Swanley, Kent, BR8 — £400,000 • 3 bed • 2 bath • 740 ft²
3 bedroom semi-detached house for sale in Dale Road, Swanley, Kent, BR8 — £450,000 • 3 bed • 1 bath • 996 ft²
3 bedroom end of terrace house for sale in Maple Close, Swanley, Kent, BR8 — £350,000 • 3 bed • 1 bath • 831 ft²
3 bedroom terraced house for sale in Bremner Close, Swanley, Kent, BR8 — £375,000 • 3 bed • 2 bath • 751 ft²
3 bedroom terraced house for sale in Hawthorn Park, Swanley, Kent, BR8 — £450,000 • 3 bed • 2 bath • 892 ft²
3 bedroom end of terrace house for sale in Oakleigh Close, Swanley, BR8 — £400,000 • 3 bed • 1 bath • 755 ft²






























































































































