PA75 6PX - 4 bedroom house for sale in Hillcrest, Breadalbane Street,…

View on Property Piper

4 bedroom house for sale in Hillcrest, Breadalbane Street, Tobermory, Isle of Mull, PA75

Summary - ARGYLL AND BUTE COUNCIL, COUNTY BUILDINGS, BREADALBANE STREET PA75 6PX

4 bed 2 bath House

Spacious period home with large gardens and elevated harbour views.
Victorian four-bedroom detached villa with high ceilings and period features
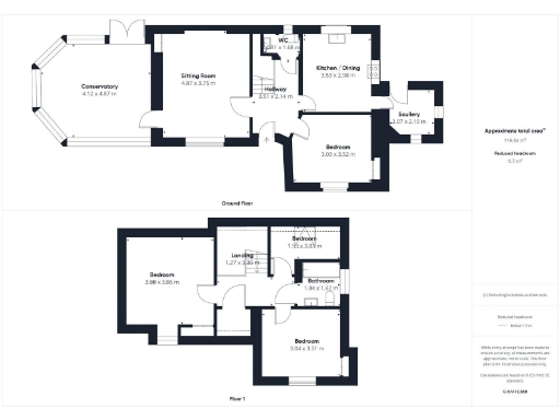
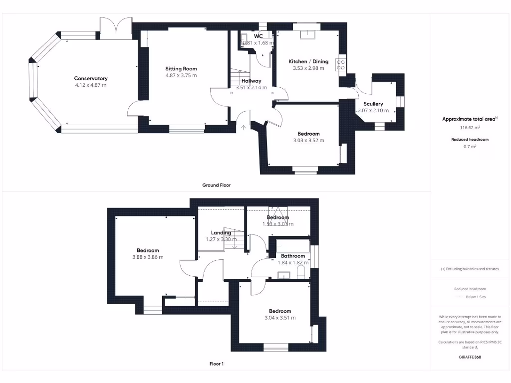
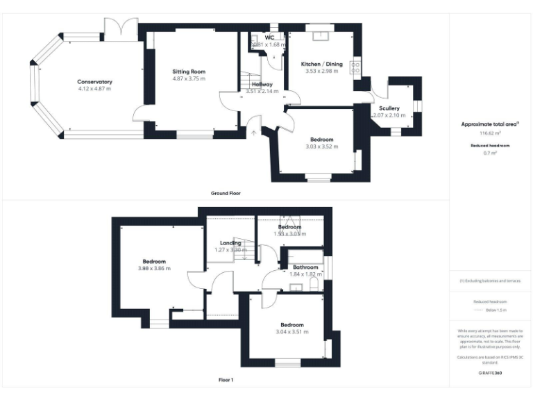
Hillcrest is a substantial four-bedroom Victorian villa set above the colourful harbour town of Tobermory, offering elevated views and roomy period living across approximately 1,255 sq ft. The house retains many original features — high ceilings, sash windows, cast-iron balustrade and decorative fireplaces — creating graceful, characterful reception rooms and bedrooms for family life.

Set within about 0.5–0.57 acres of mature gardens, the plot is a major asset: lawned grounds, mature trees and a large rear shed plus scope for further use or development (subject to planning). Practical features include off-street parking accessed by a shared private driveway, a conservatory off the lounge, a utility room, and a multi-fuel stove and duel-fuel range in the kitchen.

Buyers should note material facts plainly: heating is oil-fired, broadband speeds are average despite excellent mobile (4G) reception, and council tax is above average. The property sits in an area classified as very deprived, and tenure is not specified in the information supplied. The driveway is shared and access requires following a private track up the hill.

This house will suit families seeking spacious period accommodation near town amenities and island transport links, or purchasers looking for a character property with garden potential. Early viewing is recommended given the size of the plot and the property's elevated position overlooking Tobermory.

Property Details

Image Descriptions

Floorplan Description

Rooms

Textual Property Features

Target Audience

AI Tags

Detected Visual Features

Nearest Bars And Restaurants

,,,,}

Nearest General Shops

,,}

Nearest Grocery shops

,,}

Nearest Supermarkets

}

Nearest Religious buildings

,,}

Nearest Medical buildings

,,,}

Nearest Leisure Facilities

,,,,}

Nearest Tourist attractions

,,}

Nearest Train stations

,}

Nearest Bus stations and stops

,,,,}

Nearest Hotels

,,}

Tags

Local Market Stats

AirBnB Data

Similar Properties

Meta

High Res Images

Compatible Images

Low res Images

Thumbnails

Raw Images

High Res Floorplan Images

Compatible Floorplan Images

Low res Floorplan Images

FloorplanImages Thumbnail

Raw Floorplan Images