**Standout Features:**
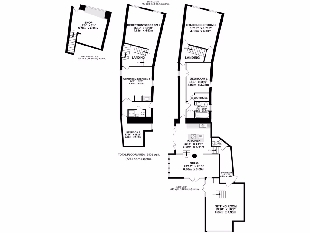
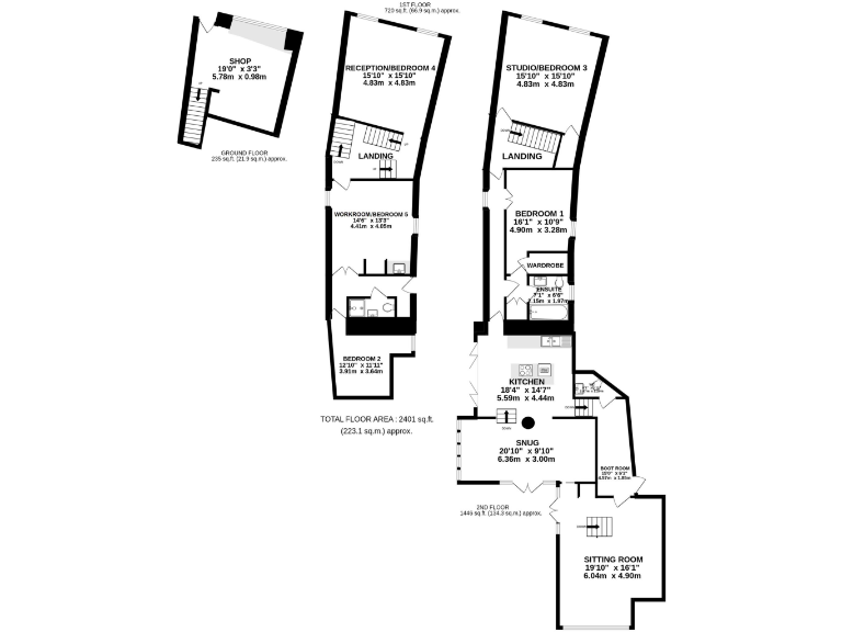
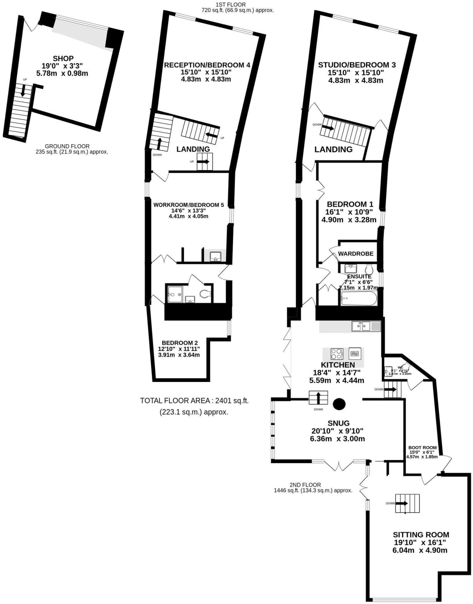
- **Spacious 5 Bedroom Home:** Over 2,400 square feet of versatile accommodation.
- **Dual-Purpose Space:** Includes a commercial shopfront with large display windows.
- **Beautifully Landscaped Garden:** Features private terraced areas and an Arbor with stunning views of the Camel Estuary.
- **Desirable Location:** Steps away from the vibrant harbor, shops, cafés, and restaurants of Padstow.
- **Luxurious Interior Highlights:** High vaulted ceilings, bespoke kitchen, and elegant living spaces.
This exquisite property, located in the charming Old Part of Padstow, offers a rare blend of spacious living and commercial potential. With five double bedrooms, and adaptable spaces including a stylish gallery shopfront, this residence is perfect for both families seeking comfort and investors looking for promising rental opportunities. Enjoy morning coffee in the beautifully landscaped garden featuring terraced dining areas and sweeping views across the rooftops to the pristine Camel Estuary.
Inside, the home showcases top-tier craftsmanship, including an elegant Douglas Fir framed extension and reclaimed period features that reflect its historic roots. Each room unfolds with unexpected charm—from the versatile multi-room living areas to the luxurious master suite, complete with a walk-in wardrobe and en-suite bathroom.
However, it's essential to note that with an EPC rating of F, potential buyers may want to explore energy efficiency improvements. Additionally, the property sits on a small plot, typical in this coastal setting. Overall, 30 Duke Street represents an unparalleled opportunity in a desirable location; properties like this rarely stay on the market long. Don’t miss your chance to own a piece of Padstow's enchanting landscape—schedule your viewing today!
3 bedroom house for sale in Duke Street, Padstow, PL28 — £480,000 • 3 bed • 1 bath • 715 ft²
High street retail property for sale in Duke Street, Padstow, Cornwall, PL28 8AB, PL28 — £1,275,000 • 1 bed • 1 bath • 2400 ft²
5 bedroom detached house for sale in Treverbyn Road, Padstow, Cornwall, PL28 — £1,750,000 • 5 bed • 6 bath • 2798 ft²
4 bedroom terraced house for sale in Oak Terrace, Padstow, Cornwall, PL28 — £700,000 • 4 bed • 3 bath • 1329 ft²
2 bedroom house for sale in An Dyji, Padstow, PL28 — £1,150,000 • 2 bed • 2 bath • 1365 ft²
3 bedroom house for sale in St. Saviours Lane, Padstow, PL28 — £1,250,000 • 3 bed • 3 bath • 1081 ft²






































































































