**Standout Features:**
- Secure, gated community for over-45s
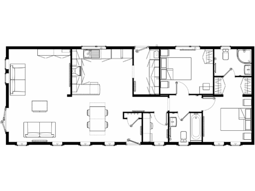
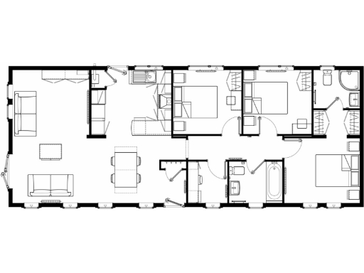
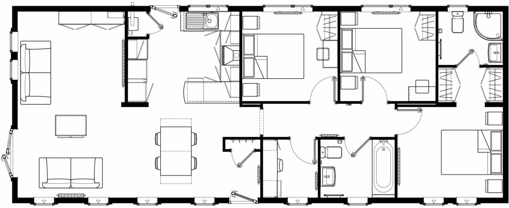
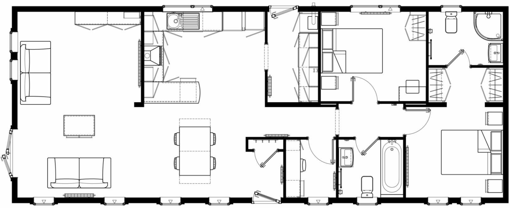
- Brand new, customizable single-storey park homes (2-3 bedrooms, 1000 sq ft)
- Modern design with high ceilings and fully furnished options
- Coastal location with easy maintenance and pet-friendly spaces
- No stamp duty, saving thousands
- Flexible moving options, including part exchange and assisted move
- Strong sense of community and lifestyle for tranquil living
Experience the best of relaxed, coastal living in a stunning brand-new park home located within a vibrant, gated community exclusively designed for those aged 45 and over. These single-storey homes boast customizable layouts and modern designs, offering spacious living areas, fully furnished interiors, and high-quality finishes throughout. With sizes averaging 1000 sq ft, you can enjoy comfort and style while embracing the freedom of low-maintenance living.
This community not only welcomes pets but also fosters a friendly atmosphere perfect for those looking to downsize or seek a lifestyle change. Benefit from significant savings with no stamp duty and easy-moving options, ensuring a seamless transition to your new home.
Situated just minutes from the beautiful seaside town of Lowestoft, you’ll have access to scenic beach walks, local shops, and excellent transport links. With this exclusive opportunity for year-round living in a picturesque, secure setting, don’t miss out on making this luxurious retreat your own. Act fast as homes in this desirable community are bound to go quickly!
2 bedroom park home for sale in Chapel Road,
Carlton Colville,
Lowestoft,
Suffolk,
NR338BL, NR33 — £249,995 • 2 bed • 2 bath • 900 ft²
2 bedroom park home for sale in Chapel Road,
Carlton Colville,
Lowestoft,
Suffolk,
NR338BL, NR33 — £224,995 • 2 bed • 2 bath • 800 ft²
2 bedroom park home for sale in Chapel Road,
Carlton Colville,
Lowestoft,
Suffolk,
NR338BL, NR33 — £199,995 • 2 bed • 2 bath • 560 ft²
3 bedroom villa for sale in The Hollies, London Road, NR33 — £164,995 • 3 bed • 2 bath • 800 ft²
1 bedroom park home for sale in Marsh Road, Lowestoft, NR33 — £80,000 • 1 bed • 1 bath • 582 ft²
2 bedroom park home for sale in The Hollies, Kessingland, NR33 — £139,000 • 2 bed • 2 bath


































































