Renovated 3-bed home near Dartmoor with garden and garage.
- Immaculately presented three-bedroom detached house
- Newly fitted contemporary kitchen with integrated appliances
- South-east facing private garden with patio and lawn
- Single garage with plumbing and electricity for laundry
- Driveway parking for two cars in tandem (less convenient)
- New gas condensing boiler and uPVC double glazing
- EPC rating C; council tax band D (moderate)
- Built 2001; approx. 947 sq ft — average overall size
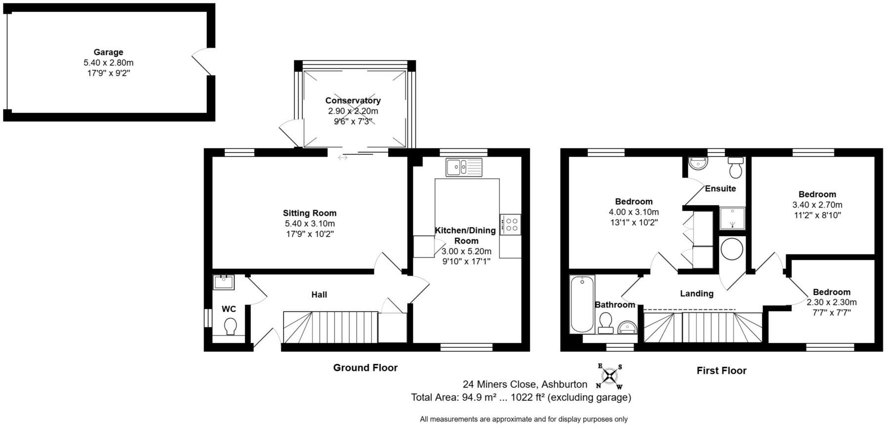
This immaculate three-bedroom detached home, built in 2001 and newly renovated, sits in a quiet cul-de-sac within easy walking distance of Ashburton town centre and South Dartmoor College. The living room opens via patio doors into a conservatory, extending family space and providing direct access to a secluded south-east facing garden with patio and lawn.
The recently fitted contemporary kitchen/diner includes integrated appliances and a wine cooler, and there is a ground-floor WC and useful understairs storage. Upstairs the master bedroom benefits from fitted wardrobes and an en suite shower room, alongside a second double, a generous single and a family bathroom.
Practical features include a single garage with plumbing and electrics for laundry, tandem driveway parking for two cars, uPVC double glazing, a new gas condensing boiler and EPC rating C. The property is well suited to families wanting easy access to Dartmoor and local schools, with low local crime and good commuter links via the A38 to Plymouth and Exeter.
Notable considerations: the house is of average overall size (approximately 947 sq ft) and parking is tandem, which can be less convenient for two drivers. Council Tax falls in a moderate band D. Prospective buyers should verify all fittings and services independently.
4 bedroom detached house for sale in Miners Close, Ashburton, TQ13 — £450,000 • 4 bed • 1 bath • 1230 ft²
3 bedroom semi-detached house for sale in Cooks Close, Ashburton, Newton Abbot, TQ13 7AN, TQ13 — £360,000 • 3 bed • 1 bath • 926 ft²
2 bedroom detached bungalow for sale in Balland Park, Ashburton, TQ13 — £325,000 • 2 bed • 1 bath • 786 ft²
5 bedroom detached house for sale in Emmetts Park, Ashburton, TQ13 — £439,950 • 5 bed • 1 bath
4 bedroom detached house for sale in Old Manor Close, Ashburton, TQ13 — £625,000 • 4 bed • 2 bath • 1841 ft²
3 bedroom terraced house for sale in East End Terrace, Ashburton, TQ13 — £310,000 • 3 bed • 1 bath






















































































































































