Affordable period house near beach with Lifetime Lease option for over-60s.
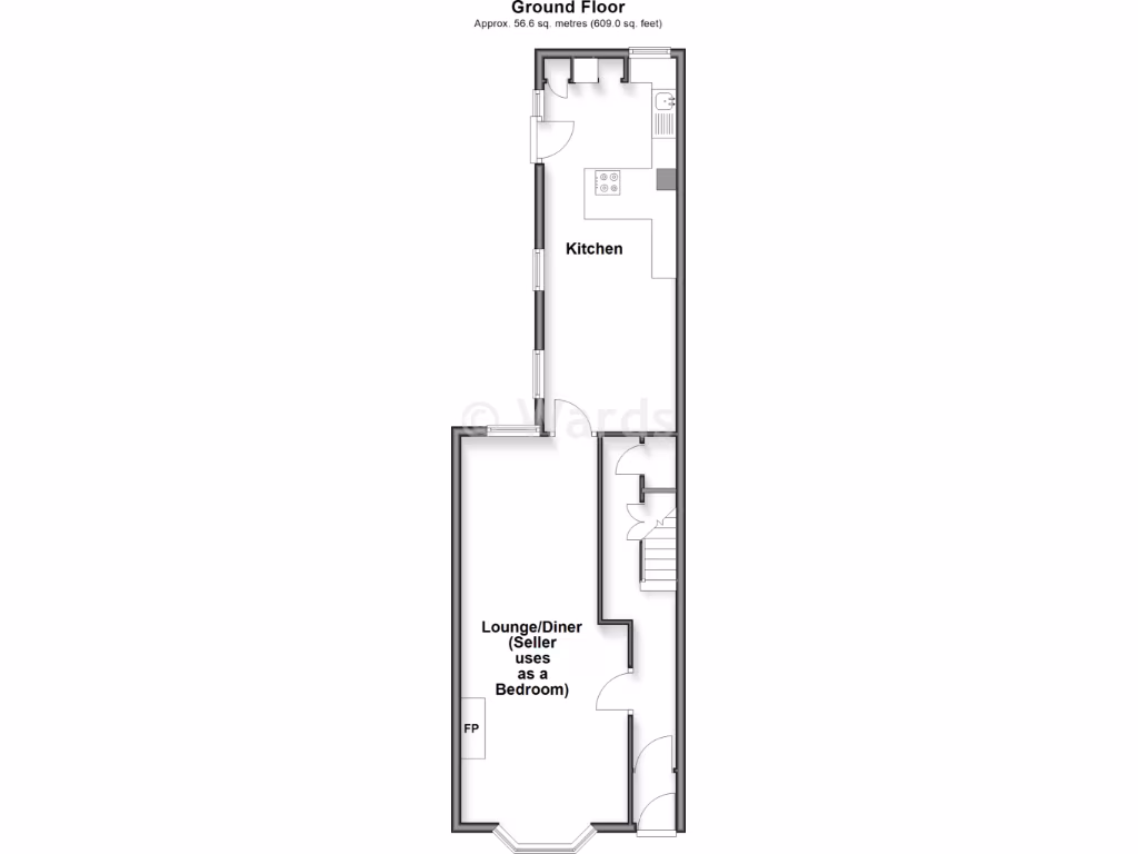
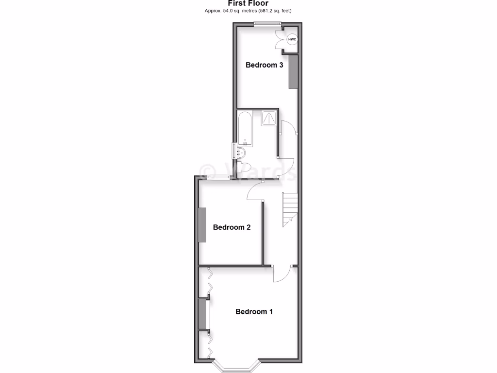
- Three bedrooms and long lounge/diner with bay window period feature
- Blue Flag beach a short walk away; town and train within walking distance
- Lifetime Lease option for 60+ buyers; indicative price £159,000 (market £240,000)
- Freehold tenure; small rear garden with patio and rear access
- Requires full modernisation, external upkeep and likely damp repairs
- Solid brick walls assumed uninsulated; heating via mains gas boiler
- Single bathroom; built circa 1900–1929 with standard ceiling heights
- Local area: high crime and very deprived wider area
A solid Victorian terraced home within easy walking distance of Sheerness town centre and the Blue Flag beach at the end of the road. The house offers three bedrooms, a long lounge/diner and a rear garden with patio and access — a rare mix of period character and practical outdoor space on a small urban plot.
This property is being promoted with a Lifetime Lease option for those aged 60+ through a Home for Life plan; indicative Lifetime Lease price shown is £159,000 (market value £240,000). The scheme allows purchasers to buy a share (up to 50%) to protect future value. First-time buyers and downsizers will appreciate the location, transport links and low council tax.
The house needs updating throughout: internal modernisation, external upkeep and likely damp repairs in places. Walls are original solid brick with assumed lack of cavity insulation. The layout is practical but dated — single bathroom and older kitchen — so budget for refurbishment if you want contemporary standards.
Local area factors are mixed: excellent mobile signal and fast broadband, short walks to schools, shops and bus/train links, but the wider area shows high crime and significant deprivation. This home suits a buyer seeking seaside proximity and long-term value who is prepared to invest in improvement or an over-60 buyer wanting an affordable Lifetime Lease solution.
3 bedroom terraced house for sale in Jefferson Road, Sheerness, Kent, ME12 — £126,000 • 3 bed • 1 bath • 905 ft²
3 bedroom terraced house for sale in Alma Road, Sheerness, Kent, ME12 — £139,000 • 3 bed • 1 bath • 1281 ft²
3 bedroom terraced house for sale in Jefferson Road, Sheerness, Kent, ME12 — £190,000 • 3 bed • 1 bath • 905 ft²
3 bedroom terraced house for sale in Maple Street, Sheerness, Kent, ME12 — £210,000 • 3 bed • 1 bath • 797 ft²
4 bedroom terraced house for sale in Alma Road, Sheerness, Kent, ME12 — £240,000 • 4 bed • 1 bath • 1372 ft²
3 bedroom terraced house for sale in Alma Road, Sheerness, Kent, ME12 — £210,000 • 3 bed • 1 bath • 1281 ft²














































