Central seaside high-street unit with storage and garage.
Prominent Main Street shop with large display window
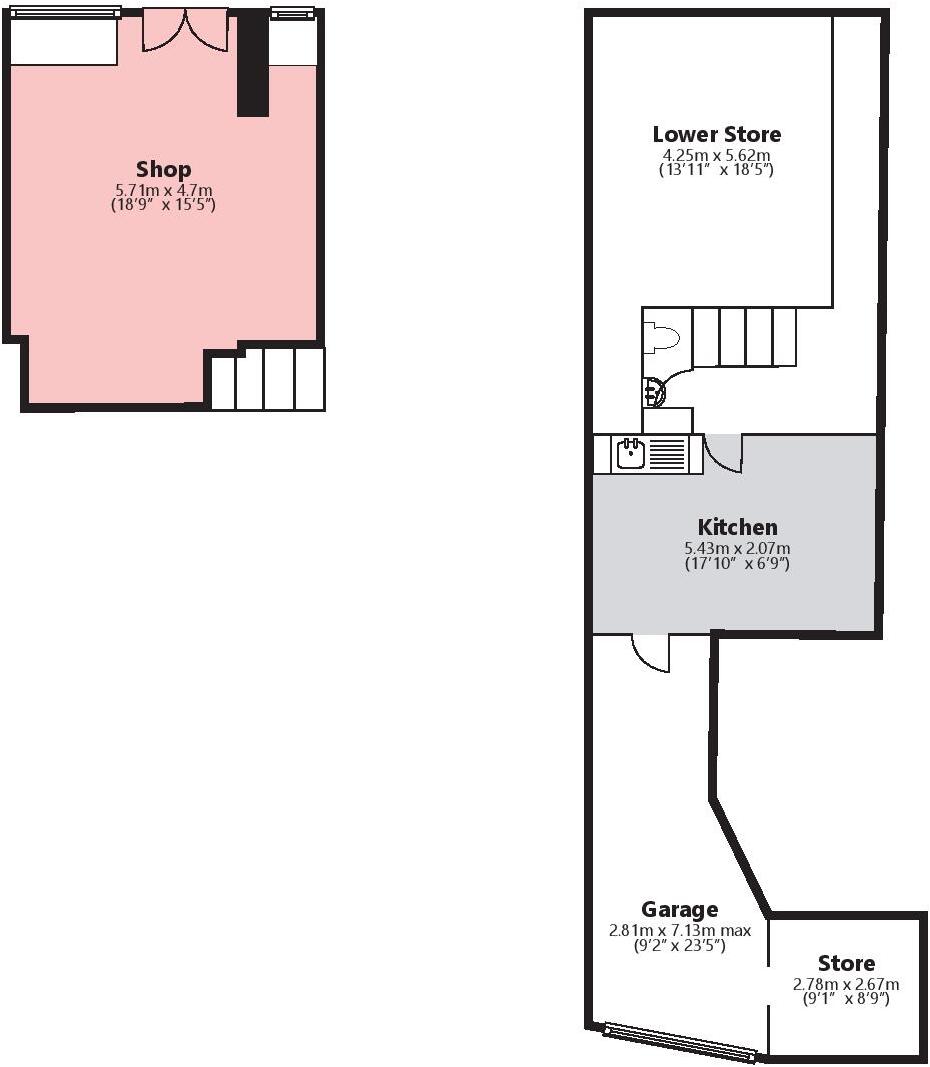
A prominently positioned retail unit on Main Street in picturesque Grange-over-Sands, arranged over ground and lower-ground floors with a large display window and street-facing footfall. The flexible 962 sq ft layout includes a main shop, kitchenette, two stores and a garage — useful for storage, workshop space or conversion subject to planning.
This is well-suited to investors or owner-operators seeking a central seaside high-street presence. Short-stay parking directly opposite improves customer access, and the property benefits from fast broadband and mains services. It sits within the Grange Conservation Area, close to the promenade, shops and rail links, making it attractive for retail, café or mixed commercial uses under Class E.
Practical points to note: the property has electric heating and a current lease option of 9 years FRI with a break clause and three-year rent reviews; the rateable value is £8,500 pa (small business relief may apply). Conservation area status and the lease specifics should be reviewed by buyers; buyers should also budget for routine maintenance and any fit-out works required to suit a new trading use.
Available now and offered freehold or subject to the existing lease terms, the unit presents a straightforward, centrally located commercial opportunity in an affluent, low-crime seaside town popular with visitors and locals alike.
Commercial property for sale in Palace Building, Main Street, Grange-over-Sands, LA11 — £140,000 • 2 bed • 1 bath • 965 ft²
2 bedroom apartment for sale in Flat 4, Crown Hill, Grange-over-Sands, Cumbria, LA11 6AB, LA11 — £260,000 • 2 bed • 1 bath • 727 ft²
2 bedroom ground floor flat for sale in Flat 1 The Granary, Main Street, Grange over Sands, LA11 6DY, LA11 — £179,950 • 2 bed • 1 bath • 703 ft²
Shop for sale in Queen Street, Ulverston, LA12 — £190,000 • 1 bed • 1 bath
2 bedroom terraced house for sale in Highview, Back Main Street, Grange-over-Sands, Cumbria, LA11 6DE, LA11 — £240,000 • 2 bed • 1 bath • 789 ft²
2 bedroom apartment for sale in 6 Hampsfell Grange, Grange over Sands, Cumbria, LA11 6AZ, LA11 — £135,000 • 2 bed • 1 bath • 597 ft²


































