Bright ninth-floor open-plan apartment with balcony, two beds and long lease near transport.
Ninth-floor apartment with private balcony and river outlook
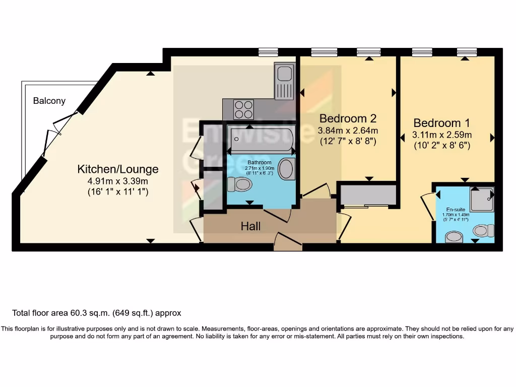
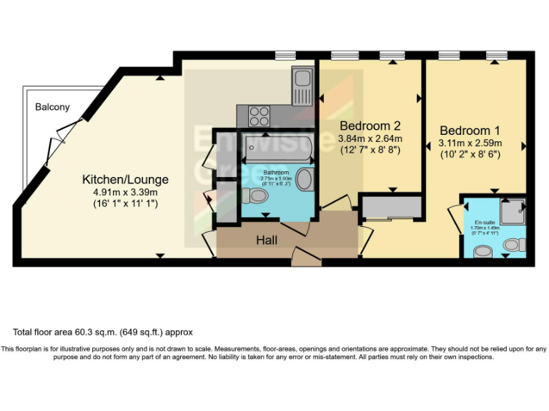
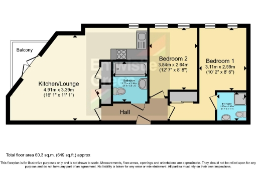
Set on the ninth floor of a modern riverside complex, this two-bedroom apartment offers bright open-plan living and a private balcony with water outlook. The living area flows to a fitted kitchen with integrated appliances; the master bedroom benefits from an ensuite and there is a second double bedroom and family bathroom. At around 649 sq ft the layout is efficient for city living.
Practical features include double glazing, built-in storage, laminate flooring in main areas and an entry phone system. The property is chain free and comes with a long lease (109 years). Broadband speeds are fast and mobile signal is excellent — useful for professionals and short-let occupiers.
Notable running costs include an annual service charge of about 2,744 and ground rent of 300. Heating is by electric room heaters, which can be more expensive than communal gas systems and may limit long-term energy efficiency. The building was constructed 2007011 and appears well maintained, but the property does not have a communal heating system.
This location sits within a cosmopolitan, student-heavy neighbourhood with excellent local amenities and transport links, making it attractive for investors or buyers seeking central city living. Be aware the area records higher crime levels; prospective buyers should consider security measures and insurance implications.
2 bedroom apartment for sale in Mann Island, Liverpool, L3 — £280,000 • 2 bed • 2 bath • 666 ft²
2 bedroom apartment for sale in Mann Island, Liverpool, L3 — £185,000 • 2 bed • 2 bath • 652 ft²
1 bedroom apartment for sale in Mann Island, Liverpool, L3 — £220,000 • 1 bed • 1 bath • 432 ft²
2 bedroom apartment for sale in Mann Island, Liverpool, L3 — £199,950 • 2 bed • 2 bath • 660 ft²
2 bedroom flat for sale in Mann Island, Liverpool, L3 — £245,000 • 2 bed • 2 bath • 714 ft²
2 bedroom apartment for sale in Mann Island, Liverpool, L3 — £190,000 • 2 bed • 2 bath • 660 ft²






























































