Stylish small-home living near shops, schools and great transport links.
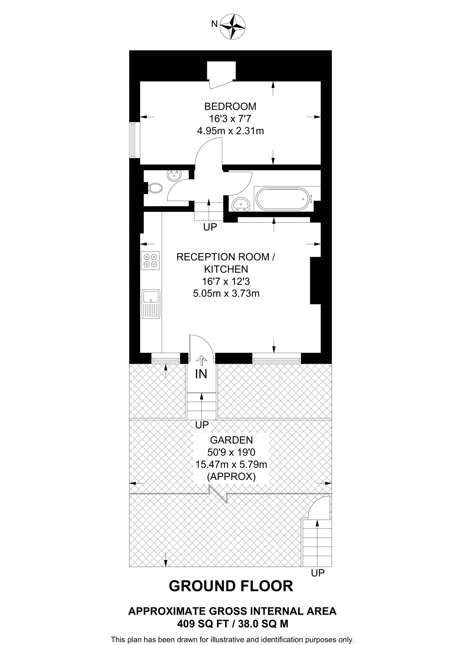
- Compact one-bedroom maisonette, approximately 409 sq ft
- Spacious open-plan reception with contemporary kitchen
- Well-sized double bedroom and sleek modern bathroom
- Private front garden provides outdoor space
- Share of freehold tenure — ownership control benefit
- Built 1900–1929 with solid brick; likely no wall insulation
- Double glazing install date unknown; possible energy inefficiency
- Fast broadband, excellent mobile signal, low local crime
This contemporary 1-bedroom maisonette offers a compact, well-presented home ideal for a first-time buyer seeking move-in-ready style close to Thornton Heath amenities. The open-plan reception and modern kitchen create a bright, sociable space while a well-sized double bedroom and sleek bathroom keep the living footprint efficient and comfortable.
Practical positives include a private front garden, share of freehold tenure and good local connectivity with Thornton Heath’s shops, cafes and transport links nearby. Fast broadband and excellent mobile signal suit home working, and nearby schools include several Ofsted-rated Good and Outstanding options.
Consider the property’s limitations before viewing: the overall size is small (approximately 409 sq ft) and the building dates from 1900–1929 with solid brick walls that are assumed to lack cavity insulation. Double glazing installation date is unknown, so heating costs and thermal performance may be higher than modern standards despite mains gas central heating. These are typical for period builds but worth factoring into your budgeting and any upgrade plans.
2 bedroom maisonette for sale in Winterbourne Road, Thornton Heath, CR7 — £325,000 • 2 bed • 1 bath • 546 ft²
1 bedroom apartment for sale in Melfort Road, Thornton Heath, CR7 — £235,000 • 1 bed • 1 bath • 574 ft²
2 bedroom apartment for sale in Burlington Road, Thornton Heath, Surrey, CR7 — £350,000 • 2 bed • 1 bath • 770 ft²
2 bedroom flat for sale in Northwood Road, Thornton Heath, CR7 — £225,000 • 2 bed • 1 bath • 666 ft²
1 bedroom character property for sale in Saxon Road, London, SE25 — £250,000 • 1 bed • 1 bath • 525 ft²
2 bedroom flat for sale in Melfort Road, Thornton Heath, CR7 — £350,000 • 2 bed • 1 bath • 872 ft²






















































































































































































































