**Standout Features:**
- Charming detached farmhouse with traditional design
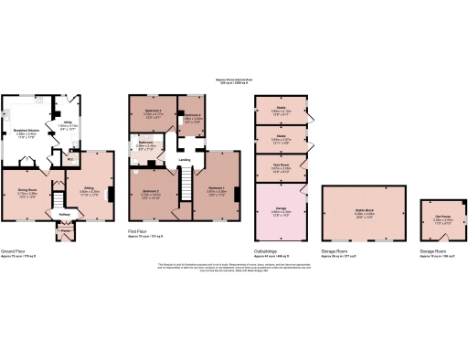
- Expansive property spanning over 7 acres, including 6.6 acres of paddock
- Includes a range of outbuildings and stabling, perfect for equestrian enthusiasts
- Four bedrooms and two reception rooms, ideal for family living
- Generous breakfast kitchen, utility room, and downstairs WC
- Desirable village location in Barsby, close to Leicester and Melton Mowbray
- Chain-free sale, offering immediate availability
**Potential Concerns:**
- Requires refurbishment and updates throughout the property
- Energy Rating G and reliance on electric storage heating may necessitate improvements
- Council Tax Band E, reflecting above-average property taxes
Discover the exclusive opportunity to own New House Farm, a picturesque detached farmhouse nestled in the tranquil village of Barsby. Encompassing over 7 acres, this property features extensive outbuildings and stabling, making it a dream come true for those seeking a rural lifestyle with equestrian potential.
Inside, you'll find a spacious breakfast kitchen, along with two inviting reception rooms and four well-proportioned bedrooms, providing ample space for family gatherings and entertaining. While the property is in need of refurbishment, it offers incredible potential for customization and upgrades.
Set in a highly desirable location, within striking distance of both Leicester and Melton Mowbray, Barsby village boasts a thriving community amidst the idyllic countryside. With no chain and early viewings encouraged, seize this rare opportunity to create your own rural retreat in a serene setting.
6 bedroom detached house for sale in Baggrave End, Barsby, Leicester, LE7 — £895,000 • 6 bed • 3 bath • 2586 ft²
2 bedroom cottage for sale in Main Street, Barsby, LE7 — £350,000 • 2 bed • 1 bath • 1172 ft²
3 bedroom detached house for sale in Ashby Road, Barsby, LE7 — £599,950 • 3 bed • 1 bath • 1636 ft²
4 bedroom detached house for sale in Warren Hills Road, Abbots Oak, Leicestershire, LE67 — £1,499,999 • 4 bed • 4 bath • 3942 ft²
3 bedroom house for sale in Desford Lane, Newbold Verdon, LE9 — £298,000 • 3 bed • 1 bath • 1342 ft²
4 bedroom house for sale in Glebe Farm, Great Dalby, LE14 — £599,950 • 4 bed • 2 bath • 1733 ft²






















































































