Conveniently placed for Preston transport links and local schools.
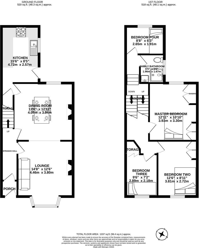
Four bedrooms within approx. 1,037 sq ft, efficient layout
This red-brick Victorian mid-terrace offers four bedrooms across approximately 1,037 sq ft, laid out efficiently for family life or shared occupation. The front bay window floods the principal reception with light and original period detail gives the façade character. Its freehold tenure and practical rear yard make it a straightforward purchase for first-time buyers or small families.
The house benefits from excellent travel links into Preston and beyond, with the train station and M6 access nearby. Fast broadband and strong mobile signal support modern working-from-home needs. Internal storage is sensible, several bedrooms include built-in wardrobes, and the single bathroom is currently configured as a wet room for simple maintenance.
Buyers should note the property sits in a neighbourhood classed as very deprived with higher local crime levels; on-street parking only and the plot/garden are small. The home shows signs of mid-century updating and will suit purchasers prepared to modernise decor and services to their taste. EPC rating D is average; the cavity walls are assumed uninsulated which could affect energy costs.
Overall this is a practical, well-located terraced house offering scope to add value through updating. It suits first-time buyers, growing families seeking proximity to schools and transport, or investors looking for rental potential in a city-centre suburb, provided they accept the local area challenges and modest outdoor space.
4 bedroom terraced house for sale in South Meadow Lane, Broadgate, PR1 — £230,000 • 4 bed • 1 bath • 1261 ft²
3 bedroom terraced house for sale in Norbreck Drive, Ashton-On-Ribble, Preston, PR2 — £129,950 • 3 bed • 1 bath • 905 ft²
6 bedroom terraced house for sale in Beech Grove, Ashton, PR2 — £325,000 • 6 bed • 2 bath • 1938 ft²
2 bedroom terraced house for sale in Oswald Road, Ashton-On-Ribble, PR2 — £130,000 • 2 bed • 1 bath • 666 ft²
2 bedroom terraced house for sale in Cannon Hill Preston PR2 2RR, PR2 — £135,000 • 2 bed • 1 bath • 840 ft²
4 bedroom house for sale in Blackpool Road, Fulwood, Preston, PR2 — £325,000 • 4 bed • 1 bath • 1375 ft²














































































