PH41 4QX - 1 bedroom cottage for sale in Ghillies Cottage, School Hous…

View on Property Piper

1 bedroom cottage for sale in Ghillies Cottage, School House, Mallaig, Inverness-Shire, PH41 4QX, PH41

Summary - GHILLIES COTTAGE, MALLAIG PH41 4QX

1 bed 2 bath Cottage

**Standout Features:**
- Charming detached stone cottage with beautiful sea views
- Flexible accommodation with one double bedroom and two attic rooms
- Bright conservatory with large windows & French doors to the garden
- Private off-street parking with ample space
- Located in the picturesque fishing village of Mallaig
- Recent price reduction of £20,000 below home report valuation
- Double glazing and electric heating throughout

**Potential Concerns:**
- EPC rating of G indicates low energy efficiency
- Broadband speeds are slow, which may be a concern for some buyers

Ghillies Cottage offers a unique opportunity to own a charming stone-built cottage nestled in the idyllic village of Mallaig, boasting spectacular sea views towards the Inner Hebrides. This property combines character and comfort, featuring a cozy lounge, fully equipped kitchen, and a sun-drenched conservatory perfect for soaking in the scenic surroundings. The cottage includes an adaptable layout ideal for a small family or as a holiday retreat, along with two attic rooms that can serve as additional sleeping quarters or workspaces.

Outside, the elevated garden enhances the appeal with mature shrubs and private parking, making this home perfect for nature lovers and those seeking tranquility. Although the EPC rating of G suggests room for improvement, the competitive pricing at £230,000 presents a rare chance for investors or first-time buyers to tap into the booming self-catering market in Mallaig. This beautiful property will not stay on the market for long—envision your life here in this beautiful coastal home!

Property Details

Brochure Descriptions

Image Descriptions

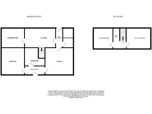
Floorplan Description

Rooms

Textual Property Features

Detected Visual Features

Nearest Bars And Restaurants

,,,,}

Nearest General Shops

,,}

Nearest Grocery shops

,,}

Nearest Supermarkets

}

Nearest Religious buildings

,,}

Nearest Medical buildings

,,,}

Nearest Leisure Facilities

,,,,}

Nearest Tourist attractions

,,}

Nearest Train stations

,,,,}

Nearest Bus stations and stops

,,,,}

Nearest Hotels

,,}

Tags

Local Market Stats

AirBnB Data

Similar Properties

Meta

High Res Images

Compatible Images

Low res Images

Thumbnails

Raw Images

High Res Floorplan Images

Compatible Floorplan Images

Low res Floorplan Images

FloorplanImages Thumbnail

Raw Floorplan Images