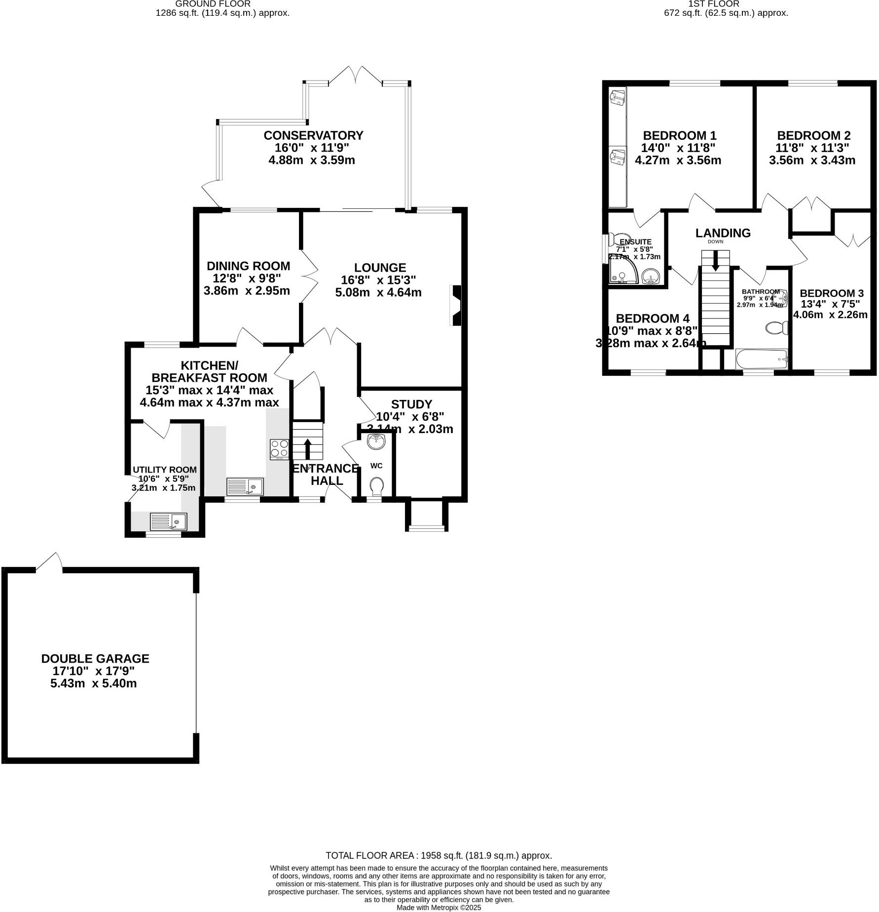
**Standout Features:**
- Modern detached family home
- Four spacious bedrooms, including en-suite
- Two reception rooms plus study
- Large enclosed rear garden
- Double garage with power and light
- No forward chain, allowing for immediate occupancy
- EPC rating of C
**Summary:**
Discover this charming modern detached family home, perfect for growing families. With four generous bedrooms, including a master with an en-suite, this home offers both comfort and functionality. The layout features two inviting reception areas, a well-equipped kitchen/breakfast room, and a practical study, providing flexible living space for family life or remote work. The double garage and ample off-road parking add significant convenience, while the enclosed rear garden is ideal for children to play or for hosting gatherings.
Positioned in a comfortable neighborhood close to Fareham town center, this home benefits from low crime rates and an affluent community. Local schools receive favorable ratings, enhancing its appeal for families. Although council tax is on the higher side, the property’s overall condition, with double glazing and mains gas central heating, promises a warm, inviting atmosphere. With no forward chain, this opportunity won't last long—don’t miss your chance to make this house your home!
4 bedroom detached house for sale in Ranvilles Lane, Fareham, PO14 — £595,000 • 4 bed • 1 bath • 1723 ft²
4 bedroom detached house for sale in Hampton Grove, Catisfield, Fareham, PO15 — £400,000 • 4 bed • 1 bath • 1299 ft²
4 bedroom detached house for sale in Coghlan Close, Fareham, PO16 — £575,000 • 4 bed • 2 bath • 1773 ft²
4 bedroom detached house for sale in Red Barn Lane, Fareham, PO15 — £425,000 • 4 bed • 2 bath • 1224 ft²
5 bedroom detached house for sale in Justin Close, Fareham, PO14 — £550,000 • 5 bed • 3 bath • 1678 ft²
4 bedroom detached house for sale in Middle Mead, Fareham, PO14 — £389,000 • 4 bed • 1 bath • 927 ft²


































































































