S63 6FB - 3 bedroom end of terrace house for sale in Collier Court, B…

View on Property Piper

3 bedroom end of terrace house for sale in Collier Court, Brampton Bierlow, Rotherham, S63

Summary - 40 COLLIER COURT BRAMPTON BIERLOW ROTHERHAM S63 6FB

3 bed 1 bath End of Terrace

**Key Features:**
- Three well-proportioned bedrooms
- Modern design with a welcoming reception area
- Large private garden ideal for relaxation and family gatherings
- Off-street parking for added convenience
- Located in a quiet neighborhood with good local amenities
- Built between 2003-2006 with energy-efficient double glazing

**Summary:**
Discover the perfect family sanctuary in this modern, three-bedroom semi-detached home. Ideal for first-time buyers and young families, this property boasts a spacious and inviting reception room that flows into a stylish kitchen/dining area, featuring contemporary fixtures and ample storage. The large private garden is a true highlight, offering a versatile outdoor space perfect for entertaining, play, or serene moments under the stars.

Situated in a friendly neighborhood, the home is conveniently located near good schools and local amenities, making it an excellent choice for those looking to settle in a vibrant community. While the area has a higher crime rate and the economic classification points to challenges, this property presents an opportunity for enhancing both quality of life and comfort. Off-street parking adds to the convenience of this family-friendly haven. With its blend of practicality and charm, this home is poised for lasting memories—don’t miss out on making it your own!

Property Details

Brochure Descriptions

Image Descriptions

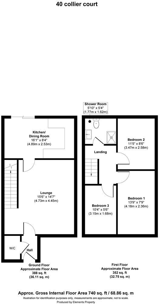
Floorplan Description

Rooms

Textual Property Features

Detected Visual Features

EPC Details

Nearby Schools

Nearest Bars And Restaurants

,,,,}

Nearest General Shops

,,}

Nearest Grocery shops

,,}

Nearest Supermarkets

,,}

Nearest Religious buildings

,,}

Nearest Medical buildings

,,,}

Nearest Airports

}

Nearest Leisure Facilities

,,,,}

Nearest Tourist attractions

,,}

Nearest Train stations

,,,,}

Nearest Bus stations and stops

,,,,}

Nearest Hotels

,,}

Tags

Local Market Stats

Similar Properties

Meta

High Res Images

Compatible Images

Low res Images

Thumbnails

Raw Images

High Res Floorplan Images

Compatible Floorplan Images

Low res Floorplan Images

FloorplanImages Thumbnail

Raw Floorplan Images