Private rear garden, two bathrooms and short walk to Watford Junction.
Chain free and available for immediate occupation
Private rear garden — unusual for a flat
Two bathrooms, including an en suite
Modern kitchen, wood floors, and double glazing
Modest overall size (approx. 789 sq ft)
Leasehold tenure; check lease length and terms
Solid brick walls likely without modern insulation
EPC rating C; mains gas heating via boiler
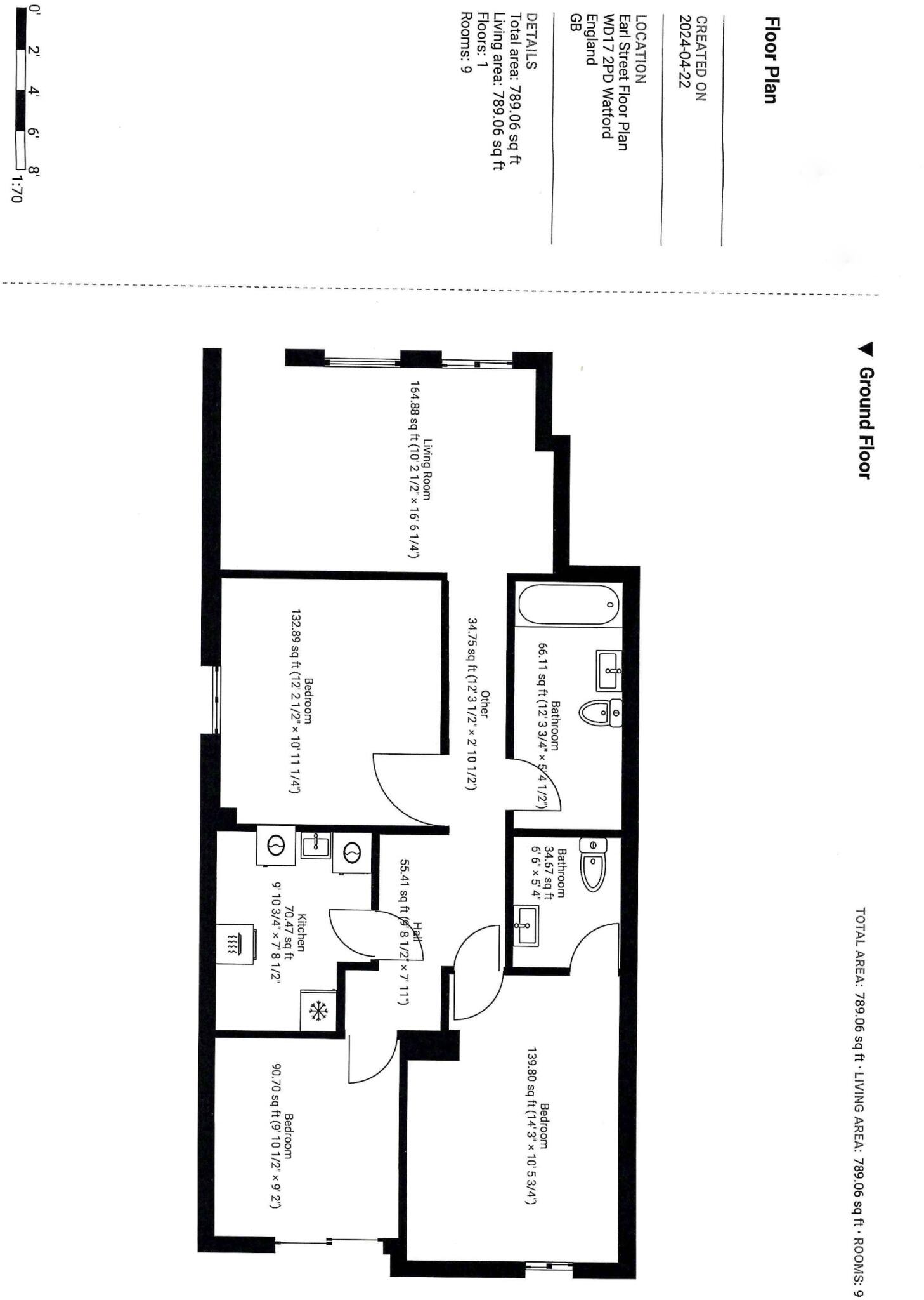
Set just a short walk from Watford Junction and the town centre, this chain-free three-bedroom apartment suits first-time buyers seeking immediate occupation and easy commuting. The layout includes a modern fitted kitchen, open-plan living and dining, two bathrooms (one en suite) and a private rear garden — rare for a flat of this size.
The property sits in a mid-terrace building constructed before 1900, with solid brick walls and double glazing installed after 2002. Heating is mains gas via a boiler and radiators; the current EPC rating is C. Wood floors, neutral decor and good natural light give the living areas a fresh, move-in-ready feel.
Practical points to note: the home is leasehold and overall floor area is modest at about 789 sq ft, so rooms are comfortable rather than generous. The building’s solid-wall construction likely lacks modern cavity insulation, which could mean higher heating costs unless improved. Crime levels are average and local amenities, schools and transport links are strong.
This is a pragmatic purchase for buyers prioritising location and convenience over expansive internal space. The private garden, two bathrooms and proximity to excellent secondary schools make it viable for small families, sharers or investors targeting good rental demand in a major conurbation.
2 bedroom flat for sale in 29 Loates Lane, Watford, WD17 — £240,000 • 2 bed • 1 bath • 720 ft²
3 bedroom apartment for sale in Alexandra Court, Keele Close, WD24 — £350,000 • 3 bed • 2 bath • 847 ft²
3 bedroom flat for sale in West Street, Watford, WD17 — £500,000 • 3 bed • 2 bath • 1200 ft²
3 bedroom apartment for sale in Leavesden Road, Watford, WD24 — £375,000 • 3 bed • 2 bath • 696 ft²
1 bedroom apartment for sale in Farthing Close, Watford, WD18 — £250,000 • 1 bed • 1 bath • 442 ft²
1 bedroom flat for sale in Langley Road, Watford, WD17 — £240,000 • 1 bed • 1 bath • 431 ft²














































