DA12 4HL - 3 bedroom terraced house for sale in Medhurst Crescent, Gra…

View on Property Piper

3 bedroom terraced house for sale in Medhurst Crescent, Gravesend, Kent, DA12

Summary - Medhurst Crescent, Gravesend, Kent, DA12 DA12 4HL

3 bed 1 bath Terraced

**Standout Features:**
- 3 spacious bedrooms, perfect for families or first-time buyers
- Appealing rear garden for outdoor activities and future landscaping
- Versatile front room ideal for a study or extra storage
- Potential for driveway installation at the front for added convenience
- Solid foundation ready for modernization and personal touches
- Quick access to excellent local schools and commutes to London

**Concerns:**
- Requires renovation and updating throughout
- Currently listed in a neighborhood with above-average crime rates

**Summary:**
Discover a hidden gem on Medhurst Crescent—a charming mid-terraced house that boasts tremendous potential, perfect for families and first-time buyers eager to craft their dream home. This solid property features three good-sized bedrooms, a cozy lounge, and a spacious kitchen diner ideal for family gatherings. Enjoy the outdoors with a generous rear garden for play and relaxation, along with the flexibility of adding off-street parking.

While it requires modernization, this home invites creativity, allowing you to shape your surroundings to fit your vision. With all essential amenities nearby and a favorable location for high-quality schools, this property offers not just a house, but a community. Don't miss out on this exceptional opportunity to invest in a space that can truly become your own. Act fast—projects like this won't last long!

Property Details

Brochure Descriptions

Image Descriptions

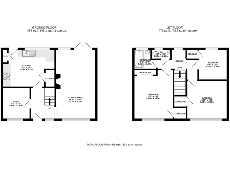
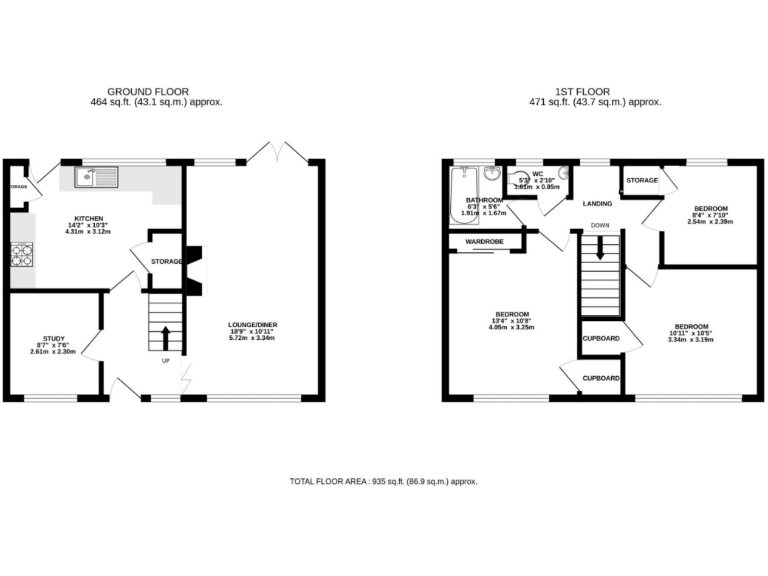
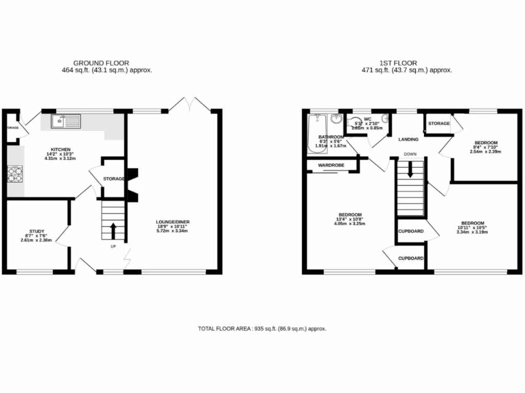
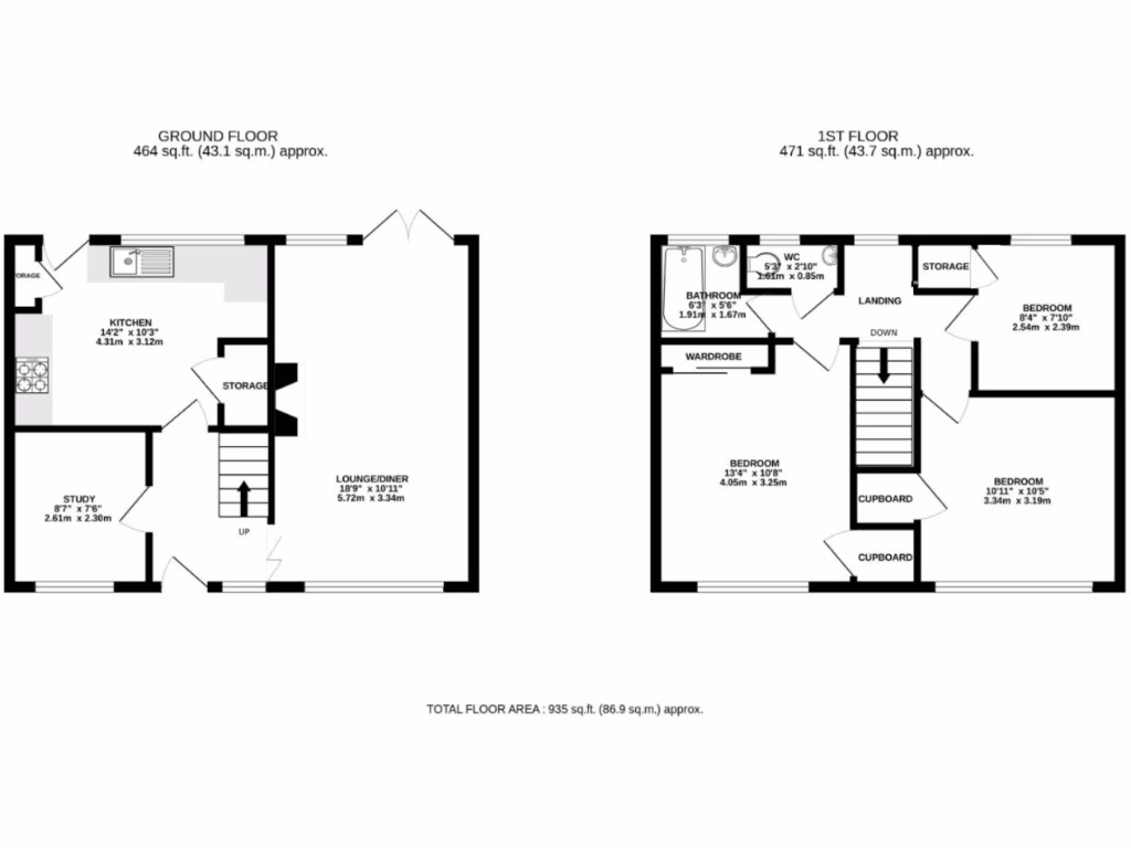
Floorplan Description

Rooms

Textual Property Features

Detected Visual Features

EPC Details

Nearby Schools

Nearest Bars And Restaurants

,,,,}

Nearest General Shops

,,}

Nearest Grocery shops

,,}

Nearest Supermarkets

,,}

Nearest Religious buildings

,,}

Nearest Medical buildings

,,,}

Nearest Airports

,}

Nearest Leisure Facilities

,,,,}

Nearest Tourist attractions

,,}

Nearest Train stations

,,,,}

Nearest Bus stations and stops

,,,,}

Nearest Hotels

,,}

Tags

Local Market Stats

AirBnB Data

Similar Properties

Meta

High Res Images

Compatible Images

Low res Images

Thumbnails

Raw Images

High Res Floorplan Images

Compatible Floorplan Images

Low res Floorplan Images

FloorplanImages Thumbnail

Raw Floorplan Images