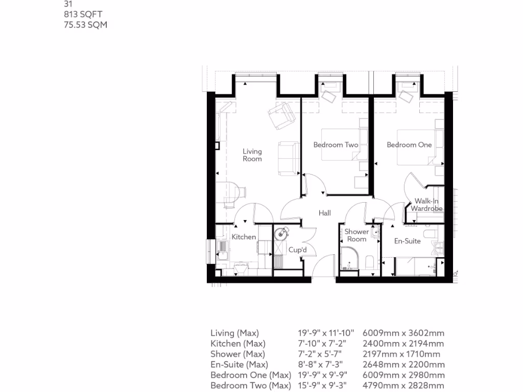
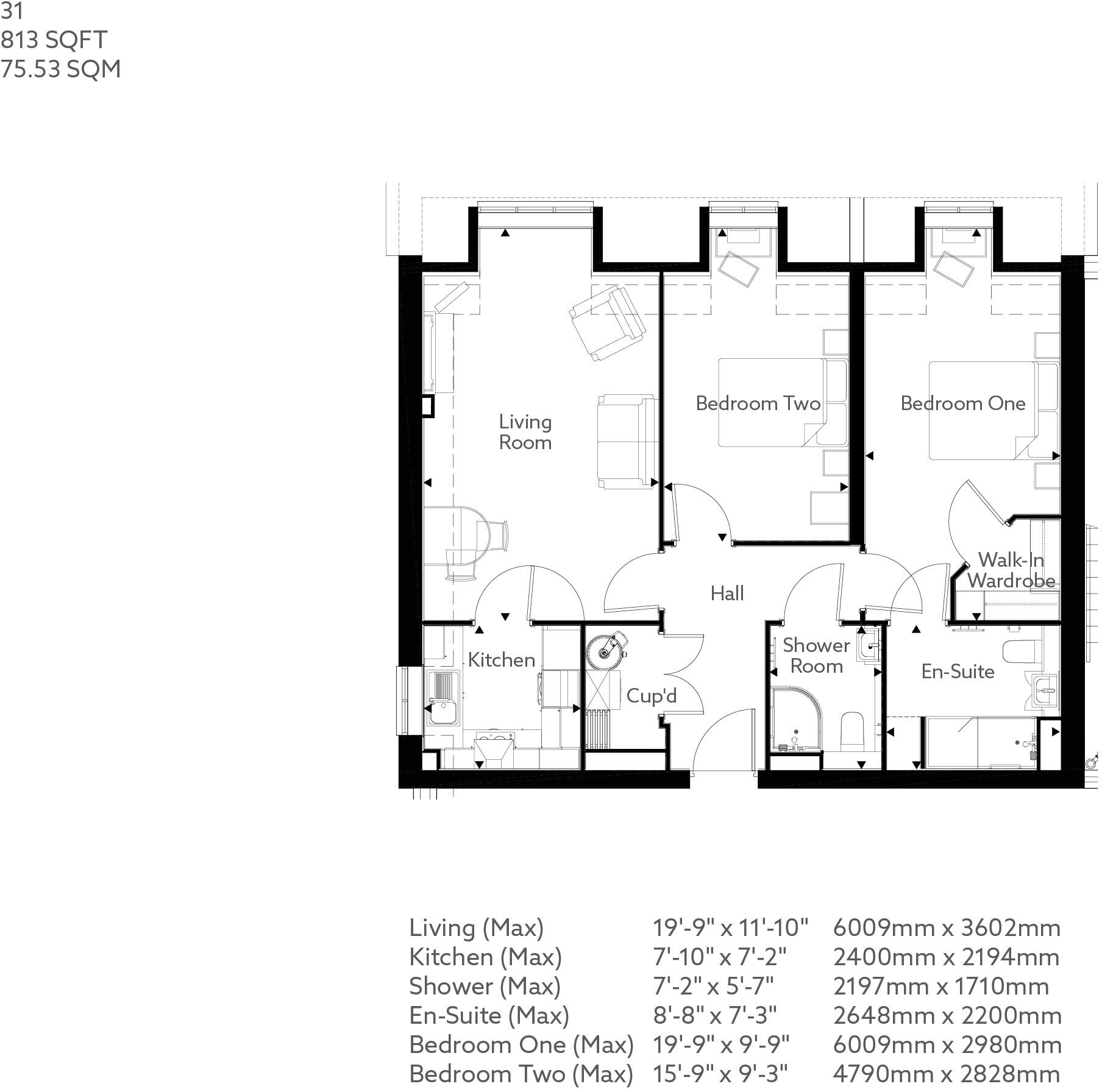
Two-bedroom retirement apartment with communal gardens, house manager and long lease..
- Two double bedrooms, main bedroom with fitted wardrobes and en-suite
- Open-plan lounge, dining and modern compact kitchen
- Second-floor apartment with lift access to all floors
- North-facing aspect limits direct sunlight into living spaces
- House Manager onsite (approx. 25 hours per week); 24-hour alarm
- Guest suite available; pets allowed subject to policy
- Shared ownership options shown; leasehold (987 years remaining)
- Service charge £499 pcm (below average); resale rules apply
Apartment 21 is a spacious two-bedroom retirement home arranged around a long open-plan living, dining and kitchen area. Both bedrooms are double-size; the main bedroom benefits from fitted wardrobes and a stylish en-suite with a double shower. The apartment sits on the second floor with lift access and a handy storage cupboard for everyday organisation.
The development offers true retirement conveniences: a House Manager on site during office hours (approximately 25 hours weekly), a 24-hour remotely-monitored alarm system, a communal lounge, landscaped gardens and a guest suite for overnight visitors. The property is built for over-55s and permits pets subject to the operator’s policy; renting the whole home is restricted by the scheme rules.
Tenure is leasehold under the Older Persons Shared Ownership model with long lease remaining (987 years) and example shared-ownership costs shown: £217,500 for a 50% share (£499 pcm service charge) or £326,250 for a 75% share (no rent). Service charge is £499 pcm (below average). Buyers should note this is shared ownership rather than freehold and resale/shared-ownership rules apply.
Practical points to consider: the apartment faces north, so garden and living-room sunlight is limited compared with south-facing homes. The building is new and modern with lifts to all floors, but prospective purchasers should check the shared-ownership eligibility, landlord nomination rights and any future service charge projections before committing.
1 bedroom retirement property for sale in Highgate Hill,
Hawkhurst,
Kent,
TN18 4FH, TN18 — £206,250 • 1 bed • 1 bath • 519 ft²
2 bedroom apartment for sale in Highgate Hill, Hawkhurst, TN18 — £515,000 • 2 bed • 2 bath • 882 ft²
1 bedroom retirement property for sale in Highgate Hill,
Hawkhurst,
Kent,
TN18 4FH, TN18 — £350,000 • 1 bed • 1 bath • 591 ft²
1 bedroom retirement property for sale in Highgate Hill,
Hawkhurst,
Kent,
TN18 4FH, TN18 — £335,000 • 1 bed • 1 bath • 568 ft²
2 bedroom retirement property for sale in Highgate Hill,
Hawkhurst,
Kent,
TN18 4FH, TN18 — £470,000 • 2 bed • 1 bath • 818 ft²
1 bedroom retirement property for sale in Highgate Hill,
Hawkhurst,
Kent,
TN18 4FH, TN18 — £299,000 • 1 bed • 1 bath • 586 ft²






































































