Spacious three-bedroom freehold in historic Abbey with resort facilities and strong holiday-let appeal.
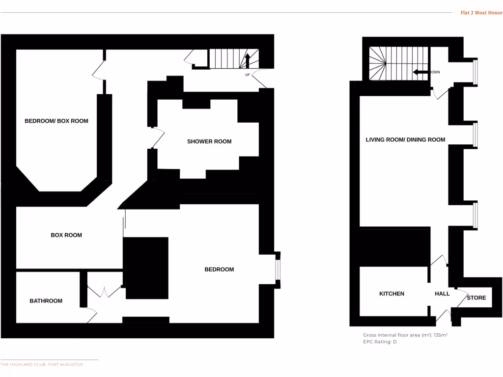
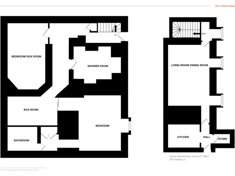
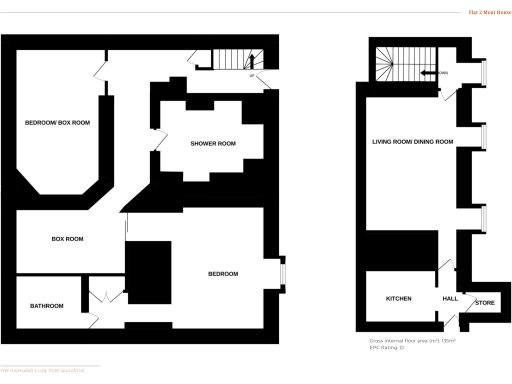
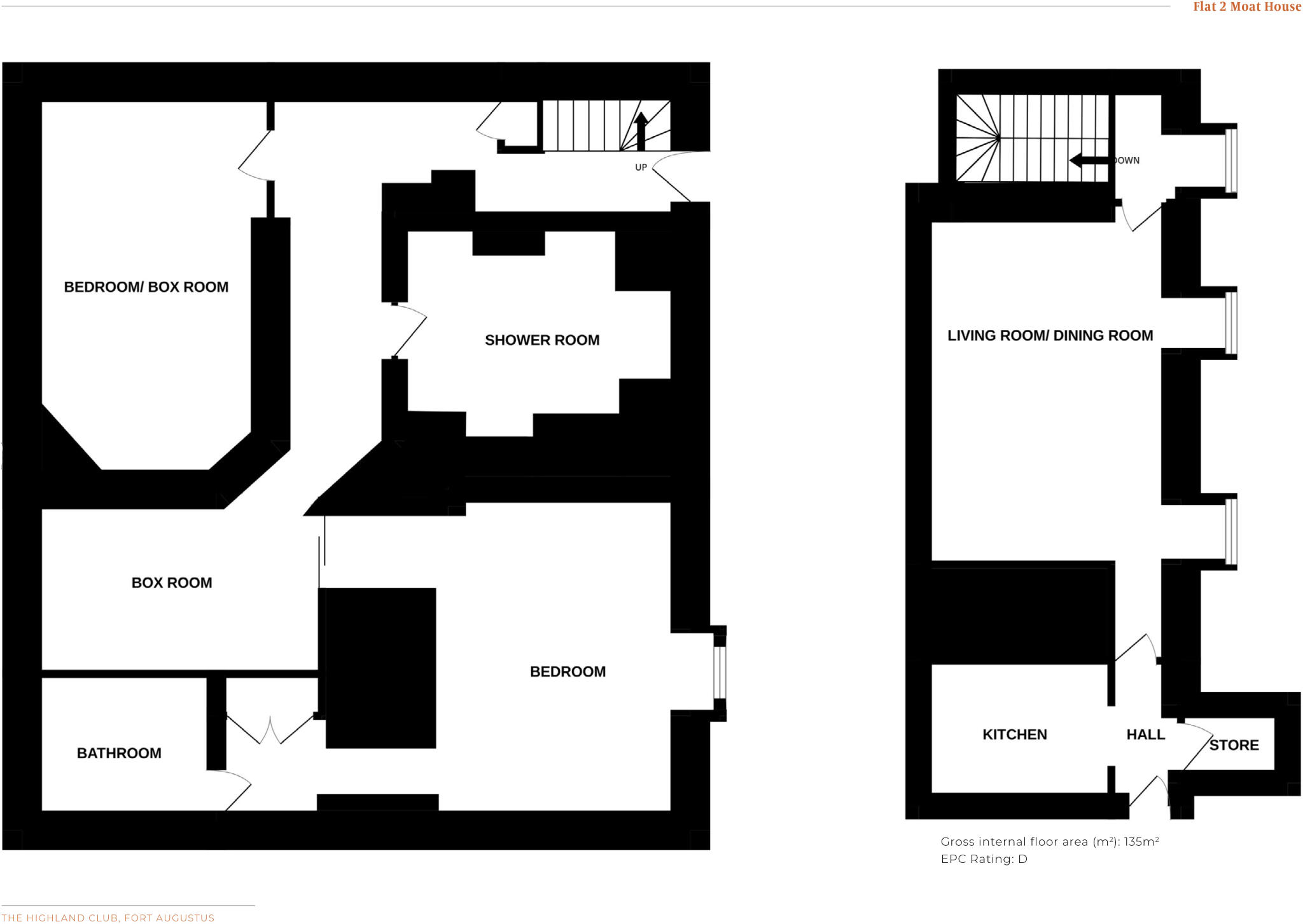
Freehold three-bedroom apartment, 1,453 sq ft across two levels
Original Gothic Revival features: high ceilings, sash windows, stonework
Upper-level living/dining with views over the Abbey cricket pitch
On-site resort facilities: pool, spa, gym, restaurant, boat moorings
Bedrooms on lower level — multi-story layout may challenge mobility
Limited broadband/mobile coverage; village connectivity is patchy
Wider area classified as very deprived — consider local service limits
Well suited to holiday-let or second-home investors
Set within the historic St. Benedicts Abbey, Flat 2, The Moat House is a two-level, freehold apartment offering striking character and proven holiday appeal. The property occupies 1,453 sq ft across two floors, with three double bedrooms on the lower level and a bright living and dining area on the upper level that looks out over the Abbey cricket pitch. Original features—high ceilings, sash windows and stone Gothic Revival detailing—combine with a fitted kitchen and contemporary bathrooms to create comfortable, authentic accommodation.
This apartment is well suited to second-home buyers or investors seeking a holiday-let in a high-profile Highland location. The Highland Club provides substantial on-site facilities including an indoor heated pool, spa, gym, tennis court, restaurant and boat moorings, supporting holiday occupancy and premium nightly rates. The freehold tenure and generous internal size add practical value for owners and managers.
Important practical points are clear: the layout is multi-story with bedrooms on the lower floor, which may not suit those with limited mobility. Mobile and broadband coverage in the village is limited (3G/4G/5G patchy), and the wider area is classified as very deprived — factors that may affect year-round local services and some running costs. There is no flood risk recorded. Buyers should also note communal retirement classification in the wider site information and consider management rules for holiday use.
Overall, Major’s Apartment offers rare period character, generous space and turnkey access to resort-style amenities. It will suit buyers wanting a distinctive Highland retreat with strong holiday-letting potential, provided they accept the village’s connectivity limits and the apartment’s multi-level plan.
2 bedroom apartment for sale in 1 Moat House The Highland Club, St. Benedicts Abbey, Fort Augustus, PH32 4BJ, PH32 — £275,000 • 2 bed • 2 bath • 891 ft²
2 bedroom apartment for sale in 8 The Monastery The Highland Club, St. Benedicts Abbey, Fort Augustus, PH32 4BJ, PH32 — £299,999 • 2 bed • 2 bath • 998 ft²
2 bedroom flat for sale in Flat 11, The Abbey Church, St. Benedict's Abbey , Fort Augustus, PH32 — £300,000 • 2 bed • 2 bath
2 bedroom apartment for sale in 3 The Brothers Wing The Highland Club, St. Benedicts Abbey, Fort Augustus, PH32 4BJ, PH32 — £285,000 • 2 bed • 2 bath • 565 ft²
1 bedroom flat for sale in 17 The Abbey Church, The Highland Club, Fort Augustus, PH32 — £250,000 • 1 bed • 1 bath • 1015 ft²
2 bedroom flat for sale in Flat 14 The Abbey The Highland Club, St. Benedicts Abbey, Fort Augustus, PH32 4DE, PH32 — £250,000 • 2 bed • 2 bath • 1012 ft²














































