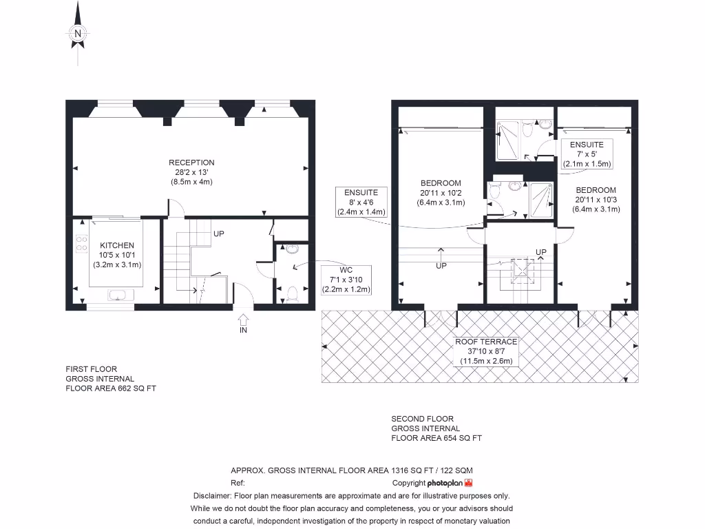
**Standout Features:**
- Spacious two-bedroom, two-bath duplex apartment in a secure gated community.
- Contemporary kitchen with integrated appliances and composite stone worktops.
- Large terrace and landscaped communal garden.
- Hotel-style concierge service and secure gated parking for two cars.
- Unique blend of modern interiors with period features in a historic building from 1906.
- Low crime area with excellent mobile signal and close proximity to Brent Cross Tube.
**Potential Downsides:**
- High service charge and substantial ground rent.
- Listed property status may complicate renovations.
- Average broadband speeds and affluent council tax.
Discover the perfect blend of modern luxury and historic charm in this exquisite duplex apartment located within the prestigious Carmel Gate community. With an impressive 1,316 square feet of elegant living space, this two-bedroom, two-bathroom flat boasts a contemporary kitchen outfitted with fully integrated appliances, a spacious lounge bathed in natural light from large windows, and a generous terrace perfect for outdoor gatherings. Enjoy the meticulously landscaped communal garden and benefit from the security and privacy of this gated development.
Conveniently situated in Temple Fortune, just a short walk to Brent Cross Tube and the abundant shops nearby, this property is ideal for families and professionals alike. With parking for two cars, and exceptional amenities including concierge service, your comfort and security are assured. Although the property holds listed status which may require careful consideration regarding renovations, its unique position offers potential for those with vision. Don't miss this opportunity to invest in a charming home that combines spacious living with modern-day conveniences in an affluent area. Schedule your viewing today—properties of this kind don’t last long.
2 bedroom flat for sale in Havanna Drive, London, London, NW11 — £690,000 • 2 bed • 2 bath • 806 ft²
3 bedroom flat for sale in Havanna Drive, London, NW11 9BB, NW11 — £850,000 • 3 bed • 2 bath • 1230 ft²
2 bedroom apartment for sale in Carmel Gate, NW11 — £1,100,000 • 2 bed • 2 bath • 1316 ft²
3 bedroom flat for sale in Havanna Drive, NW11 — £850,000 • 3 bed • 2 bath • 1220 ft²
4 bedroom flat for sale in Havanna Drive, Carmel Gate, London, NW11 — £1,900,000 • 4 bed • 2 bath • 1728 ft²
2 bedroom apartment for sale in Havanna Drive, London, NW11 — £1,100,000 • 2 bed • 2 bath • 1420 ft²






























































