Chain-free Victorian terrace with large garden and strong transport links — renovation opportunity..
Two double bedrooms with loft access
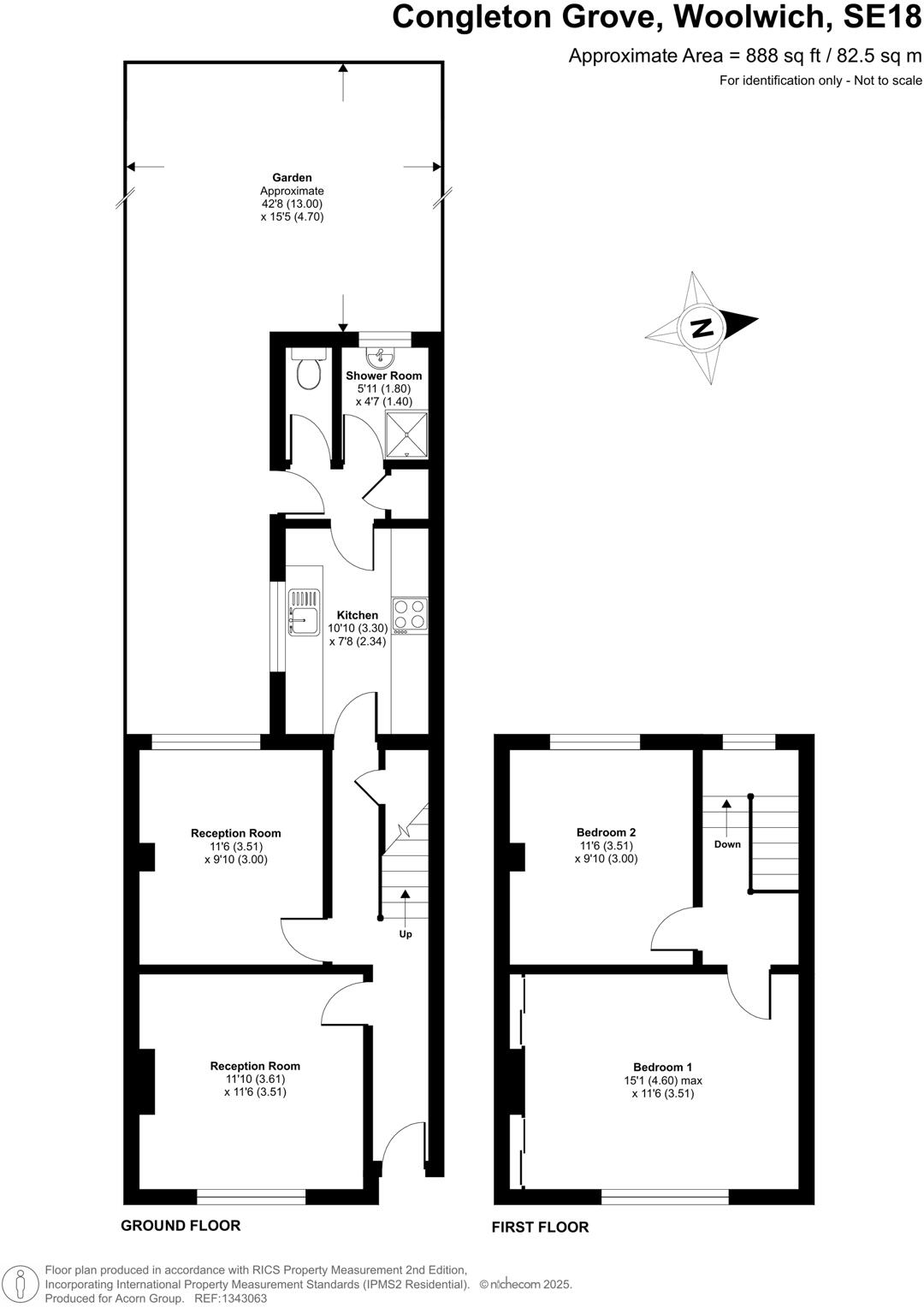
Two reception rooms plus fitted 10ft kitchen
Large 42ft rear garden, mainly lawn
Chain free; approximately 888 sq ft total space
Close to Woolwich station, DLR and Elizabeth Line
Needs internal renovation and cosmetic updating
Solid brick walls likely uninsulated; consider insulation works
Small plot; area shows local deprivation indicators
This Victorian mid-terrace offers spacious, practical accommodation for families or first-time buyers seeking value close to Woolwich transport links. The ground floor features two reception rooms, a fitted kitchen and a shower room plus separate WC, while two double bedrooms and loft access sit on the first floor. A sizable 42 ft rear garden provides outdoor space rarely found at this price.
The house is chain free and well located for Woolwich mainline station, DLR and the Elizabeth Line, with local buses and primary schools within easy reach. At about 888 sq ft of living space the property is an average-sized home with period character in the facade and internal features that could be restored or modernised to suit a new owner’s taste.
Important to note: the property needs internal renovation and some updating — carpets, décor and fittings are dated and the walls are solid brick with no assumed insulation. Heating is mains gas via boiler and radiators and windows are double glazed, but buyers should plan for refurbishment works and possible insulation or electrical upgrades. The plot is small, and overall the immediate area shows signs of deprivation, though local amenities and fast broadband help maintain everyday convenience.
For families prioritising space, garden and transport links, this home presents a practical refurbishment opportunity with immediate occupancy potential due to central heating and functioning facilities. Viewings will show the property’s scope for improvement and the clear value in a chain-free sale.
2 bedroom terraced house for sale in Sandy Hill Road, London, SE18 — £440,000 • 2 bed • 1 bath • 701 ft²
2 bedroom terraced house for sale in Burrage Place, Woolwich, SE18 — £450,000 • 2 bed • 1 bath • 1023 ft²
2 bedroom terraced house for sale in Frederick Place, Woolwich, SE18 — £430,000 • 2 bed • 3 bath • 852 ft²
3 bedroom terraced house for sale in Macoma Road, London, SE18 — £599,999 • 3 bed • 2 bath • 1296 ft²
3 bedroom end of terrace house for sale in Woodville Street, Woolwich, SE18 — £400,000 • 3 bed • 1 bath • 980 ft²
2 bedroom terraced house for sale in Sandy Hill Road, London, SE18 — £425,000 • 2 bed • 1 bath • 794 ft²






























































