Spacious waterfront living with exceptional outdoor terraces near Richmond.
Expansive open-plan upper deck with direct river views
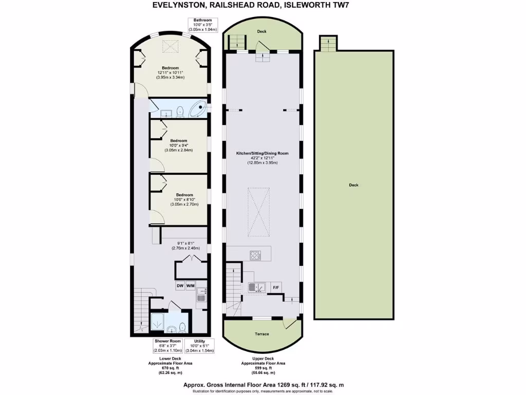
A rare riverside residence moored beside Richmond Lock, this converted Humber Keel offers genuine waterfront lifestyle with substantial external entertaining space. The upper deck is an expansive open-plan living, dining, kitchen and study zone that opens onto fore and aft decking plus a roof terrace with direct river views. Included utilities and propane central heating mean the boat functions like a conventional home in many respects.
The lower deck houses a master cabin with fitted wardrobes, two further cabins, a family bathroom, separate shower room and utility/plant area; there is scope for a fourth cabin or workshop. Ownership includes a share in Thistleworth Marine Limited, providing long-term mooring security and unusually low mooring/maintenance fees (approximately £252.04 monthly). Council tax Band A is very low.
This is a specialist asset suited to buyers seeking lifestyle and location rather than a conventional house — commuters to Richmond and St Margarets, or families wanting close green space and river access. Important considerations: the property sits in a high flood-risk location, broadband speeds are very slow, and the market for floating homes is niche, which can affect resale liquidity and insurance. Buyers should be comfortable with non-traditional tenure and possible ongoing maintenance of a converted vessel.
3 bedroom house boat for sale in Railshead Road, Isleworth, TW7 — £785,000 • 3 bed • 2 bath • 1269 ft²
3 bedroom house boat for sale in Panther Quay, Kingston Upon Thames, KT1 — £475,000 • 3 bed • 2 bath • 1472 ft²
Residential development for sale in Ducks Walk, London, TW1 — £800,000 • 3 bed • 1 bath • 341 ft²
3 bedroom house boat for sale in Penton Hook Marina, Chertsey, KT16 — £315,000 • 3 bed • 3 bath • 1601 ft²
2 bedroom house boat for sale in Swan Island, Strawberry Vale, London, TW1 — £249,950 • 2 bed • 1 bath • 581 ft²
2 bedroom house boat for sale in Ham Wharf, Brentford, TW8 — £275,000 • 2 bed • 1 bath • 657 ft²






































































































































