SK9 7SH - 4 bed spacious family semi in Knutsford Road, SK9 7SH

View on Property Piper

4 bedroom semi-detached house for sale in Knutsford Road, Alderley Edge, SK9

Summary - 55 KNUTSFORD ROAD CHORLEY ALDERLEY EDGE SK9 7SH

4 bed 2 bath Semi-Detached

Generous extended family home on a large gated plot between Alderley Edge and Wilmslow.
Four double bedrooms including master with en-suite and balcony
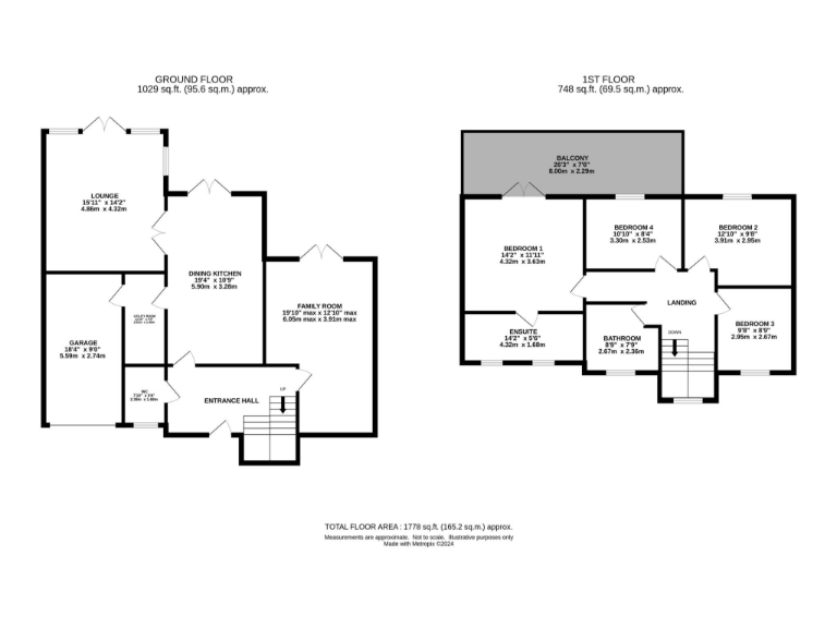
A generous four-bedroom semi-detached family home set on a large gated plot between Alderley Edge and Wilmslow. The house has been thoughtfully extended to create flexible living space: a central dining kitchen with island, separate utility, expansive lounge with garden doors, plus a versatile family room ideal for a playroom or home office.

The first-floor master suite features fitted wardrobes, a large en-suite bathroom with bath and walk-in shower, and a private balcony overlooking the rear garden and open aspect. Three further well-proportioned bedrooms and a stylish family bathroom complete the sleeping accommodation. Outside, a gated driveway leads to a garage and there is a neatly lawned rear garden with an entertaining deck and mature hedging for privacy.

Practical strengths include mains gas central heating, double glazing (install date unknown), fast broadband, very low local crime and no flooding risk. The property’s 1950s–1960s construction means some elements may benefit from updating to modern standards; council tax is described as expensive. Overall this home will suit families wanting space, privacy and good access to local schools and amenities, with clear potential to modernise and add value.

Property Details

Brochure Descriptions

Image Descriptions

Floorplan Description

Rooms

Textual Property Features

Target Audience

AI Tags

Detected Visual Features

EPC Details

Nearby Schools

Nearest Bars And Restaurants

,,,,}

Nearest General Shops

,,}

Nearest Grocery shops

,,}

Nearest Supermarkets

,,}

Nearest Religious buildings

,,}

Nearest Medical buildings

,,,}

Nearest Airports

}

Nearest Leisure Facilities

,,,,}

Nearest Tourist attractions

,,}

Nearest Train stations

,,,,}

Nearest Bus stations and stops

,,,,}

Nearest Hotels

,,}

Tags

Local Market Stats

AirBnB Data

Similar Properties

Meta

High Res Images

Compatible Images

Low res Images

Thumbnails

Raw Images

High Res Floorplan Images

Compatible Floorplan Images

Low res Floorplan Images

FloorplanImages Thumbnail

Raw Floorplan Images