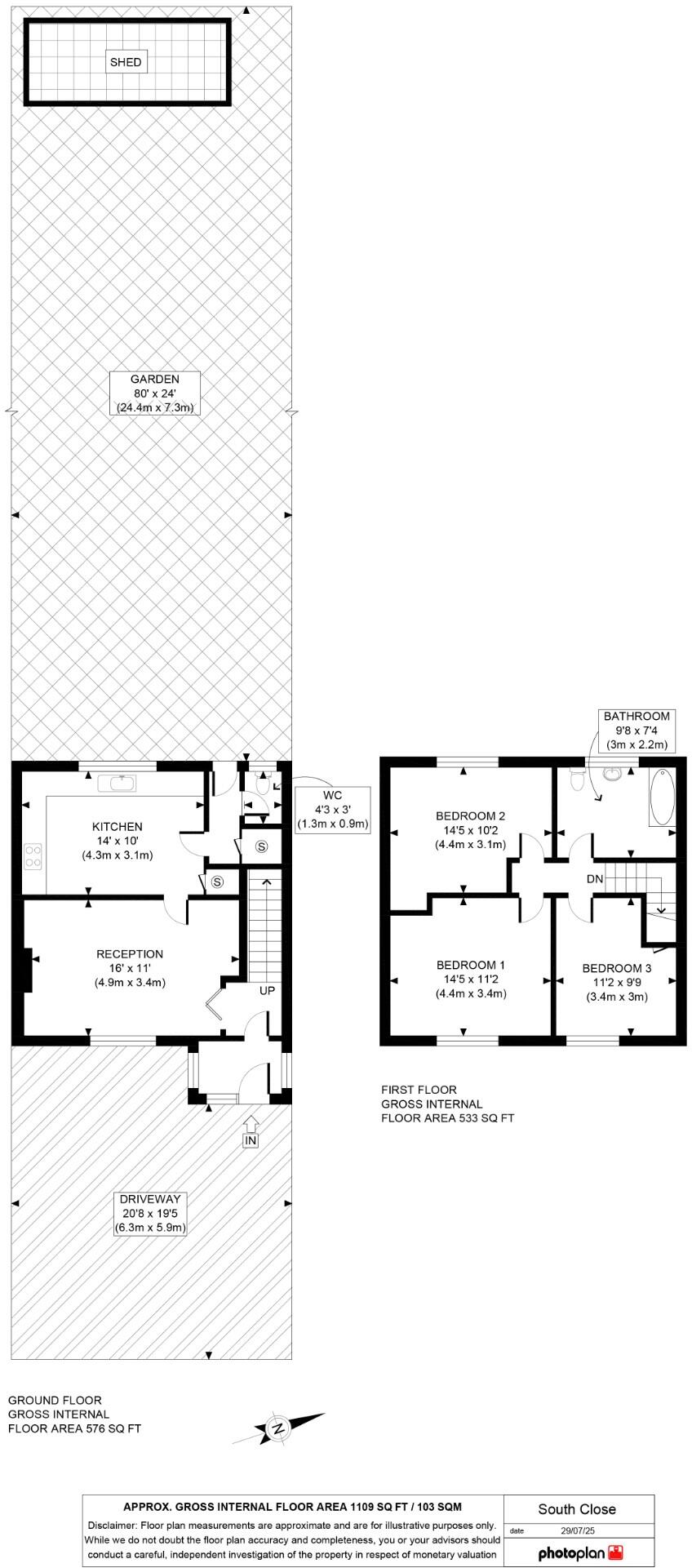
Approx 80' x 24' private rear garden
Large driveway for multiple vehicles (approx 20'8" x 19'5")
Potential to extend (subject to planning permission)
Requires full modernisation and updating throughout
Solid brick walls likely uninsulated; energy improvements needed
Close to Dagenham Dock and Heathway stations for commuting
EPC rating D; council tax band C (affordable)
Area records higher crime and local deprivation levels
This bright three-bedroom terraced house sits on a generous plot with a rare approx 80' x 24' private rear garden and a wide driveway for off-street parking. The property was originally constructed as a four-bedroom and offers scope to reconfigure internally or extend, subject to planning permission — a practical option for growing families or investors seeking added value.
Internally the layout is traditional with a 16' x 11' reception room, separate 14' x 10' kitchen/diner, ground-floor W/C and a first-floor bathroom. The home requires modernisation throughout: fixtures are dated, the pebbledash façade and interior need updating, and the solid-brick walls likely lack insulation. EPC rating D indicates energy improvement opportunities.
Location is a key strength — within easy reach of Dagenham Dock (DLR) and Dagenham Heathway (District Line) stations for city commutes, and close to several Good-rated primary and secondary schools. Broadband and mobile signal are strong, and council tax is affordable (Band C).
Buyers should note material negatives: the area records higher crime and local deprivation levels; the house needs renovation and may require energy-efficiency works (no cavity insulation assumed). While the plot and transport links present clear upside, budget for refurbishment and necessary permissions when considering purchase.



























































