Chain-free town-centre home with great transport links and investment potential.
- Freehold mid-terrace within level walking distance of town, station and seafront
- Three bedrooms plus separate dining room/ground-floor bedroom option
- Gas combi boiler, double glazing and mains services connected
- Small, low-maintenance courtyard garden with rear pedestrian access
- Ample residents’ parking to the front; off-street parking nearby
- Dated kitchen and general cosmetic updating likely required
- High flood risk for the area; buyers should seek specialist advice
- Cavity walls assumed uninsulated; energy improvements may be needed
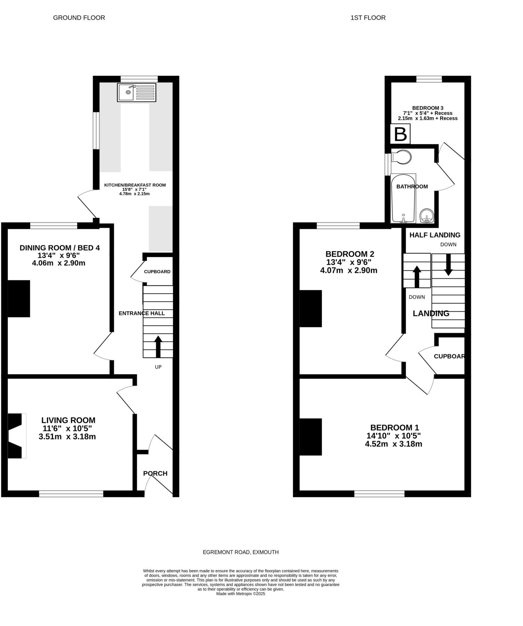
Set just a short, level walk from Exmouth town centre, the train station and the seafront, this compact three-bedroom mid-terrace offers effortless town living with immediate possession (no onward chain). The house is freehold, double glazed and warmed by a gas combi boiler, with a practical paved courtyard and residents’ parking directly to the front.
Internally the layout is straightforward: a living room, a separate dining room that could serve as a ground-floor fourth bedroom, a good-sized kitchen and three first-floor bedrooms with a single bathroom. The property’s footprint and room sizes suit first-time buyers or investors seeking a lettable town-centre home with easy access to local amenities.
There are clear renovation opportunities: the kitchen and some internal fittings are dated and would benefit from updating, and the building appears to have cavity walls with no installed insulation (assumed). Buyers should note a high flood risk for the area and the small rear courtyard garden, which limits outside space and larger landscaping possibilities.
Overall this terrace delivers location and solidity: low running Council Tax (Band B), mains services, and an enclosed, low-maintenance garden. It’s a practical, chain-free purchase for someone prepared to modernise and mitigate flood risk, or an investor wanting a centrally located rental property.
2 bedroom terraced house for sale in Bicton Street, Exmouth, EX8 — £279,950 • 2 bed • 1 bath • 657 ft²
2 bedroom terraced house for sale in Charles Street, Exmouth, Devon, EX8 — £220,000 • 2 bed • 1 bath • 555 ft²
2 bedroom terraced house for sale in Meadow Street, Exmouth, ~EX8 1LH, EX8 — £184,950 • 2 bed • 1 bath • 598 ft²
3 bedroom terraced house for sale in Withycombe Road, Exmouth, EX8 1TF, EX8 — £315,000 • 3 bed • 1 bath • 1039 ft²
1 bedroom terraced house for sale in Church Road, Exmouth, EX8 1SH, EX8 — £182,950 • 1 bed • 1 bath • 388 ft²
2 bedroom terraced house for sale in Egremont Road, Exmouth, EX8 1RX, EX8 — £265,000 • 2 bed • 1 bath • 1016 ft²


























































































