Compact project in central Skipton with good rental and refurbishment upside.
Chain-free Victorian terrace in Poets Corner
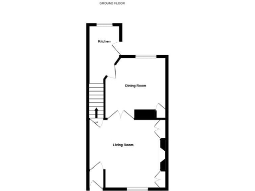
A stone-built Victorian terrace in Skipton’s popular 'Poets Corner', this three-bedroom house offers clear investment potential and flexible family accommodation. The layout includes a large sitting room, separate dining room, kitchen extension, three first-floor bedrooms, a house bathroom and an attic room with reduced head height. A small enclosed rear yard and useful outbuilding provide low-maintenance outdoor space.
The property is chain-free and offered for sale in need of cosmetic modernisation throughout, making it suitable for a buyer seeking a refurbishment project or a landlord looking to add value. Mechanical and decorative updating will be required; purchasers should plan for a full inspection of services and finishes. On-street parking is available to the front; there is no off-street parking.
Positioned within easy walking distance of Skipton town centre, local schools and public transport links, the house benefits from excellent broadband and strong mobile signal. The plot and overall internal size are small, which suits buyers looking for manageable maintenance and rental demand in a well-regarded market town location. Note the area records above-average crime levels — consider this when planning security or tenancy arrangements.
3 bedroom terraced house for sale in 17 Milton Street, Skipton, North Yorkshire, BD23 2ED, BD23 — £149,000 • 3 bed • 1 bath • 704 ft²
3 bedroom terraced house for sale in 57 Russell Street, Skipton, BD23 2DX, BD23 — £159,950 • 3 bed • 1 bath
2 bedroom terraced house for sale in 20 Sawley Street, Skipton, BD23 1SX, BD23 — £139,950 • 2 bed • 1 bath • 466 ft²
3 bedroom terraced house for sale in 7 Marton Street, Skipton, BD23 1TA, BD23 — £169,950 • 3 bed • 1 bath • 598 ft²
2 bedroom terraced house for sale in 10 Nelson Street, Skipton, BD23 2DT, BD23 — £189,950 • 2 bed • 1 bath • 497 ft²
2 bedroom terraced house for sale in 5 Belgrave Street, Skipton, BD23 1QB, BD23 — £267,500 • 2 bed • 1 bath • 829 ft²


















































