Spacious family layout with garage and terraced garden.
Far-reaching coastal and town views from elevated position
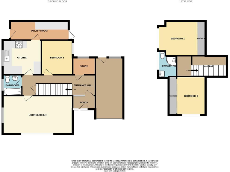
Set on an elevated cul‑de‑sac in Ilfracombe, this three-bedroom detached chalet bungalow delivers far-reaching coastal and town views and practical family living across split levels. The double-aspect lounge/diner is bright and spacious, while the kitchen, utility room and separate study give useful everyday flexibility for family life and home working. A terraced garden and garage with off-road parking for multiple vehicles complete the outdoor offering.
The layout suits long-term family occupancy with two first-floor bedrooms offering elevated aspects and built-in wardrobes, plus a ground-floor double bedroom and shower/bathroom arrangement. The property has mains gas central heating, double glazing (fitted post‑2002) and an average overall footprint of about 852 sq ft on a decent plot — comfortable but not oversized.
Buyers should note straightforward but important issues: the Energy Performance Certificate is rated E and the cavity walls are recorded as having no insulation (assumed), so energy efficiency improvements are likely needed. The surrounding area is in a very deprived ward with above-average crime statistics, which may concern some purchasers.
This freehold chalet bungalow offers an attractive mix of immediate liveability and improvement potential in a coastal town with good broadband and mobile coverage, nearby schools rated Good, and easy access to Ilfracombe’s harbour and coastal walks. Ideal for families who value views and convenience but are prepared to invest in energy upgrades and cosmetic updating.
3 bedroom detached house for sale in Marlborough Close, Ilfracombe, North Devon, EX34 — £297,500 • 3 bed • 1 bath • 910 ft²
4 bedroom detached house for sale in Furze Hill Road, Ilfracombe, EX34 — £350,000 • 4 bed • 1 bath • 1670 ft²
3 bedroom bungalow for sale in Fern Way, Ilfracombe, Devon, EX34 — £370,000 • 3 bed • 1 bath • 1155 ft²
3 bedroom bungalow for sale in Fairfield, Ilfracombe, Devon, EX34 — £420,000 • 3 bed • 1 bath • 1055 ft²
3 bedroom bungalow for sale in Bicclescombe Park Road, Ilfracombe, Devon, EX34 — £350,000 • 3 bed • 2 bath • 977 ft²
3 bedroom detached bungalow for sale in Fairfield, Ilfracombe, Devon, EX34 — £281,500 • 3 bed • 1 bath


























































































