**Standout Features:**
- Immaculate four-bedroom semi-detached home
- Master bedroom with en-suite shower
- Spacious kitchen/diner and lounge
- Separate study/playroom
- Professional intruder alarm and CCTV
- Nest heating system
- Built in 2016
- Off-street parking
- Decent garden space with patio and astroturf
**Concerns:**
- Crime rate above average
- Average area deprivation
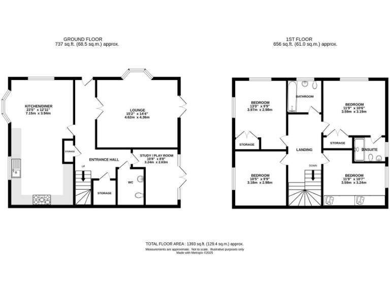
Nestled in a serene corner off Ongar Road, this exceptional four-bedroom semi-detached home exudes quality and modern comfort. Built in 2016, it's designed with family living in mind, featuring a spacious kitchen/diner that flows effortlessly into a generous lounge—perfect for entertaining or cozy family evenings. The home includes a dedicated study/playroom, ideal for remote work or children's play, and offers an en-suite master bedroom for added luxury.
The property is equipped with state-of-the-art security features, including a professional intruder alarm and CCTV, providing peace of mind for families. Enjoy the contemporary amenities with fast broadband and excellent mobile signal, making it an ideal choice for professionals working from home. The landscaped garden offers both a large patio area and a low-maintenance astroturf lawn, ideal for outdoor gatherings or quiet mornings in the sun.
While the average crime rate may raise concerns, the home's quality, location near reputable schools, and proximity to local amenities position it as a worthy investment for families seeking comfort and security. With a competitive price of £675,000, this property won’t last long, so seize the opportunity to make it your forever home!
4 bedroom detached house for sale in Roding Drive, Kelvedon Hatch, Brentwood, CM15 — £570,000 • 4 bed • 1 bath • 1386 ft²
4 bedroom semi-detached house for sale in Glovers Field, Kelvedon Hatch, CM15 — £650,000 • 4 bed • 2 bath • 1678 ft²
5 bedroom house for sale in Viking Way, Pilgrims Hatch, Brentwood, CM15 — £600,000 • 5 bed • 1 bath • 581 ft²
4 bedroom semi-detached house for sale in Blackmore Road, Kelvedon Hatch, Brentwood, CM15 — £600,000 • 4 bed • 3 bath • 1718 ft²
4 bedroom semi-detached house for sale in Glovers Field, Kelvedon Hatch, Brentwood, CM15 — £650,000 • 4 bed • 3 bath • 1678 ft²
4 bedroom detached house for sale in Stocks Lane, Kelvedon Hatch, Brentwood, Essex, CM15 — £850,000 • 4 bed • 2 bath • 1687 ft²


























































































