Modern two-bedroom city apartment with rooftop amenities and strong rental potential..
Seventh-floor corner apartment with panoramic city views
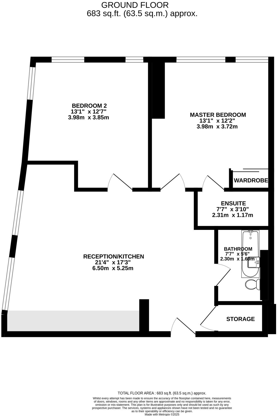
Set on the seventh floor of Hadrian’s Tower, this modern two-bedroom apartment offers bright, open-plan living with striking corner windows and panoramic city views. Built in 2020, the property benefits from contemporary finishes, integrated kitchen appliances, and two bathrooms — including an en-suite to the master — making it both comfortable to occupy and straightforward to let.
Residents have access to a wide range of on-site amenities including concierge, secure bike storage, communal study space, a residents’ lounge and a rooftop restaurant with sweeping city vistas. The location is highly central, within walking distance of Newcastle Central Station, Science Central and Chinatown, with excellent mobile and broadband connectivity.
Important considerations: the apartment is leasehold (approximately 245 years remaining) with an annual service charge of around £2,800 and ground rent of £295. It is currently tenanted until June 2025, so immediate vacant possession is not guaranteed. Heating is electric via room heaters which may affect running costs compared with gas-heated properties.
The wider neighbourhood is a multicultural, student-focused area with strong rental demand but also higher crime levels and relative area deprivation. This flat will suit investors seeking a central, modern asset with good rental appeal, or owner-occupiers comfortable with city-centre living and the service costs associated with a high-rise development.
2 bedroom apartment for sale in Rutherford Street, Newcastle Upon Tyne, NE4 — £400,000 • 2 bed • 2 bath • 1030 ft²
2 bedroom apartment for sale in Hadrians Tower, Rutherford Street, Newcastle upon Tyne, NE4 5BT, NE4 — £240,000 • 2 bed • 1 bath • 602 ft²
2 bedroom apartment for sale in Hadrian's Tower, 27 Rutherford Street, Newcastle upon Tyne, NE4 , NE4 — £211,087 • 2 bed • 2 bath • 746 ft²
2 bedroom apartment for sale in Rutherford Street, City Centre, Newcastle Upon Tyne, NE4 — £260,000 • 2 bed • 1 bath • 646 ft²
1 bedroom flat for sale in Hadrians Tower, Newcastle upon Tyne, Tyne and Wear, NE4 — £189,000 • 1 bed • 1 bath
1 bedroom apartment for sale in Hadrian's Tower City Centre, Newcastle upon tyne, NE4 — £149,900 • 1 bed • 1 bath






















































































