Flexible family house with conservatory, workshop and parking for two..
Four bedrooms plus study, convertible to fifth bedroom
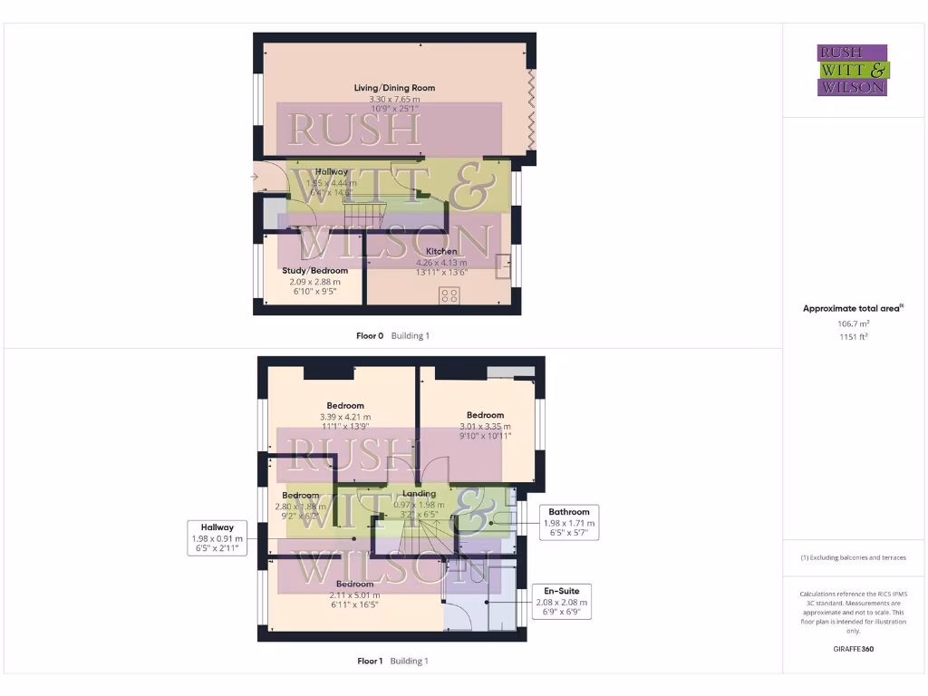
This end-of-terrace family home on West Hill Road offers flexible living across four bedrooms plus a study that could become a fifth bedroom. The ground floor opens into a long open-plan living/dining space leading to a large conservatory and a stylish kitchen, creating a generous family hub. An insulated, fully wired workshop and separate summerhouse sit in the decent rear garden, and off-street parking for two vehicles adds practical everyday convenience.
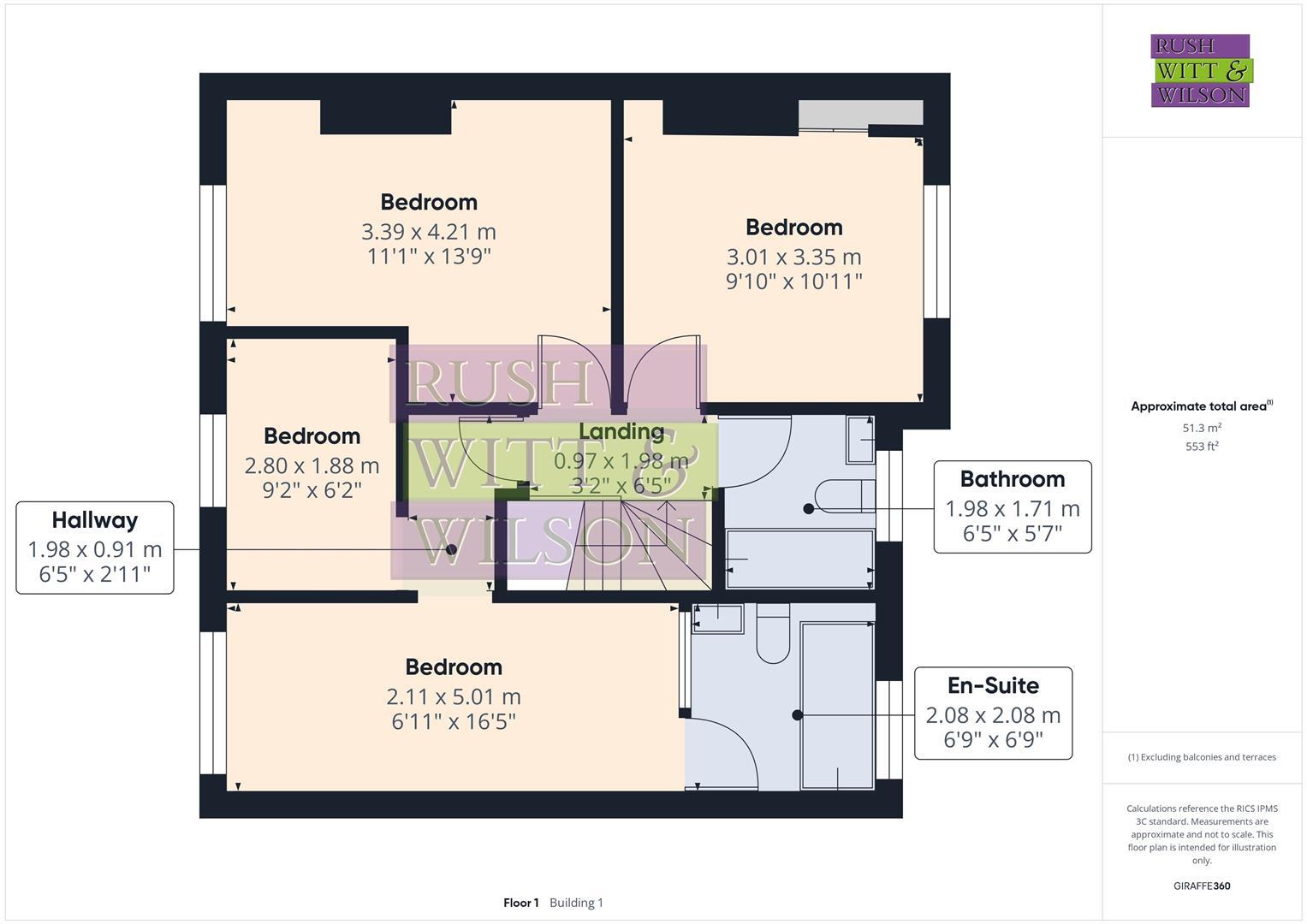
The principal bedroom benefits from a contemporary en-suite; a modern family bathroom serves the other bedrooms. The property measures approximately 1,168 sq ft, has double glazing (fitted before 2002), cavity walls with partial insulation, and is served by electric storage heaters. EPC and council tax are band C.
Important drawbacks: the home sits in an area with high crime and very high deprivation, and local broadband speeds are reported as slow. The heating is electric storage rather than gas central heating, which may affect running costs. Buyers should check title documents for any restrictive covenants and verify services and measurements before committing.
5 bedroom detached house for sale in St. Saviours Road, St. Leonards, TN38 0AR, TN38 — £600,000 • 5 bed • 3 bath • 1727 ft²
4 bedroom terraced house for sale in Seaside Road, St. Leonards-On-Sea, TN38 — £325,000 • 4 bed • 2 bath • 916 ft²
4 bedroom semi-detached house for sale in Wishing Tree Road, St. Leonards-On-Sea, TN38 — £325,000 • 4 bed • 2 bath • 1051 ft²
3 bedroom end of terrace house for sale in Ormerod Avenue, St. Leonards-On-Sea, TN38 — £260,000 • 3 bed • 1 bath • 773 ft²
4 bedroom terraced house for sale in Howlett Close, St. Leonards-On-Sea, TN38 — £275,000 • 4 bed • 1 bath • 969 ft²
2 bedroom end of terrace house for sale in William Road, St. Leonards-On-Sea, TN38 — £265,000 • 2 bed • 1 bath • 769 ft²


















































































































































