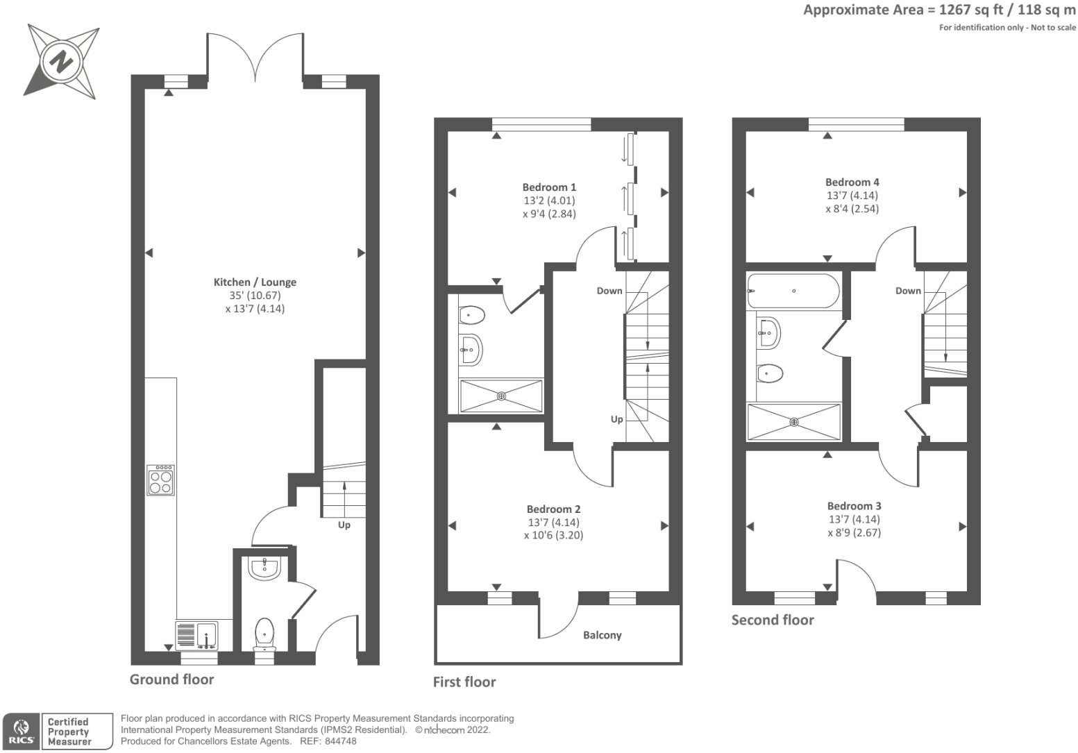
Spacious four-bedroom home with garden, parking and contemporary kitchen near Green Park amenities.
- Four bedrooms including ensuite to master
- Generous ground-floor footprint and living/dining flow
- Modern kitchen with appliances and breakfast bar
- Private garden and off-street parking
- Built 2023; underfloor heating and good broadband/mobile
- Medium flood risk; area shows higher crime rates
- Nearby primary rated Good; one secondary rated Inadequate
- Freehold and approximately 1,248 sq ft
Built in 2023, this modern four-bedroom end-terrace in Green Park Village offers a generous ground-floor footprint and contemporary fixtures throughout. The kitchen includes integrated appliances and a breakfast bar; living room benefits from skylights, French doors and patio access to a private garden. The master bedroom has an ensuite and there is a ground-floor WC, making the layout practical for family life.
Practical extras include off-street parking, mains gas underfloor heating and good broadband/mobile connectivity. At about 1,248 sq ft the house sits well for families wanting ready-to-move-in accommodation close to local parks, sports facilities and a primary school rated Good.
Buyers should note local challenges: the immediate area records higher crime levels and broader area deprivation indicators. There is a medium flooding risk and one nearby secondary school has an Ofsted rating of Inadequate, though alternative secondary options rated Good are available locally.
Offered as a freehold, the property suits families seeking modern, low-maintenance living with quick access to amenities and transport. For investors, the new construction, practical layout and easy-to-let location could appeal, but local social and risk factors should be considered.
4 bedroom town house for sale in Green Park Village, Berkshire, RG2 — £575,000 • 4 bed • 2 bath • 1074 ft²
4 bedroom semi-detached house for sale in New Hampshire Street, Reading, Berkshire, RG2 — £475,000 • 4 bed • 2 bath • 975 ft²
4 bedroom town house for sale in Maine Street, Reading, RG2 — £465,000 • 4 bed • 3 bath • 1104 ft²
4 bedroom semi-detached house for sale in Longwater Avenue, Reading, Berkshire, RG2 — £540,000 • 4 bed • 2 bath • 1278 ft²
4 bedroom semi-detached house for sale in Maine Street, Reading, RG2 — £550,000 • 4 bed • 2 bath • 1230 ft²
4 bedroom terraced house for sale in New Hampshire Street, Reading, RG2 — £500,000 • 4 bed • 3 bath • 1115 ft²










































