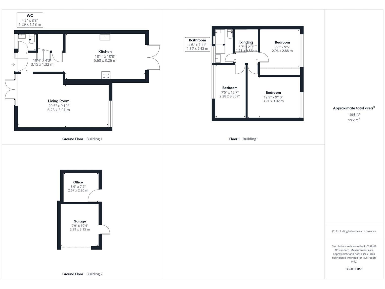
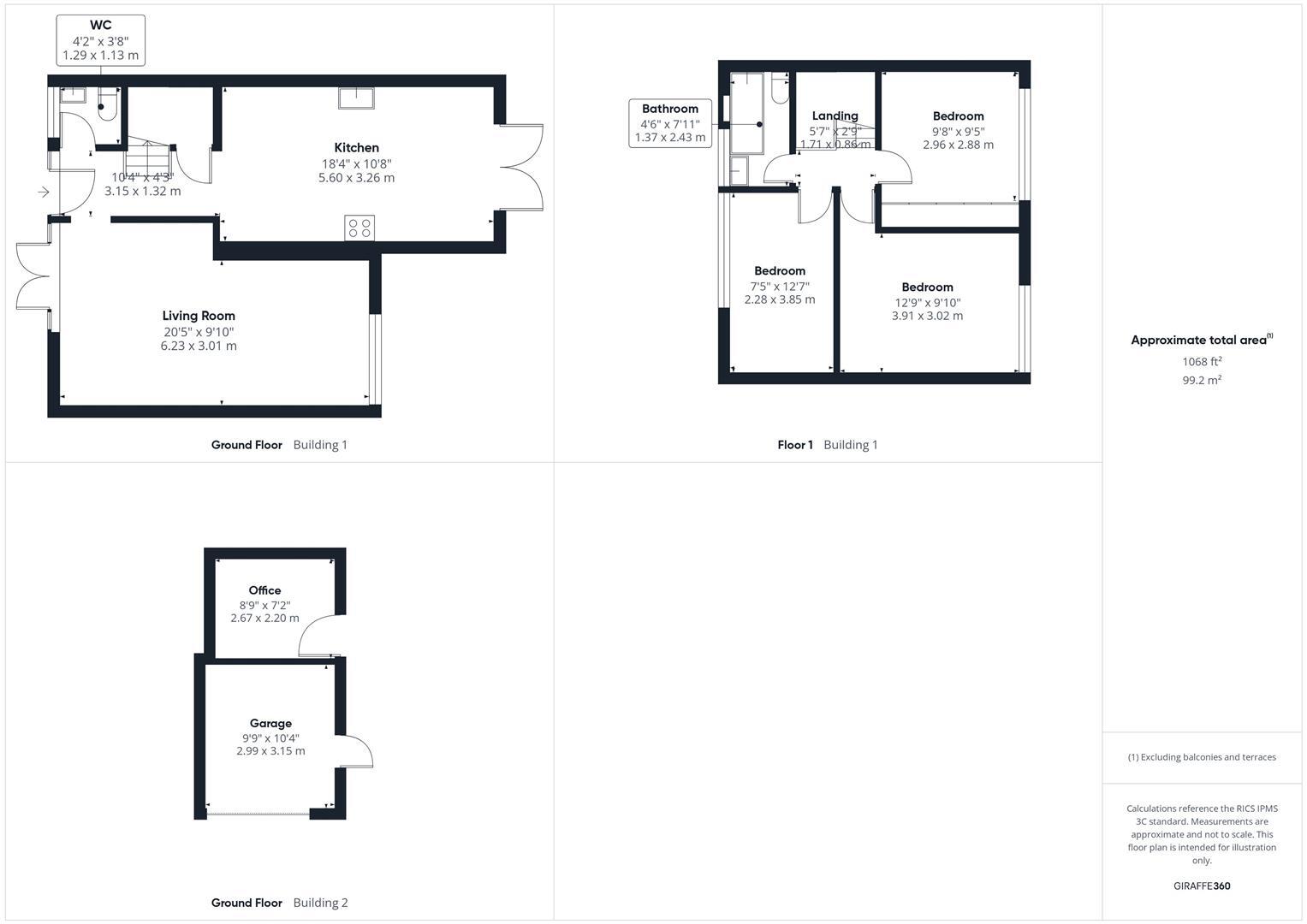
Contemporary end-terrace with office space close to town and top schools.
Three good-sized bedrooms with built-in wardrobes in two rooms
This well-presented three-bedroom end-terrace sits in a quiet cul-de-sac within easy walking distance of Aylesbury town centre, mainline station and several highly regarded schools. The house offers a long contemporary kitchen with integrated appliances, a bright dual-aspect living room and a modern ground-floor cloakroom — practical for family life and commuters.
Upstairs provides three good-sized bedrooms and a contemporary family bathroom. Two bedrooms include built-in wardrobes. A partly converted garage currently provides a useful home office, giving flexible space for remote working or storage, while off-street parking adds everyday convenience.
Externally the property benefits from both front and rear gardens: a well-kept front garden with patio and lawn, and a low-maintenance fully paved rear garden. The plot is modest in size, suited to families wanting easy upkeep rather than extensive grounds.
Practical details: the house is freehold, built c.1976–82 with cavity walls and double glazing installed before 2002. Buyers should note the garage is only partly converted (limits vehicle storage) and there is a single family bathroom. Overall this property will suit young families or commuter buyers seeking modern finishes and good local schools within a short walk.
3 bedroom house for sale in Court Close, Aylesbury, Buckinghamshire, HP21 — £307,500 • 3 bed • 1 bath • 894 ft²
3 bedroom end of terrace house for sale in Todd Close, Aylesbury, HP21 — £350,000 • 3 bed • 1 bath • 593 ft²
3 bedroom terraced house for sale in Friarscroft Way, Aylesbury, HP20 — £369,950 • 3 bed • 1 bath • 963 ft²
3 bedroom end of terrace house for sale in Bicester Road, Aylesbury, Buckinghamshire, HP19 — £375,000 • 3 bed • 1 bath • 1350 ft²
3 bedroom end of terrace house for sale in Quarrendon Avenue, Aylesbury, HP19 — £375,000 • 3 bed • 1 bath • 902 ft²
3 bedroom semi-detached house for sale in Hulcombe Walk, Elmhurst, Aylesbury, HP20 — £340,000 • 3 bed • 1 bath • 1047 ft²


















































