WN2 4BN - 6 bedroom semidetached house for sale in Castle Hill Road,…

View on Property Piper

6 bedroom semi-detached house for sale in Castle Hill Road, WN2

Summary - 105 CASTLE HILL ROAD HINDLEY WIGAN WN2 4BN

6 bed 6 bath Semi-Detached

Fully licensed, high-yield 6-bed HMO with immediate rental income and recent renovation..
- Six bedrooms, each with a private en-suite
- Fully HMO licensed since 2022 with building control sign-off
- Established gross rental income £40,000 per year
- Freehold tenure, no ground rent or leasehold fees
- Modern renovation finished to a high specification
- Kitchen located in the basement (limited natural light)
- Small overall size and small external garden/plot
- Local area classified as deprived; strong rental demand but market risk
A high-performing, fully licensed 6-bedroom HMO in Hindley, Wigan, presented as a freehold investment with established rental income. The property was professionally converted under permitted development rights, completed to a high standard a few years ago, and benefits from full building control sign-off and HMO licensing in place since 2022.

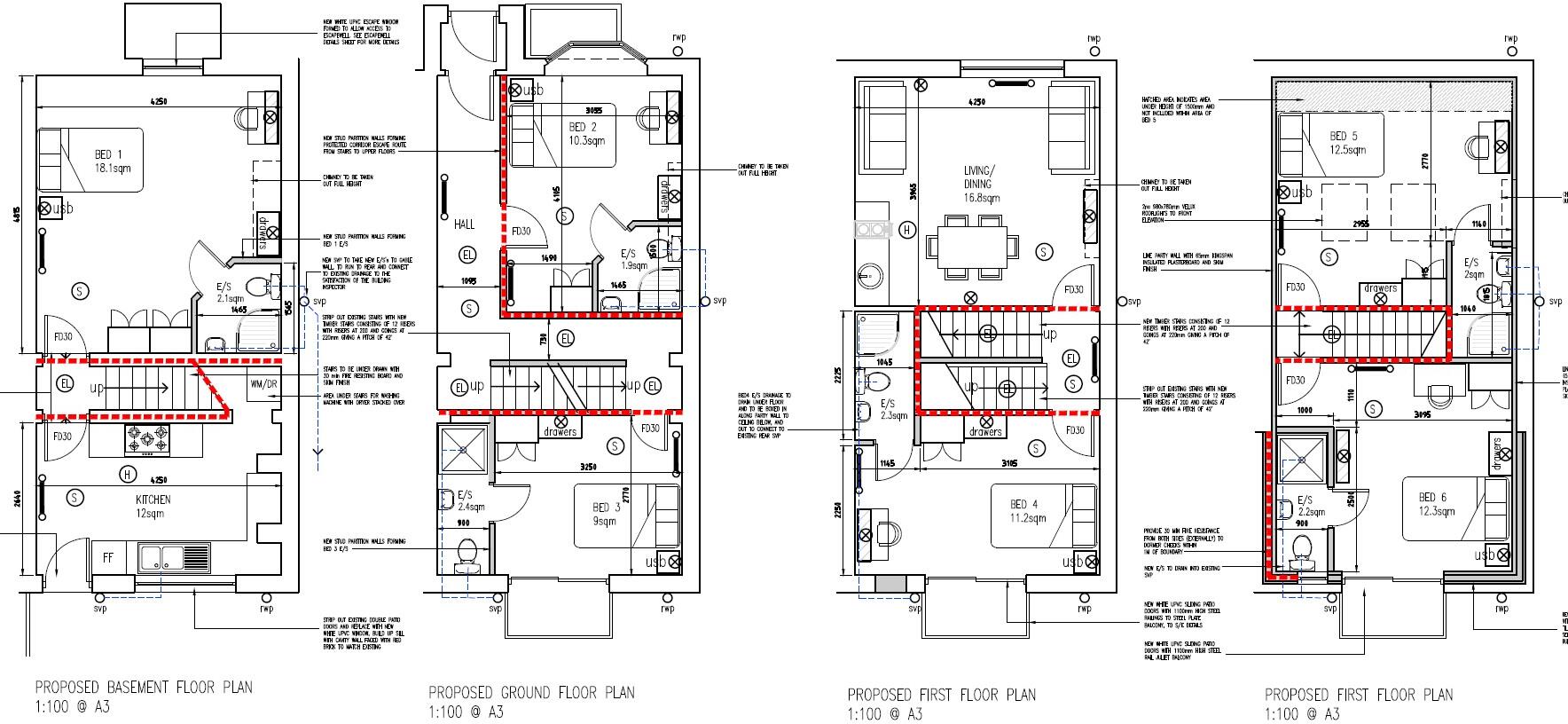
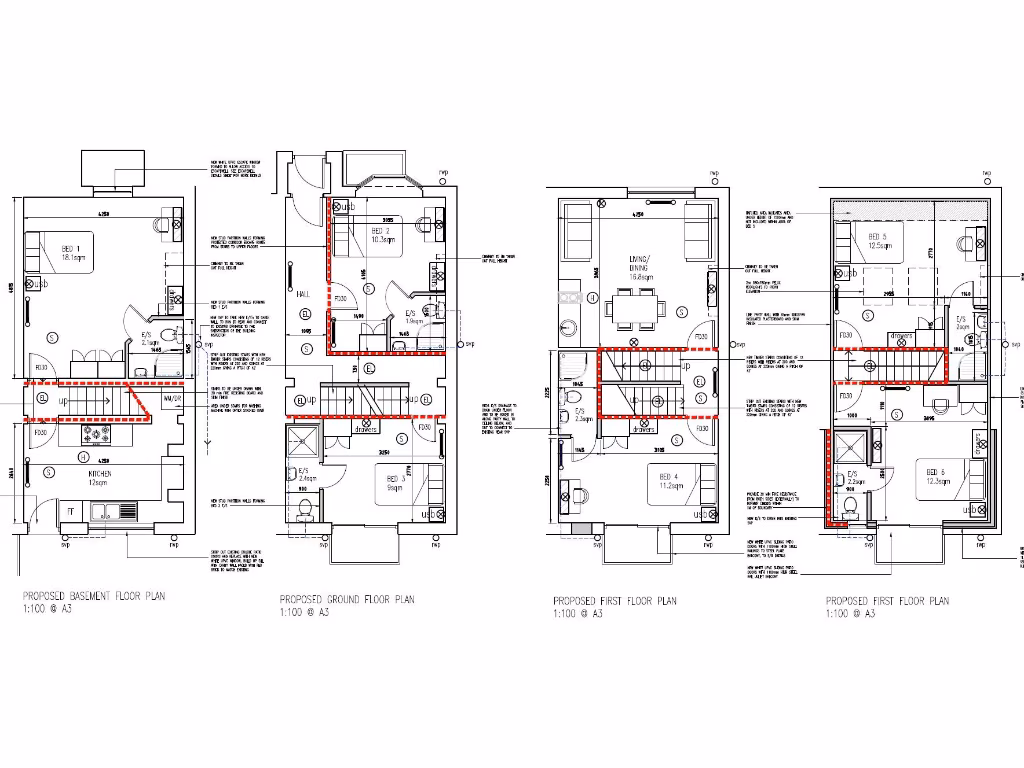
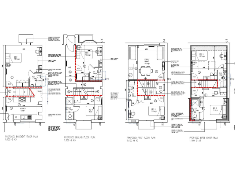
Arranged over four floors, each bedroom has a private en-suite, which drives tenant appeal and reduces voids. The current gross rental income is £40,000 per year (reported gross yield 11.4% on asking price), with well-documented monthly outgoings and a reported net income after costs. The modern kitchen and bright communal living room support multi-occupancy living and efficient management.

Notable practical points: the building sits on a small plot with a modest front garden and compact overall internal size (approx. 1,206 sq ft). The kitchen is in the basement, which can be less attractive for some tenants and may limit natural light for that space. The wider area is classified as deprived, which supports rental demand but can present longer-term market volatility.

This is best suited to investors seeking an income-producing asset with immediate cashflow and minimal refurbishment required. The property’s licensing, recent renovation, and clear financials reduce near-term landlord risk, while the small plot and local area profile are important considerations for buy-to-let strategies and exit planning.

Property Details

Image Descriptions

Floorplan Description

Rooms

Textual Property Features

Target Audience

AI Tags

Detected Visual Features

Nearby Schools

Nearest Bars And Restaurants

,,,,}

Nearest General Shops

,,}

Nearest Grocery shops

,,}

Nearest Supermarkets

,,}

Nearest Religious buildings

,,}

Nearest Medical buildings

,,,}

Nearest Airports

,}

Nearest Leisure Facilities

,,,,}

Nearest Tourist attractions

,,}

Nearest Train stations

,,,,}

Nearest Bus stations and stops

,,,,}

Nearest Hotels

,,}

Tags

Local Market Stats

AirBnB Data

Similar Properties

Meta

High Res Images

Compatible Images

Low res Images

Thumbnails

Raw Images

High Res Floorplan Images

Compatible Floorplan Images

Low res Floorplan Images

FloorplanImages Thumbnail

Raw Floorplan Images