DL2 2DA - 5 bedroom terraced house for sale in Hurworth Road, Hurwort…

View on Property Piper

5 bedroom terraced house for sale in Hurworth Road, Hurworth Place, Darlington, DL2

Summary - 16 HURWORTH ROAD HURWORTH PLACE DARLINGTON DL2 2DA

5 bed 2 bath Terraced

**Standout Features:**
- Spacious and flexible three-storey town house
- Lower ground floor currently configured as a self-contained annex
- Five bedrooms, two bathrooms, and a modernized kitchen
- Large south-facing garden with patio and off-street parking for three vehicles
- Charming Victorian features throughout and recent renovations
- Low crime rate and excellent mobile signal
- Freehold property; chain-free

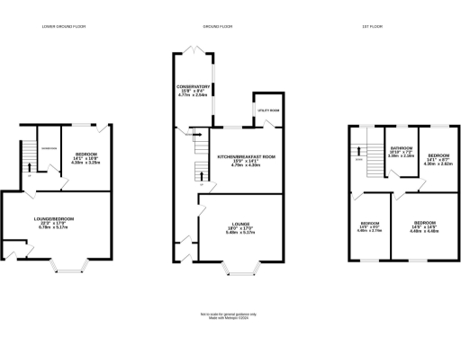
Nestled in a picturesque village, this beautifully presented Victorian town house offers generous, flexible family accommodation across three levels. The lower ground floor serves as a separate annex, complete with a lounge/bedroom and shower room, perfect for multi-generational living or guest accommodations. The first floor features three spacious bedrooms and a stylishly refitted bathroom featuring a large shower cubicle. Enjoy hosting in the airy large lounge with stunning period details or in the inviting kitchen/breakfast room with a rustic feel, complemented by a charming conservatory.

Step outside to a delightful south-facing garden that invites outdoor relaxation and entertainment. Ample parking for three vehicles and an electric charging point cater to modern needs. With a strong community feel and access to reputable schools rated good to outstanding, this home presents an excellent opportunity for families. Don’t miss your chance to own this versatile, character-filled property in an affluent area with low flood risk—book a viewing before it's gone!

Property Details

Image Descriptions

Floorplan Description

Rooms

Textual Property Features

Detected Visual Features

EPC Details

Nearby Schools

Nearest Bars And Restaurants

,,,,}

Nearest General Shops

,,}

Nearest Grocery shops

,,}

Nearest Supermarkets

,,}

Nearest Religious buildings

,,}

Nearest Medical buildings

,,,}

Nearest Leisure Facilities

,,,,}

Nearest Tourist attractions

,,}

Nearest Train stations

,,,,}

Nearest Bus stations and stops

,,,,}

Nearest Hotels

,,}

Tags

Local Market Stats

Similar Properties

Meta

High Res Images

Compatible Images

Low res Images

Thumbnails

Raw Images

High Res Floorplan Images

Compatible Floorplan Images

Low res Floorplan Images

FloorplanImages Thumbnail

Raw Floorplan Images