**Standout Features:**
- Spacious triple aspect living room with garden access
- Modern triple aspect kitchen/dining/family room, also with garden access
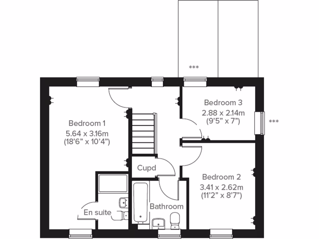
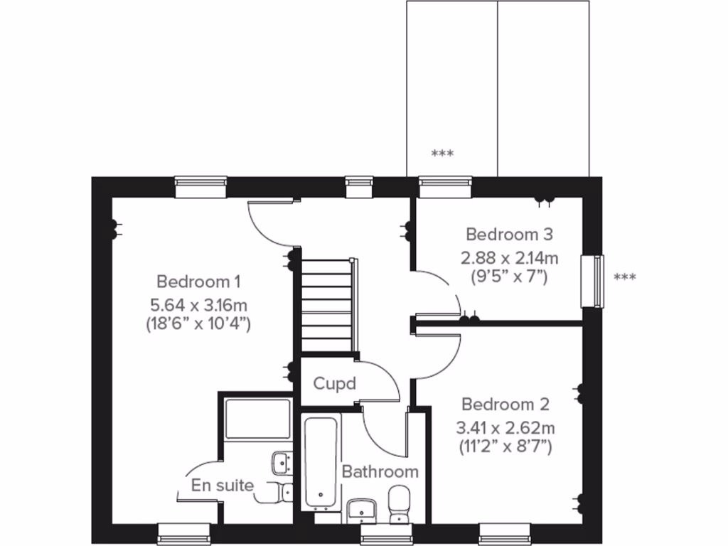
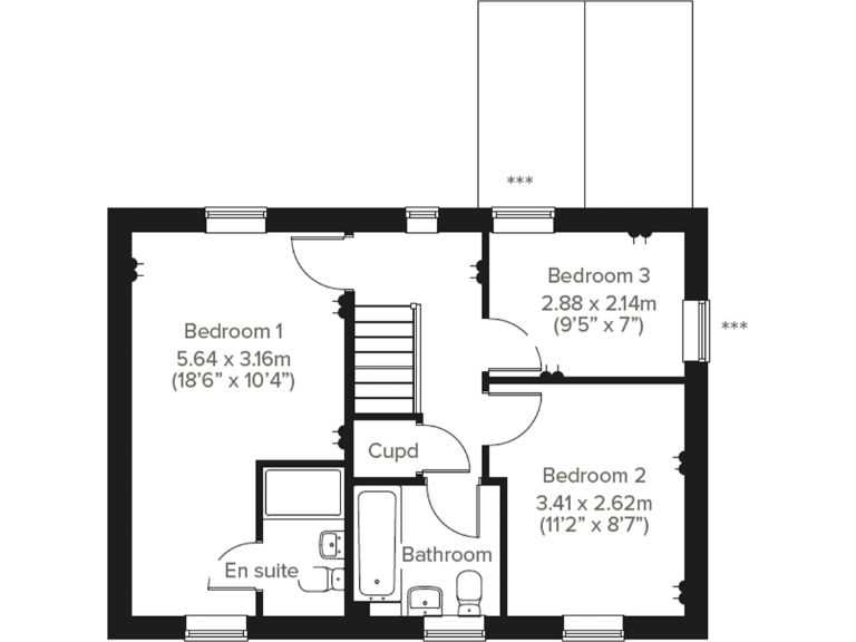
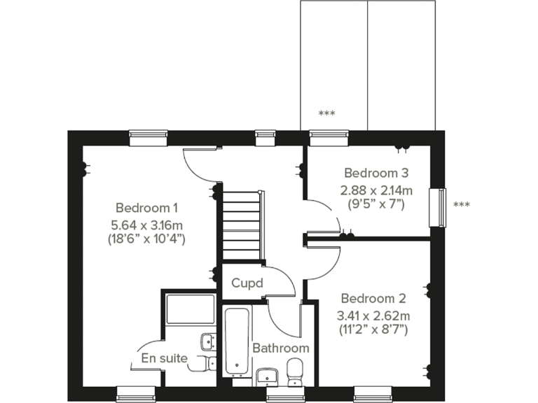
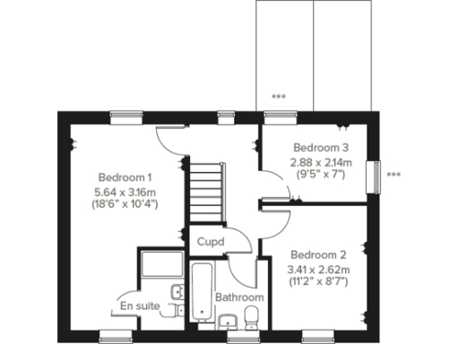
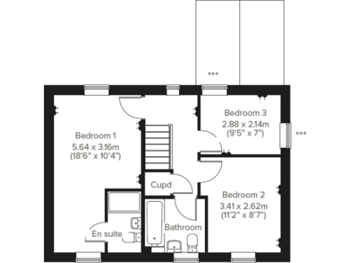
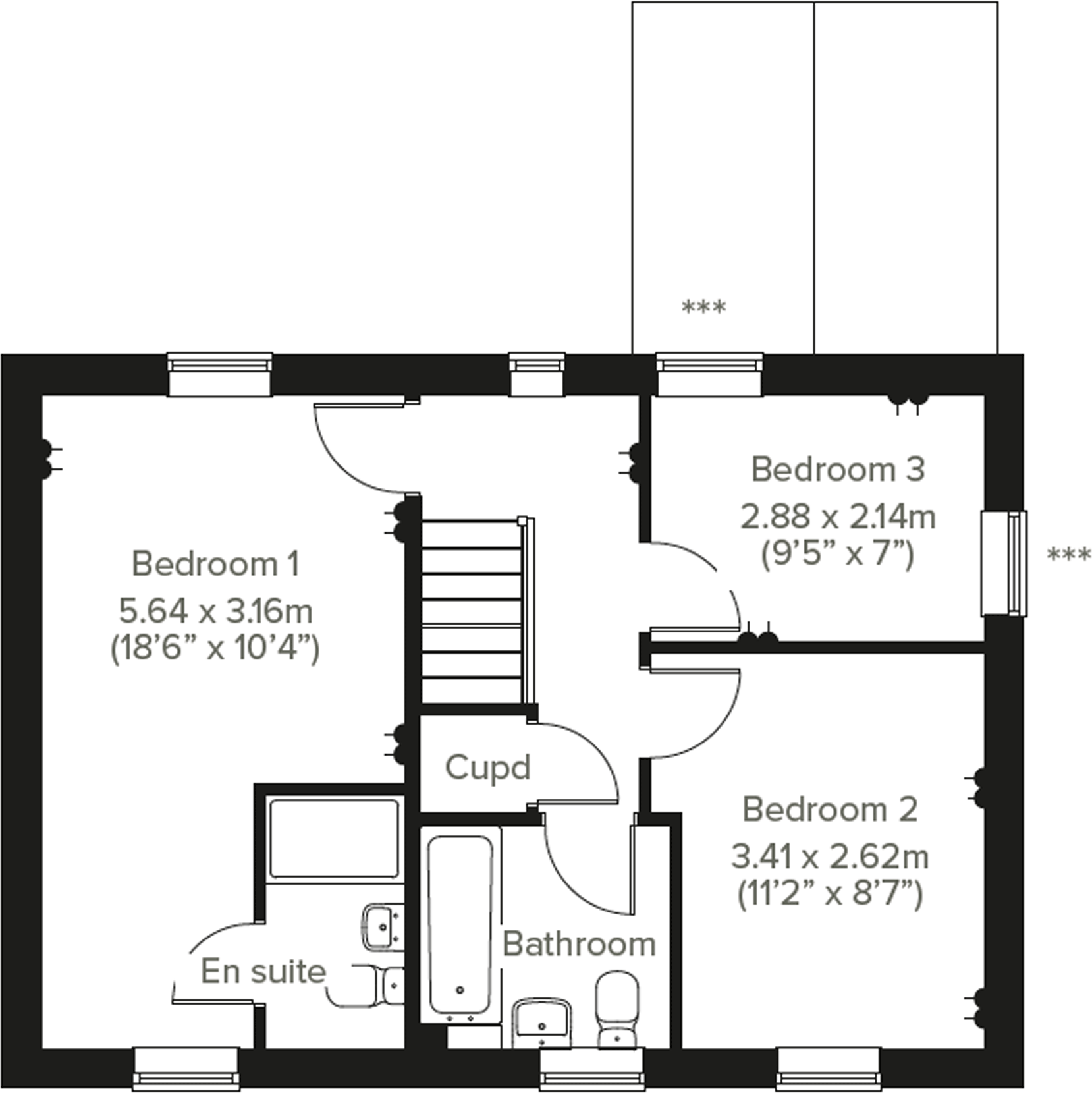
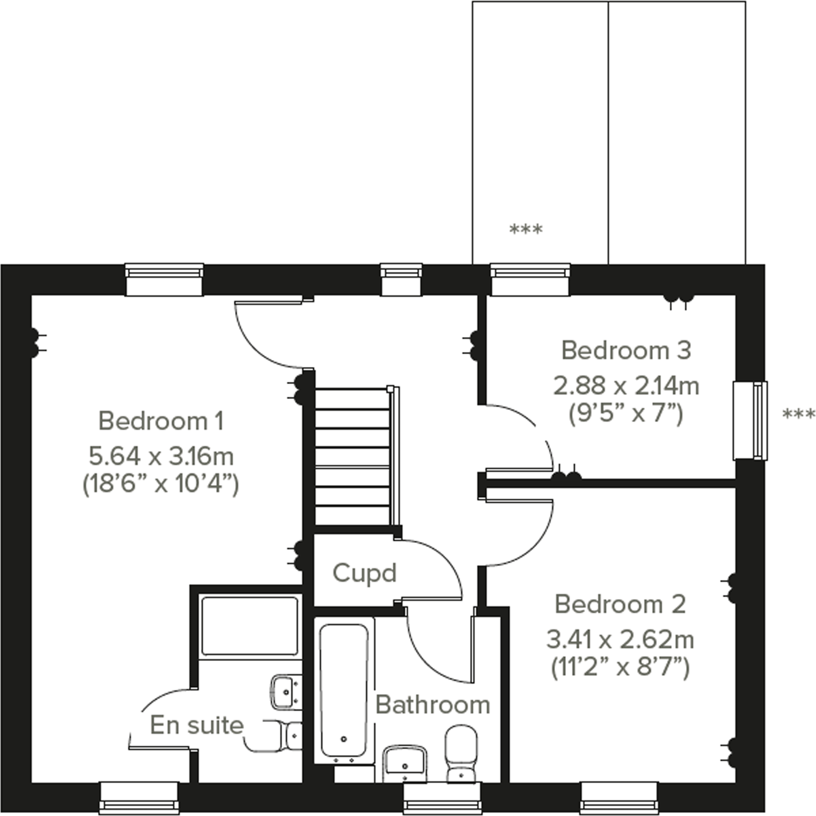
- Master bedroom with en suite bathroom
- Utility room with outdoor access
- Detached new build property with a single garage
- Chain-free sale for seamless transactions
- Family-friendly layout in a peaceful village setting
- Built-in storage on the landing for additional organization
**Summary:**
Discover comfort and modern living in this delightful three-bedroom, two-bathroom detached home located in the serene village of NN12 7LD. Perfectly suited for a young family, the expansive triple aspect living room and contemporary kitchen/dining/family room both offer delightful access to the garden, making it ideal for entertaining or relaxing outdoors. The first-floor master bedroom features its own en suite for added convenience, while the other two bedrooms share a stylish family bathroom fitted with modern fixtures.
Convenience is at the forefront with a separate utility room and downstairs WC, along with ample storage throughout the property. This home offers potential for personalization and future renovations, presenting a lovely canvas for your family's unique design preferences. Located within proximity to reputable primary and secondary schools, as well as a peaceful rural lifestyle, this property won’t stay on the market long. Enjoy the blend of comfort, style, and functionality in your new family home—don’t miss out on this fantastic opportunity!
3 bedroom detached house for sale in Epsom Avenue,
Towcester,
Northamptonshire,
NN12 7LD, NN12 — £454,950 • 3 bed • 1 bath • 1437 ft²
3 bedroom detached house for sale in Epsom Avenue,
Towcester,
Northamptonshire,
NN12 7LD, NN12 — £424,950 • 3 bed • 1 bath • 1436 ft²
3 bedroom detached house for sale in Epsom Avenue,
Towcester,
Northamptonshire,
NN12 7LD, NN12 — £424,950 • 3 bed • 1 bath • 364 ft²
4 bedroom detached house for sale in Epsom Avenue,
Towcester,
Northamptonshire,
NN12 7LD, NN12 — £494,950 • 4 bed • 1 bath • 455 ft²
4 bedroom detached house for sale in Epsom Avenue,
Towcester,
Northamptonshire,
NN12 7LD, NN12 — £499,950 • 4 bed • 1 bath • 1809 ft²
3 bedroom detached house for sale in Park Road, Hartwell, Northamptonshire, NN7 — £550,000 • 3 bed • 2 bath • 1563 ft²


































































































