Large private garden, double garage and strong commuter links to London.
Five generous bedrooms across two floors (over 2,300 sq ft)
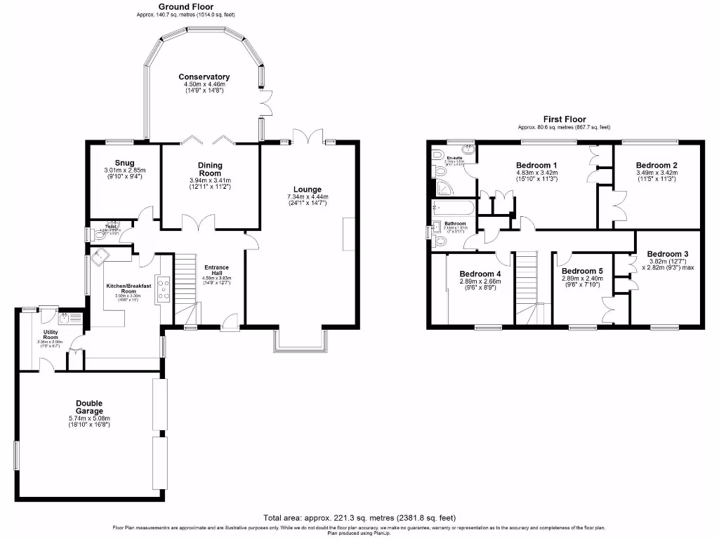
Set at the end of a rarely available private cul-de-sac, this substantial five-bedroom detached home offers more than 2,300 sq ft of family living across two floors. The house sits on a large, well-landscaped plot with a paved patio, lawn, mature borders and a conservatory that gives panoramic views of the garden — ideal for outdoor entertaining and family play.
The ground floor is arranged for everyday family life: an open-plan kitchen/breakfast room with quartz worktops and integrated appliances, a separate utility with garage access, a bright dual-aspect lounge and a snug/office suitable for working from home. Upstairs are five well-proportioned bedrooms, built-in storage, a family bathroom and an en-suite to the master — note there are two bathrooms in total for five bedrooms.
Practical details that matter: the property is freehold, built in the 1980s, has mains gas central heating and double glazing installed before 2002, and an EPC rating of C. A double garage and off-street parking for four vehicles add convenience for commuters and families who own multiple cars. Ware town centre and rail links to London are within easy reach, and highly regarded local schools serve the area.
Considerations: the house dates from the 1983–1990 period so some buyers may wish to update cosmetic or technical elements over time. Council tax is described as quite expensive. Overall, this home combines generous internal space and a mature rear garden in a private setting, suitable for growing families seeking room to spread out close to village amenities and commuter links.
4 bedroom detached house for sale in The Hawthorns, Ware, SG12 — £825,000 • 4 bed • 2 bath • 1797 ft²
4 bedroom semi-detached house for sale in Musley Hill, Ware, SG12 — £625,000 • 4 bed • 2 bath • 1374 ft²
5 bedroom detached bungalow for sale in Wengeo Lane, Ware, SG12 — £770,000 • 5 bed • 2 bath • 2259 ft²
5 bedroom semi-detached house for sale in Chestnut Avenue, Ware, SG12 — £750,000 • 5 bed • 3 bath • 2249 ft²
4 bedroom detached house for sale in Widbury Gardens - Ware - Chain Free, SG12 — £699,995 • 4 bed • 3 bath • 1371 ft²
4 bedroom link detached house for sale in Brocket Meadows, Ware, SG12 — £630,000 • 4 bed • 2 bath • 1398 ft²










































































































































