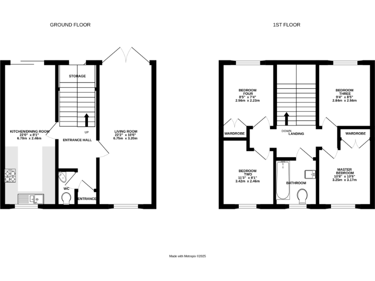
**Standout Features:**
- Spacious terraced home with four bedrooms.
- Good condition throughout; ideal for first-time buyers.
- Close proximity to town center and excellent commuting links (M4/M3).
- Low-maintenance rear garden and garage access.
**Summary:**
This well-maintained mid-terrace family home in Great Hollands offers an inviting blend of comfort and convenience, perfect for first-time buyers or growing families. With four bedrooms, including a master with fitted wardrobes, and a spacious living area, there’s plenty of room for family living and entertaining. The dual-aspect open-plan kitchen and dining area lead to a private, low-maintenance garden, ideal for gatherings or peaceful evenings outside.
Set on a quiet cul-de-sac, this property is just a stone's throw from the town center and offers excellent transport links, making commuting a breeze. Recent updates, including UPVC double glazing and gas central heating, provide added efficiency. While some areas, like the kitchen, may benefit from modernization, the solid structure offers excellent renovation potential. Don’t miss out on this fantastic opportunity—the ideal combination of space, location, and future possibilities awaits.
3 bedroom terraced house for sale in Underwood, Bracknell, RG12 — £335,000 • 3 bed • 1 bath • 915 ft²
3 bedroom end of terrace house for sale in Welbeck, Bracknell, Berkshire, RG12 — £360,000 • 3 bed • 1 bath • 861 ft²
3 bedroom end of terrace house for sale in Wheatley, Bracknell, Bracknell, RG12 — £360,000 • 3 bed • 1 bath • 736 ft²
3 bedroom terraced house for sale in Aysgarth, Bracknell, RG12 — £325,000 • 3 bed • 1 bath • 1001 ft²
4 bedroom end of terrace house for sale in Ashbourne, Bracknell, Berkshire, RG12 — £365,000 • 4 bed • 2 bath • 1032 ft²
3 bedroom terraced house for sale in Turnberry, Bracknell, Berkshire, RG12 — £425,000 • 3 bed • 1 bath • 1038 ft²






































