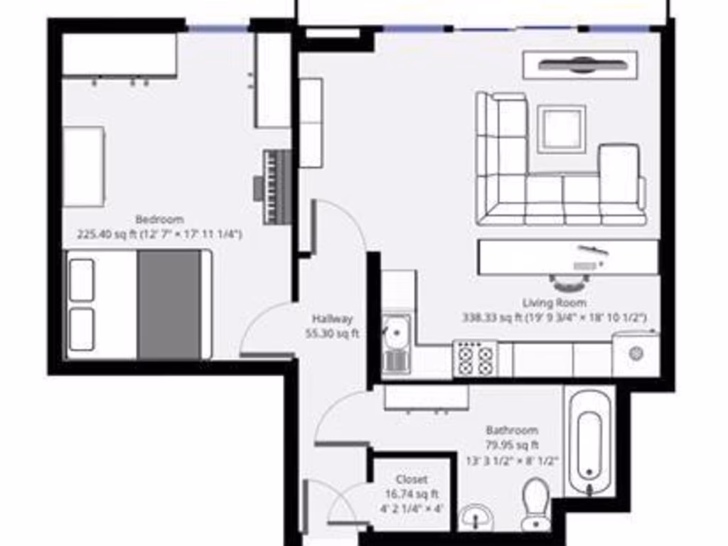
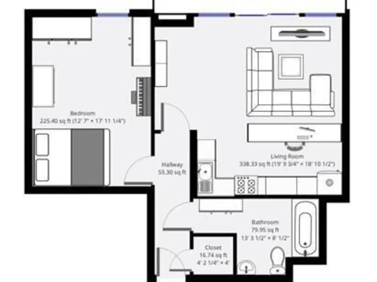
Contemporary one-bedroom with private patio and secure parking, ideal for first-time buyers.
Open-plan living, dining and kitchen with large modern windows
This well-proportioned one-bedroom apartment in Goat Wharf offers a modern, low-maintenance home with useful outdoor space. The open-plan living, dining and kitchen area benefits from large windows and wooden flooring, while a private patio garden provides a quiet spot for plants or alfresco meals. Secure underground parking is included, a valuable convenience for commuters.
At about 592 sq ft (56 sqm), the layout suits a first-time buyer or couple seeking a contemporary city base with good transport links; Brentford station is a short walk away and the location sits near the riverside and local amenities. Broadband speeds are fast and mobile signal is excellent, supporting home working and streaming.
Important practical points are clear: the flat is leasehold with 102 years remaining, council tax band is not provided, and the surrounding area scores as relatively deprived with average local crime levels. These factors affect ongoing costs and future resale considerations, so buyers should budget for service charges and confirm council tax and parking terms.
Overall this apartment presents an accessible entry into Brentford’s evolving neighbourhood: modern fixtures, private outdoor space and secure parking are strengths, while the leasehold status and local area metrics are material factors to weigh before proceeding.
1 bedroom apartment for sale in Lewis House, Brentford, London, TW8 — £517,500 • 1 bed • 1 bath • 656 ft²
1 bedroom flat for sale in Point Wharf Lane, Brentford, TW8 — £350,000 • 1 bed • 1 bath • 637 ft²
1 bedroom apartment for sale in Booth House, Brentford, TW8 — £325,000 • 1 bed • 1 bath • 562 ft²
2 bedroom flat for sale in Goat Wharf, Brentford, TW8 — £369,000 • 2 bed • 2 bath • 913 ft²
1 bedroom flat for sale in 5 Ferry Lane, Brentford, TW8 — £300,000 • 1 bed • 1 bath • 597 ft²
1 bedroom flat for sale in Point Wharf Lane, TW8 — £350,000 • 1 bed • 1 bath • 616 ft²














































