Characterful 2-bed period home with garden — ideal for first-time buyers or investors..
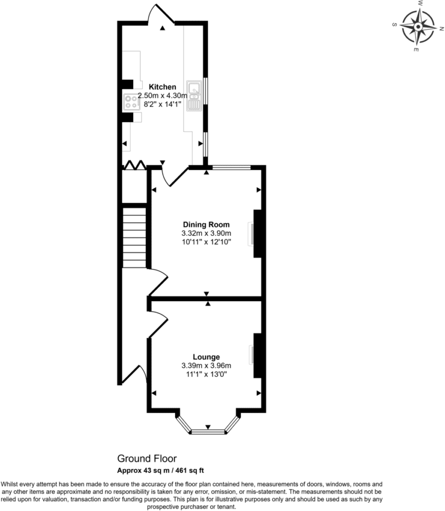
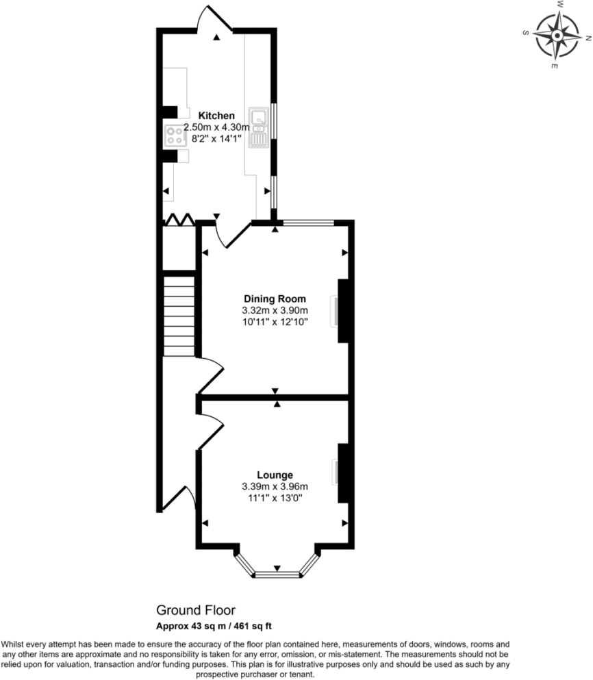
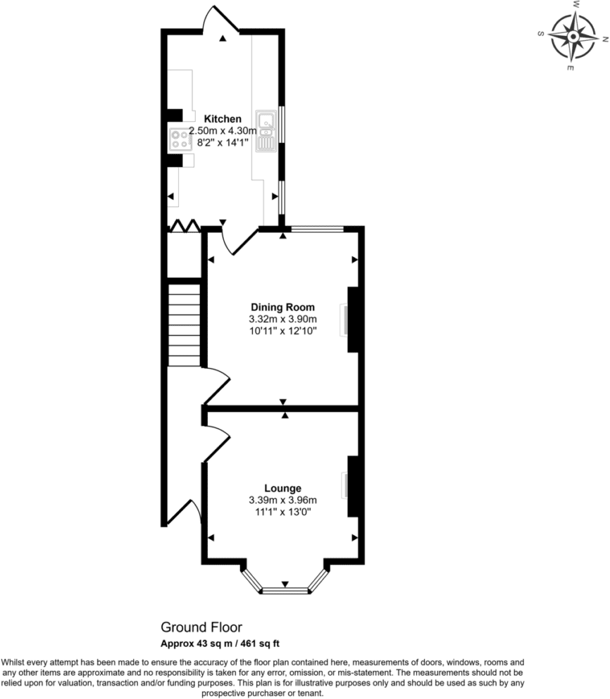
Victorian end-terrace with 926 sq ft generous internal space
Two large bedrooms plus separate wardrobe/storage room
Separate lounge and dining room — flexible living layout
Private rear garden; small plot size
EPC rating E — energy improvements likely required
Solid brick walls, probable lack of cavity insulation
Single bathroom only; one WC may affect larger households
Freehold tenure and low local crime rate
This Victorian end-of-terrace offers 926 sq ft of well-proportioned living space in Wellingborough, combining period character with clear scope for updating. High-ceilinged rooms and a bay-fronted lounge retain original charm while layout and room sizes suit modern living.
The ground floor provides a spacious lounge, separate dining room and a fitted kitchen, making the house easy to furnish and practical for everyday family life. Upstairs are two generous bedrooms, a wardrobe/storage room and a modern family bathroom. A private rear garden and very low local crime add practical appeal.
Notable negatives are factual: the property has an EPC rating of E, solid brick walls likely without cavity insulation, and it is an older building (pre-1900) that will benefit from some renovation and energy-efficiency improvements. The plot is small and there is only one bathroom.
Priced at £170,000 and offered freehold, this property represents clear value for first-time buyers seeking a roomy period home to personalise, or for investors targeting rental demand in a largely private-renting neighbourhood close to local amenities and transport links.
2 bedroom terraced house for sale in New Street, Wellingborough, NN8 — £150,000 • 2 bed • 1 bath • 749 ft²
2 bedroom terraced house for sale in Whitworth Road, Wellingborough, NN8 — £179,950 • 2 bed • 1 bath • 922 ft²
3 bedroom terraced house for sale in Melton Road North, Wellingborough, NN8 — £210,000 • 3 bed • 1 bath • 940 ft²
2 bedroom terraced house for sale in Regent Street, Wellingborough, NN8 — £150,000 • 2 bed • 1 bath • 819 ft²
2 bedroom terraced house for sale in Mill Road, Wellingborough, NN8 — £170,000 • 2 bed • 1 bath • 685 ft²
2 bedroom terraced house for sale in Vivian Road, Wellingborough, NN8 — £179,995 • 2 bed • 1 bath • 906 ft²


























































































































