Characterful two-bedroom home with private garden, minutes from the Northern Line.
Bright Victorian reception with original wood floorboards
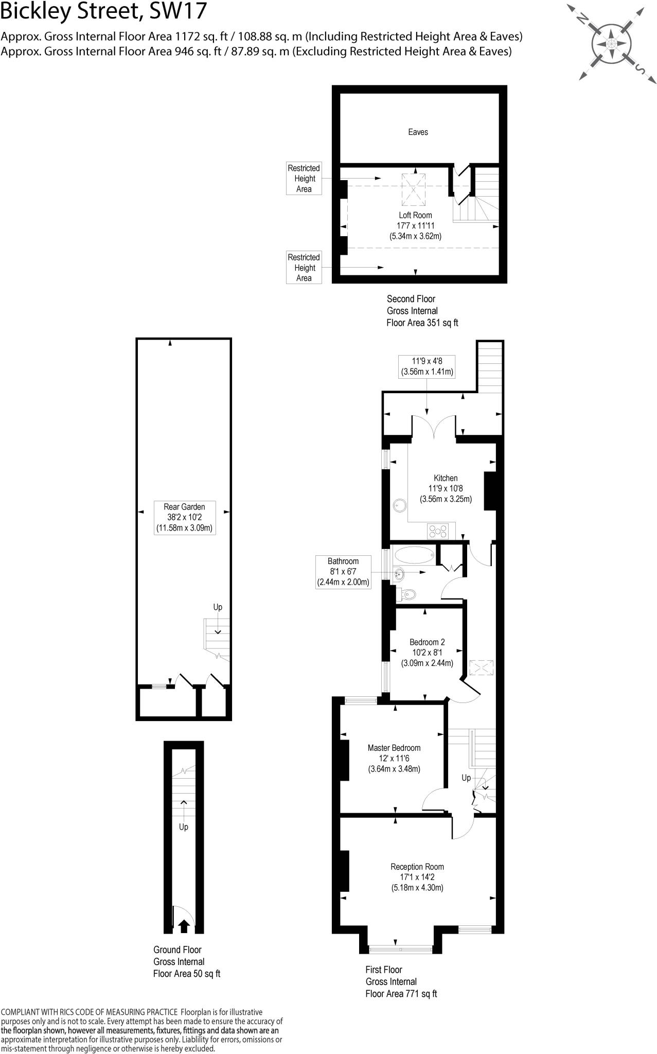
Set on a quiet Victorian terrace in the heart of Tooting Broadway, this two-bedroom first-floor maisonette offers classic period details and practical city living. The bright reception room keeps original wood floorboards, exposed brick fireplace and high ceilings, creating immediate character and a welcoming feel. The kitchen is fitted with granite worktops, integrated appliances and direct access to a private rear garden — a rare outdoor asset for central locations. Practical strengths include a long lease (share of freehold, c.853 years), mains gas heating with boiler and radiators, double glazing, and a generous overall internal area for a two-bedroom maisonette. These features make the home well suited to first-time buyers seeking a characterful starter home or investors targeting the strong Tooting rental market. Buyers should note the area records very high crime levels; prospective purchasers may wish to inspect local crime data and security measures. The building’s solid-brick Victorian construction likely lacks modern cavity insulation, presenting opportunity to improve energy efficiency. The plot is modest in size and some light modernisation would increase rental yield and resale value. In short: a characterful, well-located Tooting home with long lease security and outdoor space, offering immediate comfort and clear scope for improvement to add value.
2 bedroom flat for sale in Bickley Street, Tooting, London, SW17 — £500,000 • 2 bed • 1 bath • 707 ft²
4 bedroom maisonette for sale in Bickley Street, Tooting, SW17 — £775,000 • 4 bed • 3 bath • 1290 ft²
2 bedroom maisonette for sale in Sellincourt Road, London, SW17 — £575,000 • 2 bed • 1 bath • 776 ft²
2 bedroom maisonette for sale in Bickley Street, Tooting, London, SW17 — £575,000 • 2 bed • 1 bath • 691 ft²
3 bedroom maisonette for sale in Bickley Street, Tooting, London, SW17 — £525,000 • 3 bed • 1 bath • 837 ft²
3 bedroom maisonette for sale in Nutwell Street, London, SW17 — £560,000 • 3 bed • 1 bath • 667 ft²


















































