Contemporary family layout with garden, parking and energy-saving solar panels.
Four bedrooms with main en suite
Open-plan kitchen/dining with French doors to garden
Ground-floor home office and cloakroom
Off-street driveway parking for two cars
Solar PV fitted for improved energy efficiency
Compact internal size (~761 sq ft) for four bedrooms
Very slow broadband speeds locally
Local area shows higher-than-average crime levels
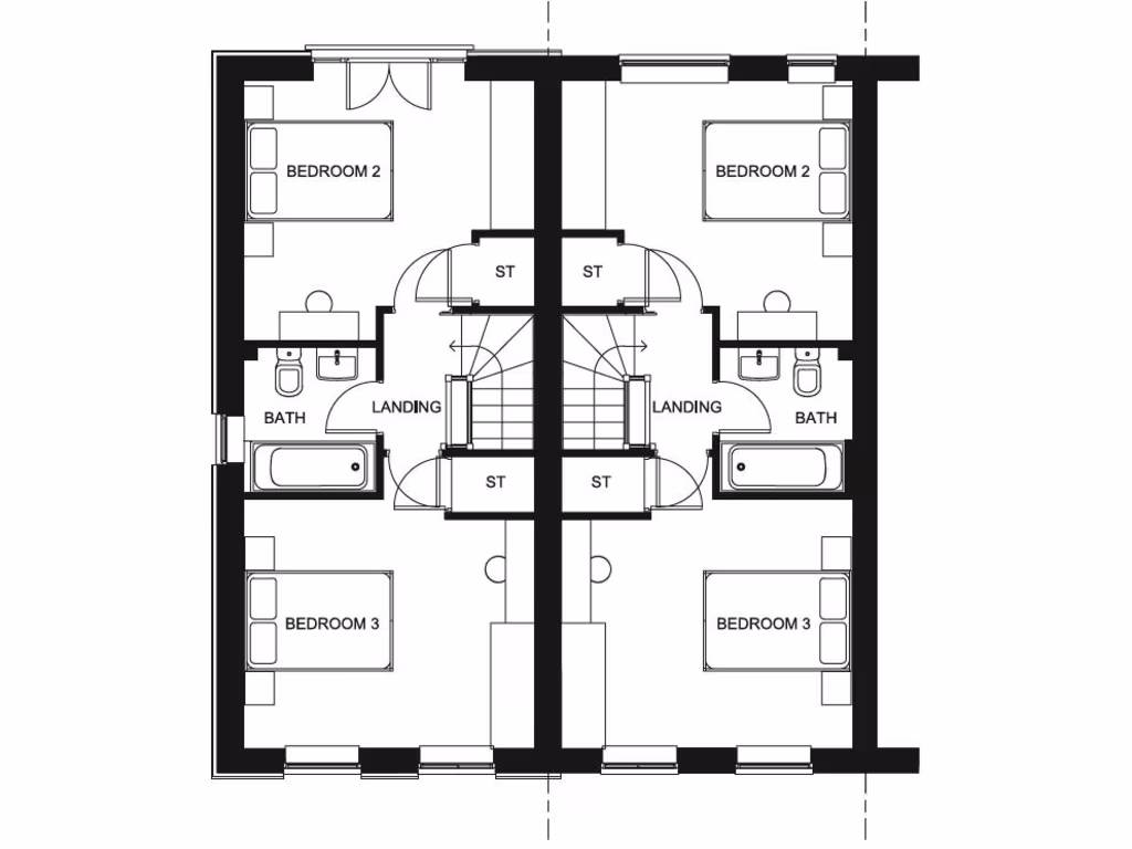
This new-build four-bedroom end-of-terrace (The Haversham) offers a family-focused layout across three storeys, with a generous open-plan kitchen/dining area and French doors that connect to the rear garden. The ground floor includes a handy home office and cloakroom; the first-floor lounge provides a separate living space and the main bedroom benefits from an ensuite. Two further double bedrooms and the family bathroom occupy the top floor.
Practical features include off-street parking for two cars, built-in solar PV for lower energy running costs, and contemporary fixtures typical of a modern suburban development. The plot is recorded as very large, and the scheme provides substantial communal green space and nearby lakes, plus walking distance to Hampton Lakes Primary and other local schools.
Notable considerations: the total internal area is compact (around 761 sq ft) for a four-bedroom home, and broadband speeds in the area are very slow. Crime levels are reported as high locally and tenure is not specified. Buyers should confirm service charges, parking allocations, and electrics/connectivity details before committing.
4 bedroom terraced house for sale in Hampton Beach,
Waterhouse Way, Hampton,
Peterborough, Cambridgeshire,
PE7 8SJ, PE7 — £355,000 • 4 bed • 1 bath • 759 ft²
4 bedroom detached house for sale in Hampton Beach,
Waterhouse Way, Hampton,
Peterborough, Cambridgeshire,
PE7 8SJ, PE7 — £429,995 • 4 bed • 1 bath • 976 ft²
4 bedroom end of terrace house for sale in Hampton Beach,
Waterhouse Way, Hampton,
Peterborough, Cambridgeshire,
PE7 8SJ, PE7 — £351,995 • 4 bed • 1 bath • 762 ft²
4 bedroom detached house for sale in Hampton Beach
Waterhouse Way
Hampton Centre
Peterborough
PE7 8SJ, PE7 — £444,995 • 4 bed • 1 bath • 1038 ft²
4 bedroom detached house for sale in Hampton Beach
Waterhouse Way
Hampton Centre
Peterborough
PE7 8SJ, PE7 — £399,995 • 4 bed • 1 bath • 839 ft²
3 bedroom semi-detached house for sale in Hampton Beach,
Waterhouse Way, Hampton,
Peterborough, Cambridgeshire,
PE7 8SJ, PE7 — £314,000 • 3 bed • 1 bath • 820 ft²


























































