Deceptively spacious three-bedroom mid-terrace with driveway, garden and solar panels — ideal for first-time buyers.
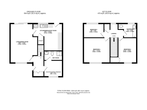
3 double bedrooms plus study/occasional bedroom with wet room
Larger-than-average fitted breakfast kitchen; modern appliances included
Solar panels reduce energy bills; mains gas central heating and boiler
Driveway provides ample off-street parking; enclosed rear garden
Average overall size (approx. 1,024 sq ft) on a small plot
Freehold tenure and cheap council tax
Located in an area with high crime and local deprivation
Mid-20th-century build—may need future modernisation works
A deceptively spacious mid-20th-century mid-terraced home arranged over two floors, offering three double bedrooms plus a versatile study/occasional bedroom with wet room. The living/dining room and larger-than-average fitted breakfast kitchen create generous, usable family space, while the enclosed rear garden and driveway provide private outdoor space and off-street parking. Solar panels contribute to lower energy costs and the property is offered freehold with relatively low council tax.
This house will suit first-time buyers or buy-to-let investors seeking a well-presented, low-maintenance home that’s ready to occupy. The modern kitchen and updated first-floor bathroom reduce immediate renovation needs, and fast broadband and excellent mobile signal support home working. The compact plot and modest overall size mean manageable upkeep and running costs.
Buyers should note material local-context factors: the wider area is classified as deprived with a high local crime rate. The plot is small and the neighbourhood described as hampered, which may affect resale or let value for some buyers. Constructed in the late 1960s–1970s, the building has double glazing and a mains gas boiler with radiators, but further upgrades could be needed over time as with properties of this era.
On balance, this is a practical, economical starter home or rental opportunity: comfortable interiors, private parking and garden, plus energy-saving solar panels — traded against local area challenges and a compact plot.
3 bedroom end of terrace house for sale in Longridge, Knutsford, Cheshire, WA16 — £240,000 • 3 bed • 1 bath • 1057 ft²
3 bedroom terraced house for sale in Overfields, Knutsford, WA16 — £275,000 • 3 bed • 2 bath • 914 ft²
3 bedroom terraced house for sale in Longridge, Knutsford, Cheshire, WA16 — £200,000 • 3 bed • 1 bath • 837 ft²
3 bedroom terraced house for sale in Manor Park North, Knutsford, Cheshire, WA16 — £315,000 • 3 bed • 2 bath • 899 ft²
3 bedroom semi-detached house for sale in Mobberley Road, Knutsford, WA16 — £395,000 • 3 bed • 1 bath • 943 ft²
3 bedroom semi-detached house for sale in Montmorency Road, Knutsford, WA16 — £325,000 • 3 bed • 1 bath • 746 ft²






















































































































































