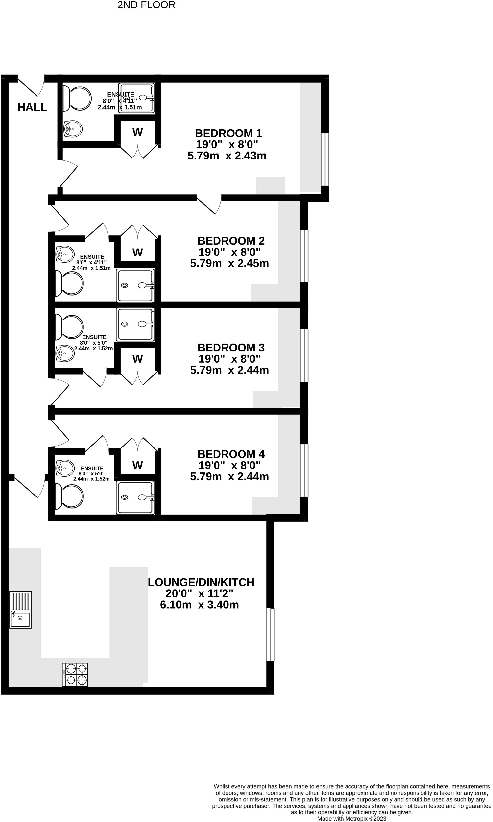
**Standout Features:**
- **Four Bedrooms**: Perfect for student accommodation.
- **Prime Location**: Short walk to Dundee University and Abertay University; frequent bus services to St Andrews University.
- **Modern Design**: Part of a contemporary apartment complex.
- **Hassle-Free Management**: On-location management team ensures easy rental operations.
- **Competitive Price**: Offered at £155,000.
- **On-Site Parking**: On-street parking available.
- **Secure Freehold Tenure**: No chain, making the purchasing process faster.
**Potential Concerns:**
- **Small Size**: At 832 sq ft, the apartment may feel compact for some.
- **Area Deprivation**: Located in a very deprived area; consider this when investing.
- **Broadband Speed**: Average speeds may not be suitable for all needs.
This fully furnished four-bedroom flat at The Hub, Dundee, presents an exceptional investment opportunity in a vibrant and multicultural student neighborhood. With modern amenities and a spacious recreation room, it offers comfortable living for students. The excellent on-location management ensures a hassle-free experience for landlords. Enjoy the convenience of being just steps away from thriving cafes, supermarkets, and shops, making it one of the most desirable addresses for students in Dundee. Although situated in a very deprived area and with only average broadband speeds, its proximity to university campuses and regular public transport routes makes it an appealing option for savvy investors. Don't miss the chance to secure this prime rental opportunity; properties like this are in high demand and won’t last long!
5 bedroom flat for sale in Hawkhill, Dundee, Angus, DD1 — £185,000 • 5 bed • 1 bath
4 bedroom apartment for sale in Hawkhill, Dundee, DD1 — £160,000 • 4 bed • 4 bath • 1028 ft²
4 bedroom apartment for sale in 21 Commercial Street, Dundee, DD1 — £170,000 • 4 bed • 2 bath • 1173 ft²
2 bedroom apartment for sale in Mcvicars Lane, Dundee, DD1 — £199,995 • 2 bed • 2 bath • 732 ft²
2 bedroom flat for sale in Blackness Road, Dundee, DD1 — £150,000 • 2 bed • 1 bath • 710 ft²
2 bedroom flat for sale in Ellen Street, Dundee, DD1 — £60,000 • 2 bed • 1 bath • 678 ft²


































































