CV21 1EJ - Plot for sale in Newbold on Avon, Rugby, CV21

View on Property Piper

Plot for sale in Newbold on Avon, Rugby, CV21

Summary - Newbold on Avon, Rugby, CV21 CV21 1EJ

1 bed 1 bath Plot

**Standout Features:**
- Development opportunity in Newbold on Avon, Rugby
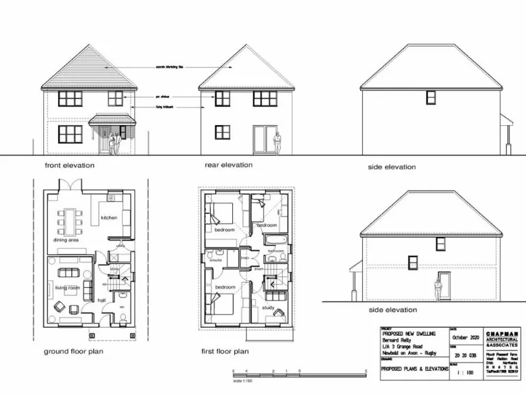
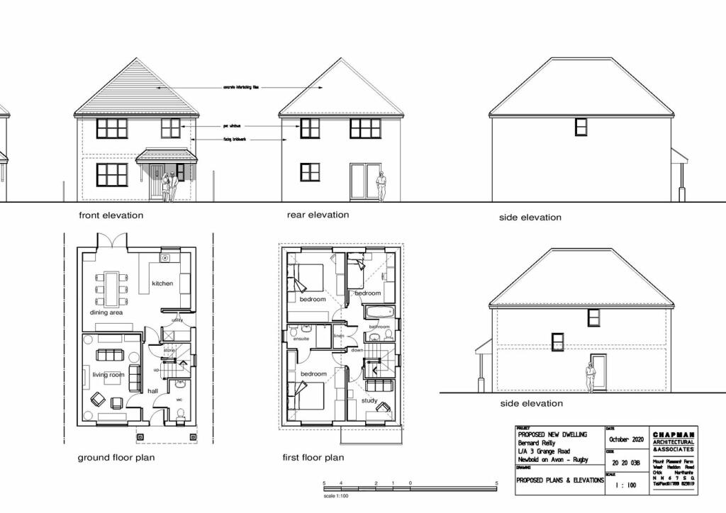
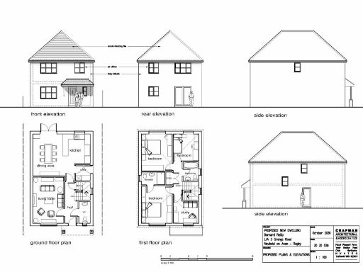
- Planning permission granted for a 4-bedroom detached house
- Approximate GDV of £340,000 to £350,000 post-construction
- Freehold plot with potential for customization
- Excellent access to local amenities and schools
- Good transport links to Rugby, M1, and M6

**Noteable Concerns:**
- Indemnity insurance necessary due to a restrictive covenant
- Average crime rate in the area

Unlock your dream home on this promising building plot situated in the sought-after village of Newbold on Avon. With planning permission already secured for a stylish four-bedroom detached home, this development opportunity comes with an appealing projected GDV of up to £350,000, making it a wise investment choice for developers or families looking to create a bespoke residence.

Nestled within a vibrant community, you'll enjoy convenience at your fingertips—pedestrian-friendly access to reputable schools, local shops, and tranquil parks is just a stone's throw away. With excellent transport links, including nearby bus services and quick access to major motorways, commuting into Rugby or surrounding areas is seamless.

While due diligence is required regarding an indemnity insurance due to a restrictive covenant, the potential to craft a unique living space amidst solid local amenities is enticing. Don’t miss the chance to invest in a property that offers flexibility, comfort, and future potential in a family-friendly setting!

Property Details

Image Descriptions

Textual Property Features

Detected Visual Features

Nearby Schools

Nearest Bars And Restaurants

,,,,}

Nearest General Shops

,,}

Nearest Grocery shops

,,}

Nearest Supermarkets

,,}

Nearest Religious buildings

,,}

Nearest Medical buildings

,,,}

Nearest Airports

}

Nearest Leisure Facilities

,,,,}

Nearest Tourist attractions

,,}

Nearest Train stations

,,,,}

Nearest Bus stations and stops

,,,,}

Nearest Hotels

,,}

Tags

Local Market Stats

Similar Properties

Meta

High Res Images

Compatible Images

Low res Images

Thumbnails

Raw Images