Renovated 3-bed village semi with loft room, garden and off-street parking.
Larger-style 1930s semi with bay window and period character
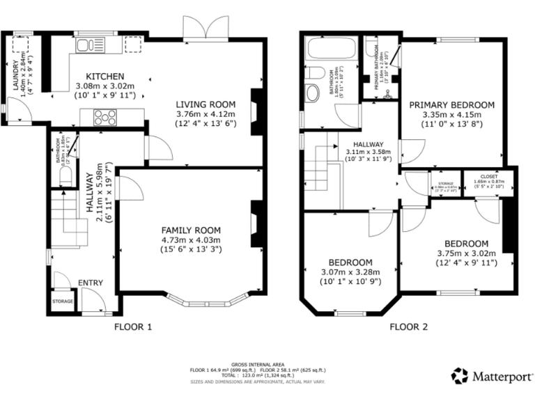
A larger-style 1930s semi offers generous family living in the conservation village of Eaglesham. Recently renovated throughout, the house combines period character — bay window and brick gable — with contemporary fixtures, a modern fitted kitchen, utility room and a tiled family bathroom. The property is presented in move-in condition and benefits from excellent mobile and fast broadband connectivity.
Layout suits families and downsizers: a spacious lounge with large bay floods the ground floor with light, while the dining kitchen forms a practical family hub with patio access to an enclosed rear garden and decking. Three good-sized bedrooms are on the upper level; the principal bedroom includes an ensuite shower room. A floored and lined loft room adds flexible space but is reached by a fixed ladder, which may limit regular use.
Outside, off-street parking is provided to the front on a broad stone-chip area. The garden is level and low-maintenance, ideal for outdoor dining or play. The property is freehold, measures approximately 1,302 sq ft, and sits in a quiet village setting close to local shops, cafes and amenities.
Buyers should note the EPC rating of D and the local area classification indicating higher deprivation levels; these are factual considerations for running costs and wider neighbourhood context. Overall this is a rarely available, well-presented semi that will suit families, professionals and downsizers seeking practical space with period charm and modern upgrades.
3 bedroom semi-detached house for sale in Hill Drive, Eaglesham, G76 — £180,000 • 3 bed • 1 bath • 314 ft²
3 bedroom semi-detached house for sale in 67 Bonnyton Drive, Eaglesham, Glasgow, G76 — £245,000 • 3 bed • 1 bath • 1184 ft²
3 bedroom semi-detached house for sale in Bonnyton Drive, Eaglesham, G76 — £250,000 • 3 bed • 2 bath • 947 ft²
3 bedroom detached house for sale in Picketlaw Road, Eaglesham, G76 — £310,000 • 3 bed • 1 bath • 1163 ft²
2 bedroom terraced house for sale in Montgomery Street, Eaglesham, G76 — £260,000 • 2 bed • 1 bath • 807 ft²
2 bedroom end of terrace house for sale in Gilmour Crescent, Eaglesham, G76 — £210,000 • 2 bed • 1 bath • 850 ft²


































































































