**Standout Features:**
- Charming detached period cottage in a prime forest location
- Flexible layout with five bedrooms and multiple reception rooms
- Potential for an annexe or Airbnb from the ground floor bedroom
- Wrap-around gardens offering various entertainment spaces
- Off-street parking and a detached garage
- Close to village amenities and mainline train station
**Notable Concerns:**
- Broadband speeds are slow
- Double glazing is of unknown installation date
- Cavity walls assumed to lack insulation
- Council tax is classified as expensive
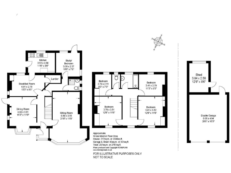
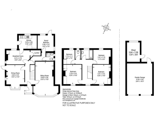
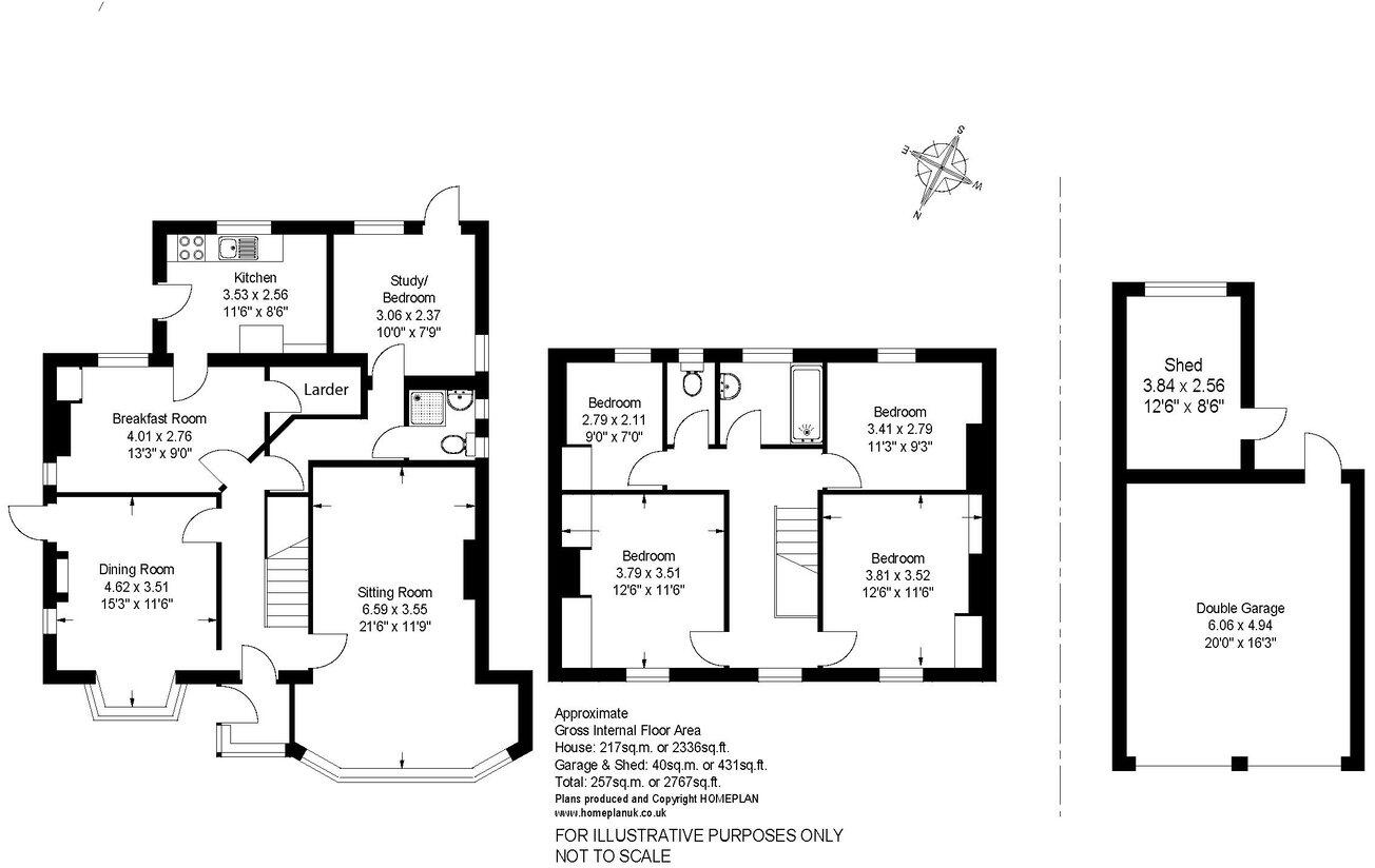
Offering the perfect blend of comfort and tranquility, this charming detached period cottage is nestled along a beautiful no-through forest lane in Brockenhurst. With an expansive layout featuring five bedrooms and multiple reception spaces, including a versatile ground floor bedroom that presents excellent potential for an annexe or Airbnb, the property is ideal for families or investors seeking fantastic rental opportunities. The wrap-around gardens provide serene spots for entertaining or relaxation, all while being enveloped by nature's beauty.
Positioned conveniently near village amenities and a mainline train station, this property enhances both accessibility and lifestyle quality. The attractive features, including large windows that flood the home with light, create a warm and inviting atmosphere. It also benefits from off-street parking and a detached garage, adding to the convenience.
While the property requires some updates—specifically regarding broadband speed and potential insulation—it boasts an impressive energy rating potential and a peaceful rural setting with established community ties. Don't miss the chance to make this enchanting cottage your very own sanctuary in one of the New Forest’s most sought-after areas!
3 bedroom detached house for sale in Burford Lane, Brockenhurst, Hampshire, SO42 — £695,000 • 3 bed • 1 bath • 1023 ft²
5 bedroom detached house for sale in Balmer Lawn Road, Brockenhurst, Hampshire, SO42 — £1,250,000 • 5 bed • 2 bath • 1880 ft²
2 bedroom terraced house for sale in North Weirs, Brockenhurst, SO42 — £595,000 • 2 bed • 1 bath • 791 ft²
3 bedroom cottage for sale in Beaulieu Road, Brockenhurst, SO42 — £695,000 • 3 bed • 1 bath • 1230 ft²
2 bedroom end of terrace house for sale in Lymington Road, Brockenhurst, SO42 — £450,000 • 2 bed • 2 bath • 1184 ft²
4 bedroom character property for sale in Bank, Lyndhurst, SO43 — £1,145,000 • 4 bed • 2 bath • 1830 ft²






























































































